
Fore Street, Kingsbridge

Letting details
- Let available date:
- 06/03/2026
- Deposit:
- £923A deposit provides security for a landlord against damage, or unpaid rent by a tenant.Read more about deposit in our glossary page.
- Min. Tenancy:
- Ask agent How long the landlord offers to let the property for.Read more about tenancy length in our glossary page.
- Let type:
- Long term
- Furnish type:
- Unfurnished
- Council Tax:
- Ask agent
- PROPERTY TYPE
Detached
- BEDROOMS
1
- BATHROOMS
1
- SIZE
Ask agent
Key features
- Mid Terrace House
- 1 Double Bedroom
- Large Living Room
- Modern Kitchen
- Beautifully presented
- Council Tax Band B
- Energy Rating : D
- Town Centre Location
- Available Now
- Brand new boiler fitted
Description
Kingsbridge Estate Agents are delighted to offer to let this charming 1 bedroom town house in Kingsbridge. Split over 3 levels with a double bedroom, modern bathroom, generous living and kitchen/breakfast room.
Kingsbridge Estate Agents are delighted to offer for rent this beautifully presented characterful Grade II Listed town house set in the heart of Kingsbridge town centre close to all local amenities.
The accommodation comprises:
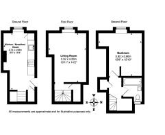
Ground floor:
Communal secure entrance to hallway.
Kitchen/breakfast room: A range of contemporary wall and floor units with oak work top, slate floor, electric oven and four ring gas hob with extractor fan over
First Floor:
Living room: A bright and spacious room with wooden floor and sash window with window seat and storage under. Radiator
Cupboard: With wall mounted towel warmer.
Stairs to
Second floor:
Bedroom: A good sized double bedroom with original sash window to front aspect with window seat and built in storage under. Carpeted with radiator, and built in wardrobe.
Bathroom: A modern contemporary bathroom finished to a high standard with bath with shower over, vanity hand basin with cupboard under, WC, heated towel rail and tiled floor.
Rental Information & CPR Material Information
Rent: £800 per calendar month
Deposit: £923 (equivalent to 5 weeks’ rent)
Holding Deposit: £184 (equivalent to 1 week’s rent)
Availability: Friday 6th March
Minimum Tenancy Term: 6 months
Tenure: Assured Shorthold Tenancy (AST)
Council Tax Band: B
EPC Rating: D
Local Authority: South Hams District Council
Furnishing: Unfurnished
Parking: On-Street Parking
Utilities Included: NA
Restrictions: NA
Material Information (CPRs)
Property Construction & Safety:
Standard Construction
Services:
· Heating type: Gas
· Water supply: Mains
· Sewerage type: Mains
Connectivity:
· Broadband availability:
Type - highest download speed - highest upload speed - availability
Standard-19 Mbps-1 Mbps-Good
Superfast-80 Mbps-20 Mbps-Good
Ultrafast--Not available--Not available
· Mobile signal: A choice of providers locally ( Ofcom )
Environmental Factors:
· Flood risk: This location is outside of any flood alert area.
Planning / Nearby Developments:
· 68 Planning Applications
TENANTS FEE SCHEDULE
· NEW ASSURED SHORTHOLD TENANCIES (ASTs) SIGNED ON OR AFTER 1 JUNE 2019
· Holding Deposit (per tenancy)
· One week's rent. This is to reserve a property. Please Note: This will be withheld if any relevant person (including any guarantor(s)) withdraw from the tenancy, fail a Right-to-Rent check, provide materially significant false or misleading information, or fail to sign their tenancy agreement (and / or Deed of Guarantee) within 15 calendar days (or other Deadline for Agreement as mutually agreed in writing).
· Security Deposit (per tenancy. Rent under £50,000 per year)
· Five weeks' rent. This covers damages or defaults on the part of the tenant during the tenancy
· Security Deposit (per tenancy. Rent £50,000 or over per year)
· Five weeks' rent. This covers damages or defaults on the part of the tenant during the tenancy.
· Unpaid Rent
· Interest at 3% above the Bank of England Base Rate from Rent Due Date until paid in order to pursue non-payment of rent. Please Note: This will not be levied until the rent is more than 14 days in arrears.
· Lost Key(s) or other Security Device(s)
· Tenants are liable to the actual cost of replacing any lost key(s) or other security device(s). If the loss results in locks needing to be changed, the actual costs of a locksmith, new lock and replacement keys for the tenant, landlord any other persons requiring keys will be charged to the tenant. If extra costs are incurred there will be a charge of £15 per hour (inc. VAT) for the time taken replacing lost key(s) or other security device(s).
· Variation of Contract (Tenant's Request)
· £50 (inc. VAT) per agreed variation. To cover the costs associated with taking landlord's instructions as well as the preparation and execution of new legal documents.
· Change of Sharer (Tenant's Request)
· £50 (inc. VAT) per replacement tenant or any reasonable costs incurred if higher. To cover the costs associated with taking landlord's instructions, new tenant referencing and Right-to-Rent checks, deposit registration as well as the preparation and execution of new legal documents.
· Early Termination (Tenant's Request)
· Should the tenant wish to leave their contract early, they shall be liable to the landlord's costs in re-letting the property as well as all rent due under the tenancy until the start date of the replacement tenancy. These costs will be no more than the maximum amount of rent outstanding on the tenancy.
- COUNCIL TAXA payment made to your local authority in order to pay for local services like schools, libraries, and refuse collection. The amount you pay depends on the value of the property.Read more about council Tax in our glossary page.
- Band: B
- PARKINGDetails of how and where vehicles can be parked, and any associated costs.Read more about parking in our glossary page.
- On street
- GARDENA property has access to an outdoor space, which could be private or shared.
- Ask agent
- ACCESSIBILITYHow a property has been adapted to meet the needs of vulnerable or disabled individuals.Read more about accessibility in our glossary page.
- Ask agent
Fore Street, Kingsbridge
Add an important place to see how long it'd take to get there from our property listings.
__mins driving to your place
About Kingsbridge Estate Agents Ltd, Kingsbridge
Unit 6, The Anchor Centre, Bridge Street, Kingsbridge, TQ7 1SB

Notes
Staying secure when looking for property
Ensure you're up to date with our latest advice on how to avoid fraud or scams when looking for property online.
Visit our security centre to find out moreDisclaimer - Property reference L61870. The information displayed about this property comprises a property advertisement. Rightmove.co.uk makes no warranty as to the accuracy or completeness of the advertisement or any linked or associated information, and Rightmove has no control over the content. This property advertisement does not constitute property particulars. The information is provided and maintained by Kingsbridge Estate Agents Ltd, Kingsbridge. Please contact the selling agent or developer directly to obtain any information which may be available under the terms of The Energy Performance of Buildings (Certificates and Inspections) (England and Wales) Regulations 2007 or the Home Report if in relation to a residential property in Scotland.
*This is the average speed from the provider with the fastest broadband package available at this postcode. The average speed displayed is based on the download speeds of at least 50% of customers at peak time (8pm to 10pm). Fibre/cable services at the postcode are subject to availability and may differ between properties within a postcode. Speeds can be affected by a range of technical and environmental factors. The speed at the property may be lower than that listed above. You can check the estimated speed and confirm availability to a property prior to purchasing on the broadband provider's website. Providers may increase charges. The information is provided and maintained by Decision Technologies Limited. **This is indicative only and based on a 2-person household with multiple devices and simultaneous usage. Broadband performance is affected by multiple factors including number of occupants and devices, simultaneous usage, router range etc. For more information speak to your broadband provider.
Map data ©OpenStreetMap contributors.





