Barnstaple Road, Ruislip

- PROPERTY TYPE
Terraced
- BEDROOMS
2
- BATHROOMS
1
- SIZE
Ask agent
- TENUREDescribes how you own a property. There are different types of tenure - freehold, leasehold, and commonhold.Read more about tenure in our glossary page.
Freehold
Key features
- Extended Two-Bedroom Home
- Spacious Open-plan Living and Dining Area
- Modern Fitted Kitchen
- Stylish Family Bathroom
- Outbuilding
- Private Driveway
- Excellent Transport Links
Description
The first floor offers a generous principal bedroom, a further well-proportioned double bedroom, and a stylish contemporary family bathroom. Further benefits include a private driveway with an electric vehicle charging point, a good-sized rear garden, and the added flexibility of the outbuilding.
Ideally located within easy reach of South Ruislip and Ruislip Manor, the property enjoys excellent transport connections via the Chiltern, Central, Metropolitan, and Piccadilly lines. The area is well served by highly regarded schools, including Ruislip High and Deanesfield. The popular Old Dairy development is also nearby, offering an Asda supermarket, a variety of restaurants, and a cinema. The A40 provides swift access to London and the Home Counties, while several family-friendly parks are just a short walk away.
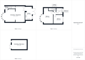
Entrance Hall - Front aspect door, coved ceiling, stairs to first floor, door leading to;
Living Room - Front aspect double glazed bay window, radiator, coved ceiling
Dining Room - Double radiator, coved ceiling, downlighting, under stairs cupboard, doors to;
Kitchen - Rear aspect double glazed windows, rear aspect double glazed door leading to garden, downlighting, a range of base and eye level units, tiled flooring, integrated Neff Appliances including frigde /freezer, microwave, oven unit with four gas hob rings, stainless steel sink and drainer, breakfast bar, dishwasher, space for washing machine.
First Floor Landing - Loft hatch leading to loft with fixed lighting and pull down ladder, doors to;
Bedroom One - Front aspect double glazed bay window, front aspect double glazed window, coved ceiling, radiator, fitted wardrobes.
Bedroom Two - Rear aspect double glazed window, coved ceiling, radiator.
Bathroom - Rear aspect double glazed frosted window, fully tiled flooring and walls, panel enclosed bathtub with rainfall shower attachment, vanity unit incorporating wash hand basin, low level w/c, heated towel rail.
Garden - Mainly laid to patio, electrical power points, panel enclosed fencing, outbuilding, rear access to service road.
Outbuilding / Office - Front aspect double glazed door, front aspect double glazed window, a range of base and eye level units, Space for fridge, washing machine and dryer, electrical plug sockets.
Council Tax - London Borough of Hillingdon - Band D - £1952.38
N.B. WE RECOMMEND YOUR SOLICITOR VERIFIES THIS BEFORE EXCHANGE OF CONTRACTS.
Distance To Stations - South Ruislip (0.9 Miles) - Central and Overground
Ruislip Gardens (0.9 Miles) - Central
Eastcote (1.1 Miles) - Metropolitan/Piccadilly
Ruislip Manor (1.1 Miles) - Metropolitan/Piccadilly
Brochures
Barnstaple Road, RuislipBrochure- COUNCIL TAXA payment made to your local authority in order to pay for local services like schools, libraries, and refuse collection. The amount you pay depends on the value of the property.Read more about council Tax in our glossary page.
- Band: D
- PARKINGDetails of how and where vehicles can be parked, and any associated costs.Read more about parking in our glossary page.
- Yes
- GARDENA property has access to an outdoor space, which could be private or shared.
- Yes
- ACCESSIBILITYHow a property has been adapted to meet the needs of vulnerable or disabled individuals.Read more about accessibility in our glossary page.
- Ask agent
Energy performance certificate - ask agent
Barnstaple Road, Ruislip
Add an important place to see how long it'd take to get there from our property listings.
__mins driving to your place
Get an instant, personalised result:
- Show sellers you’re serious
- Secure viewings faster with agents
- No impact on your credit score
Your mortgage
Notes
Staying secure when looking for property
Ensure you're up to date with our latest advice on how to avoid fraud or scams when looking for property online.
Visit our security centre to find out moreDisclaimer - Property reference 34416838. The information displayed about this property comprises a property advertisement. Rightmove.co.uk makes no warranty as to the accuracy or completeness of the advertisement or any linked or associated information, and Rightmove has no control over the content. This property advertisement does not constitute property particulars. The information is provided and maintained by Gibson Honey, Ruislip Manor. Please contact the selling agent or developer directly to obtain any information which may be available under the terms of The Energy Performance of Buildings (Certificates and Inspections) (England and Wales) Regulations 2007 or the Home Report if in relation to a residential property in Scotland.
*This is the average speed from the provider with the fastest broadband package available at this postcode. The average speed displayed is based on the download speeds of at least 50% of customers at peak time (8pm to 10pm). Fibre/cable services at the postcode are subject to availability and may differ between properties within a postcode. Speeds can be affected by a range of technical and environmental factors. The speed at the property may be lower than that listed above. You can check the estimated speed and confirm availability to a property prior to purchasing on the broadband provider's website. Providers may increase charges. The information is provided and maintained by Decision Technologies Limited. **This is indicative only and based on a 2-person household with multiple devices and simultaneous usage. Broadband performance is affected by multiple factors including number of occupants and devices, simultaneous usage, router range etc. For more information speak to your broadband provider.
Map data ©OpenStreetMap contributors.




