Land at, 36 Hylton Terrace, Bedlinog, Treharris, Mid Glamorgan, CF46 6RG
- PROPERTY TYPE
Land
- BEDROOMS
2
- BATHROOMS
1
- SIZE
Ask agent
Key features
- Building plot x 4 Terraced houses
- Garage/parking & garage
- Sought after location
- Scenic surroundings
Description
ONLINE AUCTION from 10th MARCH - 12th MARCH 2026
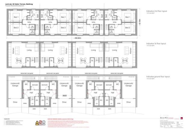
Outline planning permission has been granted for 4 new dwellings and associated works on a plot of land in the most sought-after area of Bedlinog with its scenic surroundings. The plot is situated in a residential street adjacent to a school and with far reaching hillside views to the front. The build comprises of 4 terraced properties in a contemporary style and accommodation for each is over 3 floors to include cloakroom, storerooms, open plan kitchen, lounge and dining room, 2 bedrooms and wardrobe areas. Outside each will have a garage, parking and garden.
Bedlinog is a village located in the Taff Bargoed valley, in the south of Merthyr Tydfil County Borough, Wales. It is 10 km (6 mi) north of Pontypridd, 10 km (6 mi) north west of Caerphilly and 10 km (6 mi) south east of Merthyr Tydfil. It is surrounded by stunning countryside.
Planning has been granted for: 4 dwellings and associated works
Planning ref: P/24/0093
Local Authority: Merthyr Tydfil County Council
Proposed Accommodation
Ground Floor Garage, cloakroom, store rooms, hall
First Floor Open plan lounge, kitchen, dining room, store cupboard
Second Floor Two bedrooms, bathroom, wardrobe areas
Outside Rear garden, parking, garage (integral)
Tenure:
Advised Freehold - to be verified by solicitor
Tenancies:
To be sold with vacant possession
INVESTORS: If you are looking for assistance in tenant find and/or management packages, information on rental income/interest potential we have a Lettings Department that can help you. Please call us or email for invaluable advice.
Brochures
Legal DocumentsOnline BiddingLand at, 36 Hylton Terrace, Bedlinog, Treharris, Mid Glamorgan, CF46 6RG
NEAREST STATIONS
Distances are straight line measurements from the centre of the postcode- Troed-y-rhiw Station1.4 miles
- Merthyr Vale Station1.5 miles
- Pentre-bach Station2.5 miles
Notes
Disclaimer - Property reference 330365. The information displayed about this property comprises a property advertisement. Rightmove.co.uk makes no warranty as to the accuracy or completeness of the advertisement or any linked or associated information, and Rightmove has no control over the content. This property advertisement does not constitute property particulars. The information is provided and maintained by Paul Fosh Auctions, Newport. Please contact the selling agent or developer directly to obtain any information which may be available under the terms of The Energy Performance of Buildings (Certificates and Inspections) (England and Wales) Regulations 2007 or the Home Report if in relation to a residential property in Scotland.
Auction Fees: The purchase of this property may include associated fees not listed here, as it is to be sold via auction. To find out more about the fees associated with this property please call Paul Fosh Auctions, Newport on 01633 603042.
*Guide Price: An indication of a seller's minimum expectation at auction and given as a Guide Price or a range of Guide Prices. This is not necessarily the figure a property will sell for and is subject to change prior to the auction.
Reserve Price: Each auction property will be subject to a Reserve Price below which the property cannot be sold at auction. Normally the Reserve Price will be set within the range of Guide Prices or no more than 10% above a single Guide Price.
Map data ©OpenStreetMap contributors.




