
Redland Hill Redland Bristol BS6 6BJ

- PROPERTY TYPE
Retirement Property
- BEDROOMS
2
- BATHROOMS
2
- SIZE
742 sq ft
69 sq m
Key features
- EXCLUSIVELY AVAILABLE FOR OVER 60s
- Your life, your move, your way
- Move in by the 30th June and choose between three incentives
- Spanning approximately 742 sq ft
- Communal arboretum garden with a pond and magnificent trees
- Exclusive amenities - communal lounge and wellness centre
- On-site team present 7 days a week
- No exit fees
- 24 hour Tunstall support service
Description
** Ready to move into **
**Your life, your move, your way**
Customers who wish to purchase their new home at Pegasus Homes between 1st September 2025 and 31st March 2026 can choose between a range of financial incentives.
- 5% discount from the advertised purchase price or
- Stamp duty paid (payable on the purchase of the new property) or
- 50% off service charge payment for 5 years
*Terms and conditions apply
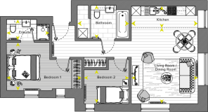
Apartment 7 is a luxurious two bedroom apartment spanning approximately 742 sq ft. Located on the Second Floor this beautifully-designed home features an open-plan kitchen/living/dining area perfect for hosting family and friends. This residence also benefits from a main bedroom with built-in wardrobes and an ensuite, as well as an additional office/hobby room perfect for creating a flexible living space, hobby room or hosting your loved ones.
And, when you move in, you will also benefit from all that The Vincent has to offer. With a thriving community of homeowners and rental members, this beautiful community has been designed for social connection. Homeowners can seek out their friends in the comfortable communal lounge, or head out to the landscaped gardens.
Residents can also take advantage of the wellness amenities including a wellness spa and gym.
Feeling safe is an important aspect of well-being. At The Vincent, 24-hour video entry phones and a dedicated on-site team - present here for seven days a week - are part of an advanced security system that brings complete peace of mind.
For those occasions where you are hosting friends and family, The Vincent provides a guest suite that can be booked through the on-site team.
Images are of our dressed apartment and communal space. Speak with our sales team to arrange a viewing.
**Terms and conditions apply, for full terms please visit our website.
Customers can only choose one incentive per transaction. The 5% discount applies to the advertised purchase price only.
The Stamp Duty payment will only be made on Tier 1 Stamp Duty Land Tax and will be paid upon completion as a contribution deducted from the completion statement. The 50% service charge incentive is calculated based on the annual rate at the time of purchase.
The incentives advertised are only available on selected new apartments. This incentive is valid on new reservations on selected apartments, from 1st September 2025 to 31st March 2026, when this incentive ends. To qualify for the incentives, customers must complete on their purchase by 30th June 2026.
This promotion ends on 31st March 2026. Pegasus Homes reserves the right to amend, extend or withdraw offers and promotions at any time.
- COUNCIL TAXA payment made to your local authority in order to pay for local services like schools, libraries, and refuse collection. The amount you pay depends on the value of the property.Read more about council Tax in our glossary page.
- Ask developer
- PARKINGDetails of how and where vehicles can be parked, and any associated costs.Read more about parking in our glossary page.
- Permit,Off street,Allocated,Residents,Private,Communal
- GARDENA property has access to an outdoor space, which could be private or shared.
- Communal garden
- ACCESSIBILITYHow a property has been adapted to meet the needs of vulnerable or disabled individuals.Read more about accessibility in our glossary page.
- Lift access
- Amazing Bristol location
- On-site parking
- Luxury facilities on site such as restaurant, gym & spa
- Within a vibrant community
Redland Hill Redland Bristol BS6 6BJ
Add an important place to see how long it'd take to get there from our property listings.
__mins driving to your place
About Pegasus Homes
A new development influenced by local history and traditional arboreta, The Vincent offers a relaxed, friendly environment amid the greenery of Redland. It is home to 64 one, two and three bedroom apartments distributed between the newly refurbished Queen Victoria House and two new three and four storey terraces designed by award-winning architects, Allford Hall Monaghan Morris.
Queen Victoria House, which will be home to 25 apartments, was built in 1886 on the site previously occupied by Vincent Lodge. With a Victorian-inspired arboretum linking the historic Queen Victoria House and the new-build terraces, The Vincent is a development that preserves the valuable history of its site while offering a novel take on the surrounding Bristolian townscape.
Whether you want to relax in the arboretum, head for a workout or exercise class in the gym and stretch studio, or settle down in the spa, with its hydrotherapy pool, sauna and steam rooms, The Vincent offers plenty of options. Should you find yourself wanting some information or advice about anything, from the spa treatments available to the local restaurants, the General Manager will be on hand to help.
Notes
Staying secure when looking for property
Ensure you're up to date with our latest advice on how to avoid fraud or scams when looking for property online.
Visit our security centre to find out moreDisclaimer - Property reference Apt_7_Feb26. The information displayed about this property comprises a property advertisement. Rightmove.co.uk makes no warranty as to the accuracy or completeness of the advertisement or any linked or associated information, and Rightmove has no control over the content. This property advertisement does not constitute property particulars. The information is provided and maintained by Pegasus Homes. Please contact the selling agent or developer directly to obtain any information which may be available under the terms of The Energy Performance of Buildings (Certificates and Inspections) (England and Wales) Regulations 2007 or the Home Report if in relation to a residential property in Scotland.
*This is the average speed from the provider with the fastest broadband package available at this postcode. The average speed displayed is based on the download speeds of at least 50% of customers at peak time (8pm to 10pm). Fibre/cable services at the postcode are subject to availability and may differ between properties within a postcode. Speeds can be affected by a range of technical and environmental factors. The speed at the property may be lower than that listed above. You can check the estimated speed and confirm availability to a property prior to purchasing on the broadband provider's website. Providers may increase charges. The information is provided and maintained by Decision Technologies Limited. **This is indicative only and based on a 2-person household with multiple devices and simultaneous usage. Broadband performance is affected by multiple factors including number of occupants and devices, simultaneous usage, router range etc. For more information speak to your broadband provider.
Map data ©OpenStreetMap contributors.





