
Claude Road, Spennymoor, DL16

- PROPERTY TYPE
Detached
- BEDROOMS
3
- BATHROOMS
2
- SIZE
Ask agent
Key features
- Shared Ownership
- Large Garden
- Rarely Available
- Modern Interior
- En Suite
Description
Located in the sought-after Merrington Park area of Spennymoor, this beautifully presented three-bedroom detached home offers modern living in a quiet, green setting.
Built in 2020 and benefiting from the remainder of the NHBC warranty, the property features double glazing throughout, efficient gas central heating, an attached garage and a double driveway.
Shared Ownership Opportunity – Heylo Housing
25% share available.
Full market value: £210,000.
Rent - £411.20
Lease management fee - £26.30
Estate charge - £9.75
Building insurance - £8.59
Please note that these charges are subject to a rent increase in April.
Eligibility Criteria:
• Household income under £80,000 per year
• Minimum 5% deposit of the share value
• No other property ownership worldwide
• Property must be your sole residence
• Permanent UK resident or indefinite right to remain
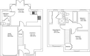
Accommodation
Entrance Hall – Bright and welcoming, leading to the main living space.
Living Room – Spacious reception room featuring attractive bay windows allowing ample natural light.
Kitchen/Diner – Modern fitted kitchen with generous dining space, ideal for family living and entertaining.
Utility Room – Dedicated space for washing machine and dryer.
Cloakroom/WC – Convenient ground floor toilet accessed from the utility area.
Bedrooms –
• Master bedroom with en-suite shower room
• Large second bedroom with built-in wardrobe
• Third bedroom ideal as a child’s room or home office
Family Bathroom – Contemporary suite with shower over bath.
En-Suite – Shower room to the master bedroom.
Outside
The property boasts a good-sized private rear garden, double driveway and integrated garage.
Situated within Merrington Park, the home is conveniently positioned close to local schools, shops and parks.
Well maintained throughout, this modern detached home presents an ideal opportunity for first-time buyers.
Early viewing is highly recommended. Viewings by appointment only.
Property ownership information
Tenure: Shared ownership
Percentage share owned: 25%
Additional monthly rent: £411.20
Ground rent review period: Every 1 year
Service charge review period: Every 1 year
Lease end date: 01/01/2145
Property Description Disclaimer
This is a general description of the property only, and is not intended to constitute part of an offer or contract. It has been verified by the seller(s), unless marked as 'draft'. Purplebricks conducts some valuations online and some of our customers prepare their own property descriptions, so if you decide to proceed with a viewing or an offer, please note this information may have been provided solely by the vendor, and we may not have been able to visit the property to confirm it. If you require clarification on any point then please contact us, especially if you’re traveling some distance to view. All information should be checked by your solicitor prior to exchange of contracts.
Successful buyers will be required to complete anti-money laundering and proof of funds checks. Our partner, Lifetime Legal Limited, will carry out the initial checks on our behalf. The current non-refundable cost is £80 inc. VAT per offer. You’ll need to pay this to Lifetime Legal and complete all checks before we can issue a memorandum of sale. The cost includes obtaining relevant data and any manual checks and monitoring which might be required, and includes a range of benefits. Purplebricks will receive some of the fee taken by Lifetime Legal to compensate for its role in providing these checks.
Brochures
Brochure- COUNCIL TAXA payment made to your local authority in order to pay for local services like schools, libraries, and refuse collection. The amount you pay depends on the value of the property.Read more about council Tax in our glossary page.
- Band: C
- PARKINGDetails of how and where vehicles can be parked, and any associated costs.Read more about parking in our glossary page.
- Garage,Driveway
- GARDENA property has access to an outdoor space, which could be private or shared.
- Private garden
- ACCESSIBILITYHow a property has been adapted to meet the needs of vulnerable or disabled individuals.Read more about accessibility in our glossary page.
- Ask agent
Claude Road, Spennymoor, DL16
Add an important place to see how long it'd take to get there from our property listings.
__mins driving to your place
Get an instant, personalised result:
- Show sellers you’re serious
- Secure viewings faster with agents
- No impact on your credit score
Your mortgage
Notes
Staying secure when looking for property
Ensure you're up to date with our latest advice on how to avoid fraud or scams when looking for property online.
Visit our security centre to find out moreDisclaimer - Property reference 2040689-1. The information displayed about this property comprises a property advertisement. Rightmove.co.uk makes no warranty as to the accuracy or completeness of the advertisement or any linked or associated information, and Rightmove has no control over the content. This property advertisement does not constitute property particulars. The information is provided and maintained by Purplebricks New Homes, Nationwide. Please contact the selling agent or developer directly to obtain any information which may be available under the terms of The Energy Performance of Buildings (Certificates and Inspections) (England and Wales) Regulations 2007 or the Home Report if in relation to a residential property in Scotland.
*This is the average speed from the provider with the fastest broadband package available at this postcode. The average speed displayed is based on the download speeds of at least 50% of customers at peak time (8pm to 10pm). Fibre/cable services at the postcode are subject to availability and may differ between properties within a postcode. Speeds can be affected by a range of technical and environmental factors. The speed at the property may be lower than that listed above. You can check the estimated speed and confirm availability to a property prior to purchasing on the broadband provider's website. Providers may increase charges. The information is provided and maintained by Decision Technologies Limited. **This is indicative only and based on a 2-person household with multiple devices and simultaneous usage. Broadband performance is affected by multiple factors including number of occupants and devices, simultaneous usage, router range etc. For more information speak to your broadband provider.
Map data ©OpenStreetMap contributors.





