Woodfield Road, Blackpool

- PROPERTY TYPE
Terraced
- BEDROOMS
11
- BATHROOMS
2
- SIZE
Ask agent
- TENUREDescribes how you own a property. There are different types of tenure - freehold, leasehold, and commonhold.Read more about tenure in our glossary page.
Freehold
Key features
- For Sale by Online Auction
- Two Reception Rooms & Bar Area
- 11-Bedroom Hotel
- Approximately 2,500 sq ft
- Modernisation Required
- Very Realistic Asking Price
- Scope for Development
- Short Walk to the Promenade
- Parking Space To The Rear
- Viewings Available in Person or via our 360 Virtual Tour
Description
An excellent opportunity to acquire a substantial 11-bedroom hotel situated on Woodfield Road, literally a short walk from the iconic Blackpool Promenade. Located in one of the town's most popular and well-established tourist areas, this property offers strong potential for investors and hospitality operators alike.
Extending to approximately 2,500 sq ft, the accommodation comprises 11 guest bedrooms, two spacious reception rooms, and a fitted bar area-providing versatile space for guest entertainment and relaxation. The layout lends itself well to continued use as a guest house or boutique hotel, with scope to reconfigure and enhance.
While the property would benefit from modernisation, it presents a fantastic value-add opportunity. The potential installation of en-suite facilities to all bedrooms could significantly increase achievable room rates, improve occupancy levels, and enhance overall guest appeal in this thriving seaside market.
The hotel is ideally positioned within easy reach of Central and Blackpool Town Centre, both of which are benefiting from a significant multi-million-pound regeneration programme that is already well underway. These ongoing improvements continue to strengthen Blackpool's position as one of the UK's most visited coastal destinations.
This is a rare opportunity to acquire a sizeable hospitality property in a prime trading location with considerable scope for growth and capital appreciation.
Early viewing is highly recommended.
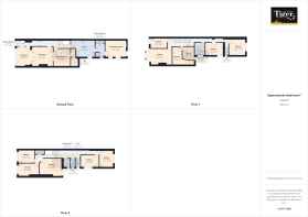
HALLWAY 14' 5" x 3' 4" (4.39m x 1.02m)
LIVING ROOM 9' 9" x 12' 4" (2.97m x 3.76m)
DINING ROOM 13' 6" x 12' 9" (4.11m x 3.89m)
TV ROOM/BAR AREA 10' 9" x 11' 6" (3.28m x 3.51m)
BAR 2' 11" x 11' 5" (0.89m x 3.48m)
KITCHEN 12' 3" x 11' 1" (3.73m x 3.38m)
UTILITY/WASHROOM 6' 1" x 8' 7" (1.85m x 2.62m)
REAR RECEPTION ROOM 13' 6" x 10' 5" (4.11m x 3.18m)
FIRST FLOOR
BEDROOM ONE 16' 5" x 10' 4" (5m x 3.15m)
BEDROOM TWO 10' 7" x 6' 4" (3.23m x 1.93m)
BEDROOM THREE 6' 0" x 11' 6" (1.83m x 3.51m)
BATHROOM 6' 5" x 8' 0" (1.96m x 2.44m)
BEDROOM FOUR 11' 5" x 8' 2" (3.48m x 2.49m)
W.C. 2' 5" x 5' 4" (0.74m x 1.63m)
BEDROOM FIVE 10' 9" x 10' 6" (3.28m x 3.2m)
SECOND FLOOR
BEDROOM SIX 13' 5" x 8' 3" (4.09m x 2.51m)
BEDROOM SEVEN 10' 4" x 8' 3" (3.15m x 2.51m)
BEDROOM EIGHT 14' 6" x 10' 6" (4.42m x 3.2m)
SHOWER ROOM 4' 2" x 5' 8" (1.27m x 1.73m)
W.C. 2' 9" x 5' 9" (0.84m x 1.75m)
W.C. 3' 0" x 5' 9" (0.91m x 1.75m)
BEDROOM TEN 11' 7" x 7' 11" (3.53m x 2.41m)
BEDROOM ELEVEN 9' 0" x 10' 8" (2.74m x 3.25m)
YARD TO REAR/PARKING SPACE
COVERAGE BROADBAND
We are advised that the property can obtain Fibre to the Premises (FTTP)
MOBILE DATA
We are advised that you are likely to have mobile coverage
We would suggest that you also make your own enquiries as to Mobile Data coverage
AUCTION INFORMATION This property is for sale by online auction under WebbMove Auctions ('The Auctioneer'). Lots sold by the Auctioneer will typically be sold under unconditional auction terms.
The auction end date for this property is scheduled for 20th April 2026. Please note some circumstances can cause this date to change, and it may close before the scheduled end date.
Upon acceptance of their bid, the winning bidder will be required to pay both a deposit and a buyer's premium within 24 hours. Typically, this will be 10% of the sale price and 4% plus VAT of the sale price (subject to a minimum of £4,000 plus VAT) respectively. The deposit will form part of the sale price on completion of the sale, the buyer's premium will be retained by The Auctioneer as a fee for their services.
Most properties can be viewed prior to the auction date either in person or through our virtual 360 tours and can be arranged via Tiger Sales and Lettings.
Prospective buyers will be required to register with The Auctioneer, upon doing this they will be able to download legal information and place bids. Visit the Auctioneer's website to register, in-line with anti-money laundering regulations, a prospective buyer's identity will have to be verified before a bid(s) can be placed.
For specifics relating to the auction/sale, a buyer should download and review the Legal Pack via The Auctioneer's website, paying special attention to the Special Conditions, the auctioneers' terms and conditions, and the RICS Common Auction Conditions. We recommend seeking the advice of a competent legal advisor before placing a bid.
Looking to SELL by AUCTION rather than BUY? Get in touch for your free valuation! You never know, your property may be worth more than you think.
WebbMove Auctions is a trading name of Tiger Sales and Lettings Ltd.
Brochures
Portrait Brochure...- COUNCIL TAXA payment made to your local authority in order to pay for local services like schools, libraries, and refuse collection. The amount you pay depends on the value of the property.Read more about council Tax in our glossary page.
- Band: A
- PARKINGDetails of how and where vehicles can be parked, and any associated costs.Read more about parking in our glossary page.
- Off street
- GARDENA property has access to an outdoor space, which could be private or shared.
- Yes
- ACCESSIBILITYHow a property has been adapted to meet the needs of vulnerable or disabled individuals.Read more about accessibility in our glossary page.
- Ask agent
Woodfield Road, Blackpool
Add an important place to see how long it'd take to get there from our property listings.
__mins driving to your place
Get an instant, personalised result:
- Show sellers you’re serious
- Secure viewings faster with agents
- No impact on your credit score
Affordability
Notes
Staying secure when looking for property
Ensure you're up to date with our latest advice on how to avoid fraud or scams when looking for property online.
Visit our security centre to find out moreDisclaimer - Property reference 100331017177. The information displayed about this property comprises a property advertisement. Rightmove.co.uk makes no warranty as to the accuracy or completeness of the advertisement or any linked or associated information, and Rightmove has no control over the content. This property advertisement does not constitute property particulars. The information is provided and maintained by Tiger Sales & Lettings, Blackpool. Please contact the selling agent or developer directly to obtain any information which may be available under the terms of The Energy Performance of Buildings (Certificates and Inspections) (England and Wales) Regulations 2007 or the Home Report if in relation to a residential property in Scotland.
Auction Fees: The purchase of this property may include associated fees not listed here, as it is to be sold via auction. To find out more about the fees associated with this property please call Tiger Sales & Lettings, Blackpool on 01253 835609.
*Guide Price: An indication of a seller's minimum expectation at auction and given as a Guide Price or a range of Guide Prices. This is not necessarily the figure a property will sell for and is subject to change prior to the auction.
Reserve Price: Each auction property will be subject to a Reserve Price below which the property cannot be sold at auction. Normally the Reserve Price will be set within the range of Guide Prices or no more than 10% above a single Guide Price.
*This is the average speed from the provider with the fastest broadband package available at this postcode. The average speed displayed is based on the download speeds of at least 50% of customers at peak time (8pm to 10pm). Fibre/cable services at the postcode are subject to availability and may differ between properties within a postcode. Speeds can be affected by a range of technical and environmental factors. The speed at the property may be lower than that listed above. You can check the estimated speed and confirm availability to a property prior to purchasing on the broadband provider's website. Providers may increase charges. The information is provided and maintained by Decision Technologies Limited. **This is indicative only and based on a 2-person household with multiple devices and simultaneous usage. Broadband performance is affected by multiple factors including number of occupants and devices, simultaneous usage, router range etc. For more information speak to your broadband provider.
Map data ©OpenStreetMap contributors.








