
Bristol Road, Churchill, BS25
- PROPERTY TYPE
Plot
- SIZE
Ask agent
Key features
- Full Planning Permission Granted (27 November 2025)
- Application Reference: 25/P/2031/FUL
- Consent for 1 no. detached dwelling
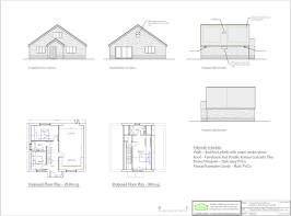
- Approved Site Layout Plan (2515/11 Rev A)
- Approved Floor Plans & Elevations (2515/01)
- Approved Street Scene (2515/02)
- Access widening approved as part of consent
- Ecological Appraisal completed (Quantock Ecology, Sept 2025)
- Arboricultural Method Statement & Tree Protection Plan approved
Description
Full Planning Permission Granted – Application Ref: 25/P/2031/FUL
A single dwelling development opportunity with full planning permission granted by North Somerset Council on 27 November 2025 for the construction of 1 no. detached dwelling within the front curtilage of the existing property known as Grandston, together with widening of the existing access.
The consent (Application No: 25/P/2031/FUL) permits the erection of a detached dwelling in accordance with a full suite of approved drawings and supporting technical documentation, including site layout, floor plans, elevations and street scene.
The development has been supported by an Energy & Sustainability Statement, Ecological Appraisal (Quantock Ecology, September 2025) and Arboricultural Method Statement and Tree Protection Plan (cwhtrees, November 2025). The scheme includes biodiversity mitigation and enhancement measures and will be subject to submission and approval of a Biodiversity Gain Plan prior to commencement, in accordance with statutory Biodiversity Net Gain requirements.
A Construction Method Statement will be required to be approved prior to commencement, addressing site logistics, neighbour liaison, parking, delivery management and highway protection measures.
The permission is subject to standard time limit implementation (3 years from decision date).
The site is situated within the established settlement of Churchill, offering access to local services and strategic transport links to Bristol, Weston-super-Mare and the M5 corridor. The plot provides a straightforward single-unit development opportunity within a strong residential market location.
Full planning documentation is available within the North Somerset planning portal or upon request.
Bristol Road, Churchill, BS25
NEAREST STATIONS
Distances are straight line measurements from the centre of the postcode- Yatton Station4.1 miles
About Robin King Estate Agents, Congresbury
1 The Cross Broad Street, Congresbury, Bristol, Somerset, BS49 5DG



Notes
Disclaimer - Property reference c8e826c7-bb20-45d7-bbe0-c1361d8f264c. The information displayed about this property comprises a property advertisement. Rightmove.co.uk makes no warranty as to the accuracy or completeness of the advertisement or any linked or associated information, and Rightmove has no control over the content. This property advertisement does not constitute property particulars. The information is provided and maintained by Robin King Estate Agents, Congresbury. Please contact the selling agent or developer directly to obtain any information which may be available under the terms of The Energy Performance of Buildings (Certificates and Inspections) (England and Wales) Regulations 2007 or the Home Report if in relation to a residential property in Scotland.
Map data ©OpenStreetMap contributors.





