Market Hill, Royston, Hertfordshire, SG8 9JG.

Letting details
- Let available date:
- Now
- Deposit:
- £1,442A deposit provides security for a landlord against damage, or unpaid rent by a tenant.Read more about deposit in our glossary page.
- Min. Tenancy:
- Ask agent How long the landlord offers to let the property for.Read more about tenancy length in our glossary page.
- Let type:
- Long term
- Furnish type:
- Ask agent
- Council Tax:
- Ask agent
- PROPERTY TYPE
Apartment
- BEDROOMS
2
- BATHROOMS
1
- SIZE
Ask agent
Key features
- Two Bedroom
- Fitted Kitchen/Open Plan Lounge
- Fitted bathroom
- First Floor Apartment
- Close to local amenities
- Allocated Parking In The Warren Car Park
Description
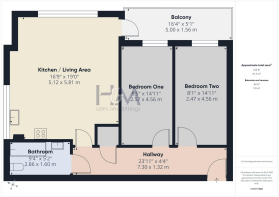
Hallway - 23.11 x 4.4 (75'9" x 14'5" ) - Storage cupboard, Door to:
Bedroom One - 4.57 x 2.57 (14'11" x 8'5" ) - Double-glazed window to the rear aspect, electric heater. and TV arial.
Bedroom Two - 4.56 x 2.47 (14'11" x 8'1") - Double-glazed window to the rear aspect, electric heater. and TV arial.
Bathroom - 2.86 x 1.60 (9'4" x 5'2" ) - Panel bath with wizer tap shower, glass shower screen, low level WC, pedestal wash hand basin, electric heated towel rail and lino flooring.
Kitchen / Lounge - 5.81 x 5.12 (19'0" x 16'9") - Open plan living space with double glazed windows to front and side aspect, double glazed door to side aspect leading to a balcony. Kitchen comprises of wall and base units with splashback tiling, integrated electric oven and hob with extractor hood over, and integrated washing machine.
Brochures
Market Hill, Royston, Hertfordshire, SG8 9JG.- COUNCIL TAXA payment made to your local authority in order to pay for local services like schools, libraries, and refuse collection. The amount you pay depends on the value of the property.Read more about council Tax in our glossary page.
- Ask agent
- PARKINGDetails of how and where vehicles can be parked, and any associated costs.Read more about parking in our glossary page.
- Yes
- GARDENA property has access to an outdoor space, which could be private or shared.
- Ask agent
- ACCESSIBILITYHow a property has been adapted to meet the needs of vulnerable or disabled individuals.Read more about accessibility in our glossary page.
- Ask agent
Market Hill, Royston, Hertfordshire, SG8 9JG.
Add an important place to see how long it'd take to get there from our property listings.
__mins driving to your place


Notes
Staying secure when looking for property
Ensure you're up to date with our latest advice on how to avoid fraud or scams when looking for property online.
Visit our security centre to find out moreDisclaimer - Property reference 34480559. The information displayed about this property comprises a property advertisement. Rightmove.co.uk makes no warranty as to the accuracy or completeness of the advertisement or any linked or associated information, and Rightmove has no control over the content. This property advertisement does not constitute property particulars. The information is provided and maintained by Homes & Mortgages Estate Agents Ltd, Stevenage. Please contact the selling agent or developer directly to obtain any information which may be available under the terms of The Energy Performance of Buildings (Certificates and Inspections) (England and Wales) Regulations 2007 or the Home Report if in relation to a residential property in Scotland.
*This is the average speed from the provider with the fastest broadband package available at this postcode. The average speed displayed is based on the download speeds of at least 50% of customers at peak time (8pm to 10pm). Fibre/cable services at the postcode are subject to availability and may differ between properties within a postcode. Speeds can be affected by a range of technical and environmental factors. The speed at the property may be lower than that listed above. You can check the estimated speed and confirm availability to a property prior to purchasing on the broadband provider's website. Providers may increase charges. The information is provided and maintained by Decision Technologies Limited. **This is indicative only and based on a 2-person household with multiple devices and simultaneous usage. Broadband performance is affected by multiple factors including number of occupants and devices, simultaneous usage, router range etc. For more information speak to your broadband provider.
Map data ©OpenStreetMap contributors.




