
Land Lying To The East Of 69 Frome Road, Bath, BA2 2PW
- PROPERTY TYPE
Land
- SIZE
Ask agent
Key features
- View more: underthehammer.com
Description
For sale by Under the Hammer online auction on Wednesday 25th March 2026. Head over to our website to download the legal pack, register to bid and see more information.
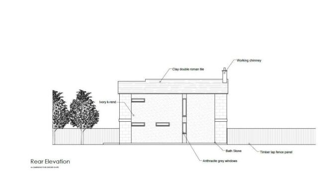
A prime residential building plot with FULL PLANNING PERMISSION for a well designed three bedroom detached dwelling. (planning ref: 19/04314/FUL)
The site is offered with all planning conditions fully discharged and benefits from works already having commenced, including foundations/footings installed in accordance with Building Control requirements. A live Building Control application is in place with Total Building Control (Bath), and commencement has been formally confirmed with BANES (Bath and North East Somerset Council) prior to the expiry of the original planning consent.
The proposed dwelling will benefit from a generous side garden and two off-road parking spaces, making it a highly attractive prospect for owner-occupiers or developers alike.
A further advantage is that there are no tree preservation charges. Discussions with Building Control confirmed the footings are positioned sufficiently away from the trees to avoid disturbance, and a no-dig driveway solution has also been approved to protect the surrounding landscape.
Overall, this is a fantastic development opportunity with key groundwork and approvals already in place, allowing a purchaser to progress the build without delay.
Here's what to do next
- Visit - Our website and view the auction terms.
- View - Book a viewing directly through our website.
- Register - Get registered prior to the auction opening date.
- Legal Pack - Download and view the legal pack to find out all the relevant information.
- Prior Auction Offer - Want it now? Submit a prior auction offer through our website. All offer's go direct to the seller.
- Bidding - Everything is completed online through the website and the intuitive bidding controls.
If you would like your property to go into our next auction then contact our auction experts on or submit a valuation on our website
Brochures
Brochure 1Land Lying To The East Of 69 Frome Road, Bath, BA2 2PW
NEAREST STATIONS
Distances are straight line measurements from the centre of the postcode- Oldfield Park Station1.3 miles
- Bath Spa Station1.5 miles
- Freshford Station3.6 miles

Notes
Disclaimer - Property reference a0YdP00000mXsPQUA0. The information displayed about this property comprises a property advertisement. Rightmove.co.uk makes no warranty as to the accuracy or completeness of the advertisement or any linked or associated information, and Rightmove has no control over the content. This property advertisement does not constitute property particulars. The information is provided and maintained by Under The Hammer, Covering Nationwide. Please contact the selling agent or developer directly to obtain any information which may be available under the terms of The Energy Performance of Buildings (Certificates and Inspections) (England and Wales) Regulations 2007 or the Home Report if in relation to a residential property in Scotland.
Auction Fees: The purchase of this property may include associated fees not listed here, as it is to be sold via auction. To find out more about the fees associated with this property please call Under The Hammer, Covering Nationwide on 03455 120115.
*Guide Price: An indication of a seller's minimum expectation at auction and given as a Guide Price or a range of Guide Prices. This is not necessarily the figure a property will sell for and is subject to change prior to the auction.
Reserve Price: Each auction property will be subject to a Reserve Price below which the property cannot be sold at auction. Normally the Reserve Price will be set within the range of Guide Prices or no more than 10% above a single Guide Price.
Map data ©OpenStreetMap contributors.





