
West Park Drive, Macclesfield

- PROPERTY TYPE
Semi-Detached
- BEDROOMS
4
- BATHROOMS
2
- SIZE
Ask agent
- TENUREDescribes how you own a property. There are different types of tenure - freehold, leasehold, and commonhold.Read more about tenure in our glossary page.
Freehold
Key features
- An Extremely Well presented Four Bedroom, Two Bathroom Semi-Detached Town House.
- Great Location In A Small Select Cul-De-Sac.
- Landscaped Private East Facing Garden.
- Dedicated Parking Space With EV Charger
Description
DESCRIPTION
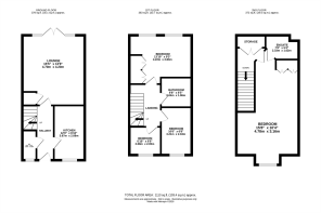
An extremely well presented four bedroom, two bathroom semi-detached town house enjoying accommodation over three floors.
This house enjoys a lovely private East facing garden of which has been landscaped and there is parking to the front. built to a most appealing design in 2019 this home has been very well cared for and is situated in a lovely small development in this sought after location in Macclesfield.
The property is warmed by gas fired central heating, having UPVC double glazing to a room layout comprising of a good sized entrance hall, stairs to the first floor, cloakroom/WC, kitchen is attractively fitted in a lovely range of cream fronted units, with Hotpoint integrated appliances,including an oven, microwave, gas hob, extractor, dishwasher, fridge/freezer and space for a washing machine.
To the rear there is a great sized spacious lounge and dining room with French doors and full length windows giving access to the garden, there is also a useful good sized under-stairs storage cupboard.
On the first floor there is the landing with a return staircase to the top floor, there are three bedrooms on this level and a beautifully fitted bathroom with a shower over the bath, on the top floor there is the landing and a good sized walk-in cupboard, the master bedroom having fitted wardrobes, windows to the front aspect, beautifully fitted en-suite shower room with a Velux window to the rear.
Outside the property also offers convient side access leading to the rear garden which is a beautifully landscaped East facing garden, to the front there is parking with an EV charger and further visitor parking. The property is covered by the remaining term of the NHBC Buildmark warranty, with approximately three years left, offering valuable protection and peace of mind for the new owner.
Brochures
Amended draft brochu- COUNCIL TAXA payment made to your local authority in order to pay for local services like schools, libraries, and refuse collection. The amount you pay depends on the value of the property.Read more about council Tax in our glossary page.
- Band: D
- PARKINGDetails of how and where vehicles can be parked, and any associated costs.Read more about parking in our glossary page.
- Yes
- GARDENA property has access to an outdoor space, which could be private or shared.
- Yes
- ACCESSIBILITYHow a property has been adapted to meet the needs of vulnerable or disabled individuals.Read more about accessibility in our glossary page.
- Ask agent
West Park Drive, Macclesfield
Add an important place to see how long it'd take to get there from our property listings.
__mins driving to your place
Get an instant, personalised result:
- Show sellers you’re serious
- Secure viewings faster with agents
- No impact on your credit score
Affordability
Notes
Staying secure when looking for property
Ensure you're up to date with our latest advice on how to avoid fraud or scams when looking for property online.
Visit our security centre to find out moreDisclaimer - Property reference 1037058. The information displayed about this property comprises a property advertisement. Rightmove.co.uk makes no warranty as to the accuracy or completeness of the advertisement or any linked or associated information, and Rightmove has no control over the content. This property advertisement does not constitute property particulars. The information is provided and maintained by Gascoigne Halman, Macclesfield. Please contact the selling agent or developer directly to obtain any information which may be available under the terms of The Energy Performance of Buildings (Certificates and Inspections) (England and Wales) Regulations 2007 or the Home Report if in relation to a residential property in Scotland.
*This is the average speed from the provider with the fastest broadband package available at this postcode. The average speed displayed is based on the download speeds of at least 50% of customers at peak time (8pm to 10pm). Fibre/cable services at the postcode are subject to availability and may differ between properties within a postcode. Speeds can be affected by a range of technical and environmental factors. The speed at the property may be lower than that listed above. You can check the estimated speed and confirm availability to a property prior to purchasing on the broadband provider's website. Providers may increase charges. The information is provided and maintained by Decision Technologies Limited. **This is indicative only and based on a 2-person household with multiple devices and simultaneous usage. Broadband performance is affected by multiple factors including number of occupants and devices, simultaneous usage, router range etc. For more information speak to your broadband provider.
Map data ©OpenStreetMap contributors.





