
Church Lane, Bisley, Woking, Surrey, GU24

- PROPERTY TYPE
Semi-Detached
- BEDROOMS
4
- BATHROOMS
3
- SIZE
1,648 sq ft
153 sq m
- TENUREDescribes how you own a property. There are different types of tenure - freehold, leasehold, and commonhold.Read more about tenure in our glossary page.
Freehold
Key features
- No Onward Chain
- Four Double Bedrooms
- Garage
- Semi-Rural Location
- Rear Garden Approx. 40ft in Length
- Accommodation in Excess of 1600sqft
- Close to Bisley Village Green
- Utility Room
- Downstairs Cloakroom
Description
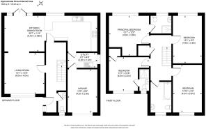
Situated in the heart of the sought after village of Bisley, just a stone’s throw from the village green and within easy walking distance to the local primary school, this spacious semi-detached home offers well balanced accommodation in excess of 1,600 sq ft. The property is offered to the market with no onward chain and is presented in excellent condition throughout.
The accommodation comprises four generously sized double bedrooms, two of which benefit from ensuite bathrooms, making it ideal for families or those seeking flexible living space. A well appointed family bathroom is fitted with a modern three-piece suite including a wash hand basin, WC and square ended bath with wall mounted shower.
On the ground floor, a spacious front aspect lounge provides a comfortable reception room, while to the rear is an impressive open plan kitchen/dining room, perfect for modern family living and entertaining. The kitchen is fitted with an extensive range of shaker style base and eye level units, offering ample storage and workspace. Additional ground floor features include a utility room, downstairs WC and integral garage, which is accessible directly from the house.
Externally, the property enjoys a pleasant rear garden featuring a well maintained lawn, sleeper enclosed borders and a patio area ideal for outdoor dining. To the front, a driveway provides off street parking.
Location
Bisley village sits conveniently for access to both Woking (3.4 Miles) and Guildford (7.7 miles) whilst the M3 is approximately 2 miles. There is a primary school in the village with secondary schools being easily accessible in West End (Gordon’s) and St John’s (Winston Churchill). There is a local Sainsbury’s within the village as well as an excellent continental butcher. A larger Sainsbury’s superstore is within a mile in nearby Knaphill.
For those who enjoy the outdoors Bisley village is surrounded by acres of common land at nearby Brentmoor Heath as well as Stafford Lake. Nearby Brookwood station provides a regular direct service to Waterloo.
Brochures
Particulars- COUNCIL TAXA payment made to your local authority in order to pay for local services like schools, libraries, and refuse collection. The amount you pay depends on the value of the property.Read more about council Tax in our glossary page.
- Band: D
- PARKINGDetails of how and where vehicles can be parked, and any associated costs.Read more about parking in our glossary page.
- Garage,Driveway
- GARDENA property has access to an outdoor space, which could be private or shared.
- Yes
- ACCESSIBILITYHow a property has been adapted to meet the needs of vulnerable or disabled individuals.Read more about accessibility in our glossary page.
- Ask agent
Church Lane, Bisley, Woking, Surrey, GU24
Add an important place to see how long it'd take to get there from our property listings.
__mins driving to your place
Get an instant, personalised result:
- Show sellers you’re serious
- Secure viewings faster with agents
- No impact on your credit score
Your mortgage
Notes
Staying secure when looking for property
Ensure you're up to date with our latest advice on how to avoid fraud or scams when looking for property online.
Visit our security centre to find out moreDisclaimer - Property reference KNA250507. The information displayed about this property comprises a property advertisement. Rightmove.co.uk makes no warranty as to the accuracy or completeness of the advertisement or any linked or associated information, and Rightmove has no control over the content. This property advertisement does not constitute property particulars. The information is provided and maintained by Seymours Estate Agents, Knaphill. Please contact the selling agent or developer directly to obtain any information which may be available under the terms of The Energy Performance of Buildings (Certificates and Inspections) (England and Wales) Regulations 2007 or the Home Report if in relation to a residential property in Scotland.
*This is the average speed from the provider with the fastest broadband package available at this postcode. The average speed displayed is based on the download speeds of at least 50% of customers at peak time (8pm to 10pm). Fibre/cable services at the postcode are subject to availability and may differ between properties within a postcode. Speeds can be affected by a range of technical and environmental factors. The speed at the property may be lower than that listed above. You can check the estimated speed and confirm availability to a property prior to purchasing on the broadband provider's website. Providers may increase charges. The information is provided and maintained by Decision Technologies Limited. **This is indicative only and based on a 2-person household with multiple devices and simultaneous usage. Broadband performance is affected by multiple factors including number of occupants and devices, simultaneous usage, router range etc. For more information speak to your broadband provider.
Map data ©OpenStreetMap contributors.





