
Derby Road, Chesterfield, S40

Letting details
- Let available date:
- 02/03/2026
- Deposit:
- £1,032A deposit provides security for a landlord against damage, or unpaid rent by a tenant.Read more about deposit in our glossary page.
- Min. Tenancy:
- 6 months How long the landlord offers to let the property for.Read more about tenancy length in our glossary page.
- Let type:
- Long term
- Furnish type:
- Unfurnished
- Council Tax:
- Ask agent
- PROPERTY TYPE
Terraced
- BEDROOMS
2
- BATHROOMS
1
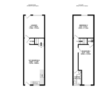
- SIZE
797 sq ft
74 sq m
Key features
- Central location
- Close to transport links
- Rear garden
- Allocated parking
- Energy efficient
- Neutrally decorated
- Modern kitchen
- Close to local amenities
- Large kitchen/diner
- To book a viewing: submit your enquiry and you'll receive an email and SMS detailing availability - within 10 min
Description
Ideal for a couple or family, this well presented and spacious two double bedroom extended mid-terrace house offers modern, comfortable living in a convenient location close to local amenities, schools, and transport links.
Key Features:
•Two generous double bedrooms with fitted storage
•Spacious and bright living room
•Large modern dining kitchen with ample storage and workspace
•Fully tiled bathroom with shower over bath
•Rear garden - perfect for relaxing and entertaining
•Off-street parking space to the rear
•Gas central heating and double glazing throughout
•Neutral décor - ready to move in
•Council Tax Band A
•A good energy efficient home with an EPC C to keep those bills down
This extended family home offers approximately 800 sq. ft. of well-maintained living space, including a welcoming living room and a spacious kitchen Diner with modern white high-gloss units and room for appliances. Upstairs, there are two large double bedrooms, both with useful storage, and a modern, good sized fully tiled bathroom. Outside, the property benefits from a pleasant rear garden and dedicated parking spaces. The property is situated close to local amenities, schools, and commuter routes, making it perfect for couples or families.
The property is ideally positioned with easy access to:
•Chesterfield town centre
•Local shops , supermarkets and schools
•Public transport and commuter routes
- COUNCIL TAXA payment made to your local authority in order to pay for local services like schools, libraries, and refuse collection. The amount you pay depends on the value of the property.Read more about council Tax in our glossary page.
- Band: A
- PARKINGDetails of how and where vehicles can be parked, and any associated costs.Read more about parking in our glossary page.
- Allocated
- GARDENA property has access to an outdoor space, which could be private or shared.
- Private garden
- ACCESSIBILITYHow a property has been adapted to meet the needs of vulnerable or disabled individuals.Read more about accessibility in our glossary page.
- No wheelchair access
Derby Road, Chesterfield, S40
Add an important place to see how long it'd take to get there from our property listings.
__mins driving to your place

Notes
Staying secure when looking for property
Ensure you're up to date with our latest advice on how to avoid fraud or scams when looking for property online.
Visit our security centre to find out moreDisclaimer - Property reference 4454_EAF_285842. The information displayed about this property comprises a property advertisement. Rightmove.co.uk makes no warranty as to the accuracy or completeness of the advertisement or any linked or associated information, and Rightmove has no control over the content. This property advertisement does not constitute property particulars. The information is provided and maintained by Hello Neighbour, London. Please contact the selling agent or developer directly to obtain any information which may be available under the terms of The Energy Performance of Buildings (Certificates and Inspections) (England and Wales) Regulations 2007 or the Home Report if in relation to a residential property in Scotland.
*This is the average speed from the provider with the fastest broadband package available at this postcode. The average speed displayed is based on the download speeds of at least 50% of customers at peak time (8pm to 10pm). Fibre/cable services at the postcode are subject to availability and may differ between properties within a postcode. Speeds can be affected by a range of technical and environmental factors. The speed at the property may be lower than that listed above. You can check the estimated speed and confirm availability to a property prior to purchasing on the broadband provider's website. Providers may increase charges. The information is provided and maintained by Decision Technologies Limited. **This is indicative only and based on a 2-person household with multiple devices and simultaneous usage. Broadband performance is affected by multiple factors including number of occupants and devices, simultaneous usage, router range etc. For more information speak to your broadband provider.
Map data ©OpenStreetMap contributors.





