
Montefiore Avenue, Ramsgate

- PROPERTY TYPE
Semi-Detached
- BEDROOMS
2
- BATHROOMS
1
- SIZE
Ask agent
- TENUREDescribes how you own a property. There are different types of tenure - freehold, leasehold, and commonhold.Read more about tenure in our glossary page.
Freehold
Key features
- Period coach house
- Two double bedrooms
- Council tax band: c
- Period features throughout
- Lounge / diner
- Kitchen breakfast room
- Four piece bathroom suite
- Pretty rear courtyard
- Epc rating: e
- Freehold
Description
In addition there is a pretty and enclosed courtyard which is secluded and perfect for alfresco dining in the summer months. Thought to have been built by Sir Moses Montefiore as his Coach House, this 300 year old Grade II listed really is steeped with history and truly, one of a kind. Montefiore Avenue offers the best of both seasides towns, Ramsgate & Broadstairs is less than a mile from the town centre and beautiful, Royal Marina. It is the perfect location for indulging in sea fishing and water sports. For more information or to book your accompanied viewing, why not contact Cooke & Co today or visit our interactive website online now.
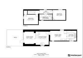
Entrance
Via front original arched entrance door into;
Lounge
19'10 x 11'1 (6.05m x 3.38m)
Original panelled walls. Oak staircase leading to first floor. Stripped wooden floorboards. TV point. Power points. Radiator. Space for table and chairs. Double glazed doors to garden. Double glazed windows to side leading to rear garden.
Kitchen/Diner
21'1 x 8'02 (6.43m x 2.49m)
Windows to front and rear. Matching selection of wall and base units with complementing work surfaces. Butler sink with mixer taps. Space for Gas Range cooker. Space and plumbing for washing machine. Space for fridge / freezer. Partially tiled walls. Tiled flooring. Log burner. Power points.
Stairs To First Floor
Wooden stairs leading to;
Landing
Windows to side.
Family Bathroom
10'06 x 8'02 (3.2m x 2.49m)
Windows to front. Modern suite in white comprising freestanding claw foot bath with mixer taps and shower attachment. High level WC. Wash hand basin. Separate fully tiled corner shower cubicle with shower unit. Feature fireplace. Heated towel rail.
Bedroom One
11'11 x 8'06 (3.63m x 2.59m)
Windows to front. Power points. Radiator. Walk in wardrobe area. Skirting and coving.
Bedroom Two
10'07 x 8'02 (3.23m x 2.49m)
Windows to side. Power points. Radiator. Feature fireplace. Skirting and picture rails.
Courtyard Garden
Private rear garden. Tiled throughout.
Brochures
Full Property Details- COUNCIL TAXA payment made to your local authority in order to pay for local services like schools, libraries, and refuse collection. The amount you pay depends on the value of the property.Read more about council Tax in our glossary page.
- Ask agent
- PARKINGDetails of how and where vehicles can be parked, and any associated costs.Read more about parking in our glossary page.
- Ask agent
- GARDENA property has access to an outdoor space, which could be private or shared.
- Yes
- ACCESSIBILITYHow a property has been adapted to meet the needs of vulnerable or disabled individuals.Read more about accessibility in our glossary page.
- Ask agent
Montefiore Avenue, Ramsgate
Add an important place to see how long it'd take to get there from our property listings.
__mins driving to your place
Get an instant, personalised result:
- Show sellers you’re serious
- Secure viewings faster with agents
- No impact on your credit score
Your mortgage
Notes
Staying secure when looking for property
Ensure you're up to date with our latest advice on how to avoid fraud or scams when looking for property online.
Visit our security centre to find out moreDisclaimer - Property reference COOKEANDCO_7003. The information displayed about this property comprises a property advertisement. Rightmove.co.uk makes no warranty as to the accuracy or completeness of the advertisement or any linked or associated information, and Rightmove has no control over the content. This property advertisement does not constitute property particulars. The information is provided and maintained by Cooke & Co, Broadstairs. Please contact the selling agent or developer directly to obtain any information which may be available under the terms of The Energy Performance of Buildings (Certificates and Inspections) (England and Wales) Regulations 2007 or the Home Report if in relation to a residential property in Scotland.
*This is the average speed from the provider with the fastest broadband package available at this postcode. The average speed displayed is based on the download speeds of at least 50% of customers at peak time (8pm to 10pm). Fibre/cable services at the postcode are subject to availability and may differ between properties within a postcode. Speeds can be affected by a range of technical and environmental factors. The speed at the property may be lower than that listed above. You can check the estimated speed and confirm availability to a property prior to purchasing on the broadband provider's website. Providers may increase charges. The information is provided and maintained by Decision Technologies Limited. **This is indicative only and based on a 2-person household with multiple devices and simultaneous usage. Broadband performance is affected by multiple factors including number of occupants and devices, simultaneous usage, router range etc. For more information speak to your broadband provider.
Map data ©OpenStreetMap contributors.








