
Truman Drive, St. Leonards-On-Sea

- PROPERTY TYPE
Detached
- BEDROOMS
5
- BATHROOMS
3
- SIZE
2,172 sq ft
202 sq m
- TENUREDescribes how you own a property. There are different types of tenure - freehold, leasehold, and commonhold.Read more about tenure in our glossary page.
Freehold
Key features
- 360° HDR VIRTUAL TOUR
- Immaculate Detached Family Home
- Accommodation Over Three Floors
- Five Bedrooms, Two with En-Suites
- Living Room & Separate Dining Room
- Modernised Kitchen
- Tiered Rear Garden
- Off Road Parking
- COUNCIL TAX BAND - F
- EPC - C
Description
Nestled in the charming estate of High Beech, this immaculate three-storey executive style detached family home on Truman Drive, offers a perfect blend of modern living and comfort. As you enter, you will find a well-appointed bedroom on the ground floor, complete with its own en-suite bathroom, providing convenience and privacy for guests or family members. The middle floor boasts a beautifully designed sitting room that invites relaxation, alongside a modernised kitchen and dining area, ideal for family gatherings and entertaining. This house also benefits from far-reaching views, allowing you to enjoy the picturesque surroundings from the comfort of your home. Ascending to the upper floor, you will discover four spacious bedrooms, including another en-suite, as well as a family bathroom that caters to the needs of a busy household. Each room is designed to maximise space and light, ensuring a warm and welcoming atmosphere throughout. The property is further enhanced by a stunning tiered rear garden, perfect for outdoor activities and enjoying the fresh air. Additionally, off-road parking is available, along with a double garage that has been cleverly adapted to include a storage area, providing ample space for your belongings. This exceptional family home is not only a sanctuary of comfort but also a wonderful opportunity to enjoy the vibrant community of St. Leonards-On-Sea. With its modern amenities and beautiful surroundings, it is a property that truly deserves your attention.
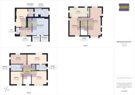
Hallway - 2.34m x 3.30m (7'8 x 10'10) -
Cloakroom/Wc - 2.08m x 1.04m (6'10 x 3'5) -
Bedroom - 5.16m x 2.77m (16'11 x 9'1) -
Dressing Nroom - 1.19m x 1.47m (3'11 x 4'10) -
En-Suite - 2.36m x 2.84m (7'9 x 9'4) -
First Floor -
Landing - 2.77m x 2.16m (9'1 x 7'1) -
Living Room - 7.98m x 3.61m (26'2 x 11'10) -
Dining Room - 5.23m x 2.90m (17'2 x 9'6) -
Kitchen - 2.54m x 5.16m (8'4 x 16'11) -
Second Floor -
Landing - 2.97m x 2.06m (9'9 x 6'9) -
Bedroom - 2.51m x 5.03m (8'3 x 16'6) -
En-Suite - 1.65m x 2.87m (5'5 x 9'5) -
Bedroom - 3.51m x 3.94m (11'6 x 12'11) -
Bedroom - 3.38m x 3.10m (11'1 x 10'2) -
Bedroom - 2.51m x 4.19m (8'3 x 13'9) -
Bathroom - 1.73m x 3.12m (5'8 x 10'3) -
Utility/Workshop - 4.90m x 4.62m (16'1 x 15'2) -
Storage Room - 1.52m x 2.21m (5' x 7'3) -
Storage Room - 1.50m x 2.24m (4'11 x 7'4) -
Agents Note - Council Tax Band - F
Fixtures and fittings: A list of the fitted carpets, curtains, light fittings and other items fixed to the property which are included in the sale (or may be available by separate negotiation) will be provided by the Seller's Solicitors.
Important Notice:
1. Particulars: These particulars are not an offer or contract, nor part of one. You should not rely on statements by Rush, Witt & Wilson in the particulars or by word of mouth or in writing ("information") as being factually accurate about the property, its condition or its value. Neither Rush, Witt & Wilson nor any joint agent has any authority to make any representations about the property, and accordingly any information given is entirely without responsibility on the part of the agents, seller(s) or lessor(s).
2. Photos, Videos etc: The photographs, property videos and virtual viewings etc. show only certain parts of the property as they appeared at the time they were taken. Areas, measurements and distances given are approximate only.
3. Regulations etc: Any reference to alterations to, or use of, any part of the property does not mean that any necessary planning, building regulations or other consent has been obtained. A buyer or lessee must find out by inspection or in other ways that these matters have been properly dealt with and that all information is correct.
4. VAT: The VAT position relating to the property may change without notice.
5. To find out how we process Personal Data, please refer to our Group Privacy Statement and other notices at
Brochures
Truman Drive, St. Leonards-On-SeaBrochure- COUNCIL TAXA payment made to your local authority in order to pay for local services like schools, libraries, and refuse collection. The amount you pay depends on the value of the property.Read more about council Tax in our glossary page.
- Band: F
- PARKINGDetails of how and where vehicles can be parked, and any associated costs.Read more about parking in our glossary page.
- Garage,Off street
- GARDENA property has access to an outdoor space, which could be private or shared.
- Yes
- ACCESSIBILITYHow a property has been adapted to meet the needs of vulnerable or disabled individuals.Read more about accessibility in our glossary page.
- Ask agent
Truman Drive, St. Leonards-On-Sea
Add an important place to see how long it'd take to get there from our property listings.
__mins driving to your place
Get an instant, personalised result:
- Show sellers you’re serious
- Secure viewings faster with agents
- No impact on your credit score
Your mortgage
Notes
Staying secure when looking for property
Ensure you're up to date with our latest advice on how to avoid fraud or scams when looking for property online.
Visit our security centre to find out moreDisclaimer - Property reference 34434666. The information displayed about this property comprises a property advertisement. Rightmove.co.uk makes no warranty as to the accuracy or completeness of the advertisement or any linked or associated information, and Rightmove has no control over the content. This property advertisement does not constitute property particulars. The information is provided and maintained by Rush Witt & Wilson, Hastings. Please contact the selling agent or developer directly to obtain any information which may be available under the terms of The Energy Performance of Buildings (Certificates and Inspections) (England and Wales) Regulations 2007 or the Home Report if in relation to a residential property in Scotland.
*This is the average speed from the provider with the fastest broadband package available at this postcode. The average speed displayed is based on the download speeds of at least 50% of customers at peak time (8pm to 10pm). Fibre/cable services at the postcode are subject to availability and may differ between properties within a postcode. Speeds can be affected by a range of technical and environmental factors. The speed at the property may be lower than that listed above. You can check the estimated speed and confirm availability to a property prior to purchasing on the broadband provider's website. Providers may increase charges. The information is provided and maintained by Decision Technologies Limited. **This is indicative only and based on a 2-person household with multiple devices and simultaneous usage. Broadband performance is affected by multiple factors including number of occupants and devices, simultaneous usage, router range etc. For more information speak to your broadband provider.
Map data ©OpenStreetMap contributors.






