
Mill House, Wheel Hill, Laxey

- PROPERTY TYPE
Detached
- BEDROOMS
3
- BATHROOMS
2
- SIZE
Ask agent
- TENUREDescribes how you own a property. There are different types of tenure - freehold, leasehold, and commonhold.Read more about tenure in our glossary page.
Ask agent
Key features
- Mill House is a charming Manx cottage located in a enviable position close by to the The Great Laxey Wheel (or Lady Isabella)
- Located within easy reach of the various amenities of Laxey with picturesque county-side walks such as Laxey Plantation and river close by
- Occupying a generous sized plot
- Property has been significantly extended to create versatile and spacious accommodation
- Accommodation provides an abundance of period charm and character
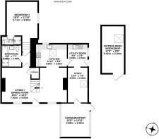
- Entrance porch leading to a characterful living/dining room with large feature fireplace with freestanding log burner - ideal for those cosy winter nights
- Modern kitchen, utility room off and a study with access to a sunroom/conservatory with aspects over the mature gardens
- 3 Double bedrooms, ensuite wet room and a family bathroom
- Driveway providing off-road parking, detached stone workshop/outbuilding, storage shed and a greenhouse
- Extensive gardens with vegetable plot mature shrubs, trees and the plot borders the picturesque waterfall and river
Description
Mill House is a charming and characterful Manx cottage, occupying an enviable position close to The Great Laxey Wheel (Lady Isabella) and within easy reach of the wide range of amenities in Laxey. The property enjoys picturesque countryside walks on its doorstep, including Laxey Plantation, with the river and surrounding natural beauty adding to its idyllic setting.
Set within a generous plot, the home has been significantly extended to create versatile and spacious accommodation while retaining an abundance of period charm and original character.
An entrance porch leads into a warm and inviting living/dining room, featuring a large fireplace with a freestanding log burner—perfect for cosy winter evenings. The modern kitchen is complemented by a utility room, while a separate study provides an ideal work-from-home space and gives access to a delightful sunroom/conservatory overlooking the mature gardens.
There are three double bedrooms, including a principal bedroom with an en-suite wet room, together with a well-appointed family bathroom.
Externally, the property benefits from a driveway providing off-road parking, a detached stone workshop/outbuilding, storage shed, and greenhouse. The extensive gardens are a particular feature, incorporating a vegetable plot, mature shrubs and trees, and bordering a picturesque waterfall and river—creating a truly special and tranquil environment.
Mill House offers a rare opportunity to acquire a beautifully extended cottage combining traditional character, generous outdoor space, and an exceptional setting.
Inclusions All fitted floor coverings, blinds, curtains and light fittings
Appliances Oven and 4 ring hob
Tenure Freehold
Rates Treasury tel -
Heating Oil - underfloor oil heating in the conservatory and electric under floor heating in the kitchen
Windows uPVC double glazing
- COUNCIL TAXA payment made to your local authority in order to pay for local services like schools, libraries, and refuse collection. The amount you pay depends on the value of the property.Read more about council Tax in our glossary page.
- Ask agent
- PARKINGDetails of how and where vehicles can be parked, and any associated costs.Read more about parking in our glossary page.
- Yes
- GARDENA property has access to an outdoor space, which could be private or shared.
- Yes
- ACCESSIBILITYHow a property has been adapted to meet the needs of vulnerable or disabled individuals.Read more about accessibility in our glossary page.
- Ask agent
Energy performance certificate - ask agent
Mill House, Wheel Hill, Laxey
Add an important place to see how long it'd take to get there from our property listings.
__mins driving to your place
Get an instant, personalised result:
- Show sellers you’re serious
- Secure viewings faster with agents
- No impact on your credit score
Affordability
Notes
Staying secure when looking for property
Ensure you're up to date with our latest advice on how to avoid fraud or scams when looking for property online.
Visit our security centre to find out moreDisclaimer - Property reference 7073. The information displayed about this property comprises a property advertisement. Rightmove.co.uk makes no warranty as to the accuracy or completeness of the advertisement or any linked or associated information, and Rightmove has no control over the content. This property advertisement does not constitute property particulars. The information is provided and maintained by Garforth Gray, Isle of Man. Please contact the selling agent or developer directly to obtain any information which may be available under the terms of The Energy Performance of Buildings (Certificates and Inspections) (England and Wales) Regulations 2007 or the Home Report if in relation to a residential property in Scotland.
*This is the average speed from the provider with the fastest broadband package available at this postcode. The average speed displayed is based on the download speeds of at least 50% of customers at peak time (8pm to 10pm). Fibre/cable services at the postcode are subject to availability and may differ between properties within a postcode. Speeds can be affected by a range of technical and environmental factors. The speed at the property may be lower than that listed above. You can check the estimated speed and confirm availability to a property prior to purchasing on the broadband provider's website. Providers may increase charges. The information is provided and maintained by Decision Technologies Limited. **This is indicative only and based on a 2-person household with multiple devices and simultaneous usage. Broadband performance is affected by multiple factors including number of occupants and devices, simultaneous usage, router range etc. For more information speak to your broadband provider.
Map data ©OpenStreetMap contributors.






