Roundhill, Fordingbridge, SP6

Letting details
- Let available date:
- 09/03/2026
- Deposit:
- £1,385A deposit provides security for a landlord against damage, or unpaid rent by a tenant.Read more about deposit in our glossary page.
- Min. Tenancy:
- 6 months How long the landlord offers to let the property for.Read more about tenancy length in our glossary page.
- Let type:
- Long term
- Furnish type:
- Unfurnished
- Council Tax:
- Ask agent
- PROPERTY TYPE
End of Terrace
- BEDROOMS
2
- BATHROOMS
1
- SIZE
Ask agent
Key features
- Redecoration will be completed throughout
- 2 Bedrooms
- Open Plan Living
- Modern double shower room
- Offered Unfurnished
- Located in the town centre
Description
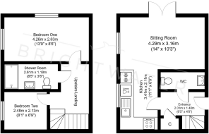
A well-presented two bedroom end of terrace house situated in the heart of Fordingbridge town centre, offering convenient access to local shops, amenities and transport links.
The property is entered via an entrance hallway with useful understairs storage, downstairs WC and stairs leading to the first floor. To the rear of the property is a bright and modern open plan lounge/kitchen with doors opening onto a private courtyard garden, creating a light and airy living space.
The kitchen is fitted with a range of contemporary units and benefits from integrated appliances including a fridge/freezer, dishwasher and oven with electric hob. The property is heated via a combination gas boiler.
Upstairs, there are two bedrooms comprising a double bedroom with free standing wardrobe and a single bedroom. The accommodation is completed by a modern double shower room.
Externally, there is a low-maintenance courtyard garden. Parking is available via permit in the local town car park.
The property is offered unfurnished and will be redecorated throughout prior to a new tenant taking occupation.
No pets or children permitted.
EPC Rating: B
- COUNCIL TAXA payment made to your local authority in order to pay for local services like schools, libraries, and refuse collection. The amount you pay depends on the value of the property.Read more about council Tax in our glossary page.
- Band: C
- PARKINGDetails of how and where vehicles can be parked, and any associated costs.Read more about parking in our glossary page.
- Yes
- GARDENA property has access to an outdoor space, which could be private or shared.
- Private garden
- ACCESSIBILITYHow a property has been adapted to meet the needs of vulnerable or disabled individuals.Read more about accessibility in our glossary page.
- Ask agent
Energy performance certificate - ask agent
Roundhill, Fordingbridge, SP6
Add an important place to see how long it'd take to get there from our property listings.
__mins driving to your place
Notes
Staying secure when looking for property
Ensure you're up to date with our latest advice on how to avoid fraud or scams when looking for property online.
Visit our security centre to find out moreDisclaimer - Property reference af4770d8-ec48-4637-9038-f9285adf19ee. The information displayed about this property comprises a property advertisement. Rightmove.co.uk makes no warranty as to the accuracy or completeness of the advertisement or any linked or associated information, and Rightmove has no control over the content. This property advertisement does not constitute property particulars. The information is provided and maintained by BrightWater, Ringwood. Please contact the selling agent or developer directly to obtain any information which may be available under the terms of The Energy Performance of Buildings (Certificates and Inspections) (England and Wales) Regulations 2007 or the Home Report if in relation to a residential property in Scotland.
*This is the average speed from the provider with the fastest broadband package available at this postcode. The average speed displayed is based on the download speeds of at least 50% of customers at peak time (8pm to 10pm). Fibre/cable services at the postcode are subject to availability and may differ between properties within a postcode. Speeds can be affected by a range of technical and environmental factors. The speed at the property may be lower than that listed above. You can check the estimated speed and confirm availability to a property prior to purchasing on the broadband provider's website. Providers may increase charges. The information is provided and maintained by Decision Technologies Limited. **This is indicative only and based on a 2-person household with multiple devices and simultaneous usage. Broadband performance is affected by multiple factors including number of occupants and devices, simultaneous usage, router range etc. For more information speak to your broadband provider.
Map data ©OpenStreetMap contributors.





