
Roof and Airspace at 103-105 Harley Street, Marylebone, W1G 6AJ
- PROPERTY TYPE
Land
- SIZE
Ask agent
Description
Leasehold Roof Space with Planning Consent Granted for a Two Bedroom Flat
Situated on Harley Street, in a sought after location close to local shopping/travelling facilities including Regents Park (Bakerloo Line) and Great Portland Street (Circle, Metropolitan and Hammersmith & City Lines) Tube Stations. The Regent's Park is also nearby.
A Leasehold Roof Space.
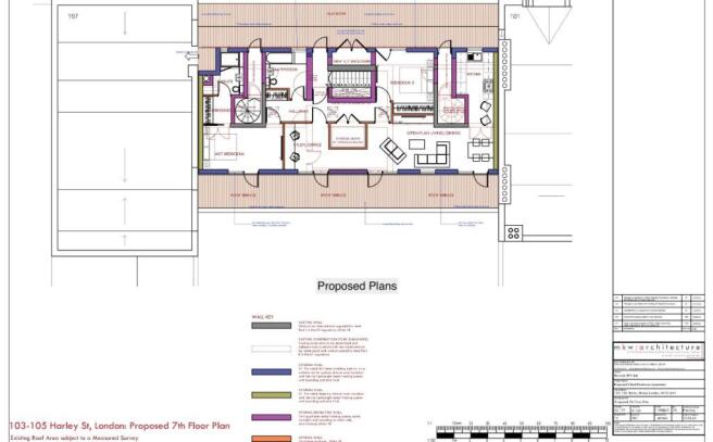
Planning Consent has been granted by City of Westminster on the 11th June 2025 for Removal of Existing Roof Structures and the Erection of a Single Storey Roof Extension at 7th Floor Level to Provide a Two Bedroom Flat with and enclosed plant area at the front and the creation of a rear terrace. Copies of the proposed plans are available for inspection. (Planning Reference 23/08248/FULL).
Leasehold for a term from 28th January 2025 expiring on 15th October 2055 (thus having approximately 29 years unexpired) at a fixed ground rent of a peppercorn.
Note 1: The property is sold with the freeholders consent for development.
Note 2: We have been advised, once constructed the lessee of the flat will be able to extend their lease with the freeholder. When the LRFA 2024 act is enacted marriage value will no longer be payable. Indicative lease extension costs are available in the legal pack. Purchasers must rely on their own enquiries.
*Guides are provided as an indication of each seller's minimum expectation. They are not necessarily figures which a property will sell for and may change at any time prior to the auction. Each property will be offered subject to a Reserve (a figure below which the Auctioneer cannot sell the property during the auction) which we expect will be set within the Guide Range or no more than 10% above a single figure Guide. Guide prices will be continually updated on our website up until the day of the auction.
There is a buyers fee payable to McHugh & Co of £1,200 incl. VAT for lots sold over £10,000. Lots sold for less than £10,000 a buyers fee of £300 incl. VAT is to be paid to McHugh & Co.
The seller may charge additional fees payable upon completion. If applicable, such fees are detailed within the special conditions of sale available in the legal documentation. Buyers are deemed to bid in full knowledge of this.
Brochures
Online BiddingRoof and Airspace at 103-105 Harley Street, Marylebone, W1G 6AJ
NEAREST STATIONS
Distances are straight line measurements from the centre of the postcode- Regent's Park Station0.2 miles
- Great Portland Street Station0.3 miles
- Baker Street Station0.4 miles
Notes
Disclaimer - Property reference 331700. The information displayed about this property comprises a property advertisement. Rightmove.co.uk makes no warranty as to the accuracy or completeness of the advertisement or any linked or associated information, and Rightmove has no control over the content. This property advertisement does not constitute property particulars. The information is provided and maintained by McHugh & Co, London. Please contact the selling agent or developer directly to obtain any information which may be available under the terms of The Energy Performance of Buildings (Certificates and Inspections) (England and Wales) Regulations 2007 or the Home Report if in relation to a residential property in Scotland.
Auction Fees: The purchase of this property may include associated fees not listed here, as it is to be sold via auction. To find out more about the fees associated with this property please call McHugh & Co, London on 020 3907 9877.
*Guide Price: An indication of a seller's minimum expectation at auction and given as a Guide Price or a range of Guide Prices. This is not necessarily the figure a property will sell for and is subject to change prior to the auction.
Reserve Price: Each auction property will be subject to a Reserve Price below which the property cannot be sold at auction. Normally the Reserve Price will be set within the range of Guide Prices or no more than 10% above a single Guide Price.
Map data ©OpenStreetMap contributors.





