40 and 40A Daisy Hill, Dewsbury, West Yorkshire, WF13 1LH

- PROPERTY TYPE
House
- BEDROOMS
5
- SIZE
Ask agent
- TENUREDescribes how you own a property. There are different types of tenure - freehold, leasehold, and commonhold.Read more about tenure in our glossary page.
Freehold
Key features
- Town centre investment opportunity
- Two adjoining houses
Description
This property remains available and open to offers following the auction on 24 March 2026.
Please contact the auctioneers for further details.
INVITING OFFERS PRIOR TO AUCTION.
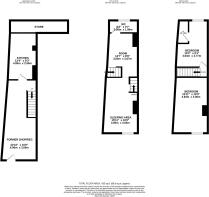
This town centre investment opportunity, in Dewsbury, comprises two adjoining properties.
40 Daisy Hill - A vacant, three storey, three bedroom house, in need of some updating.
40A Daisy Hill - A vacant three storey, two bedroom house, previously generating £5,640 per annum.
Both units were commercial before being converted to residential. Due to the generous size and layouts of the buildings, they may lend themselves to conversion to HMO, or back to commercial, subject to the necessary consents.
Location
Central Dewsbury town location with all immediate amenities. The train station is just 0.2 miles away offer travel to Leeds and Bradford.
Note Please be advised that the auctioneers have not personally inspected the property. Prospective buyers are advised to make a viewing enquiry and any other necessary independent enquiries before placing their bid, as this will be binding.
Draft Sales Details These sales details are awaiting vendor approval.
Tenure: Freehold
EPC Rating: F F
Terms:
Auction Details
The sale of this property will take place on the stated date by way of Multi lot timed auction and is being sold under the Unconditional sale type.
Binding contracts will be exchanged at the point of sale.
All sales are subject to our Common Auction Conditions and Bidder Terms. Properties located in Scotland and Northern Ireland will be subject to applicable local laws.
Auction Deposit and Fees
The following deposits and non- refundable auctioneers fees apply:
• 10% deposit (subject to a minimum of £5,000)
• Buyer’s Fee of 2.4% of the purchase price (subject to a minimum of £2,400 inc. VAT)
There may be additional fees listed in the Special Conditions of Sale, which will be available to view within the Legal Pack. You must read the Legal Pack carefully before bidding.
Additional Information
For full details about our auction processes, please refer to the Bidder Terms which can be viewed on our home page.
This explains the types of auction and sale methods we offer, the bidding registration process, your payment obligations, and how to view the Legal Pack (and any applicable home report for residential Scottish properties).
Guide Price & Reserve Price
Each property sold is subject to a Reserve Price. The Reserve Price will be within + or - 10% of the Guide Price. The Guide Price is issued solely as a guide so that a buyer can consider whether or not to pursue their interest. A full definition can be found within the Buyers Terms.
- COUNCIL TAXA payment made to your local authority in order to pay for local services like schools, libraries, and refuse collection. The amount you pay depends on the value of the property.Read more about council Tax in our glossary page.
- Band: A
- PARKINGDetails of how and where vehicles can be parked, and any associated costs.Read more about parking in our glossary page.
- Ask agent
- GARDENA property has access to an outdoor space, which could be private or shared.
- Ask agent
- ACCESSIBILITYHow a property has been adapted to meet the needs of vulnerable or disabled individuals.Read more about accessibility in our glossary page.
- Ask agent
Energy performance certificate - ask agent
40 and 40A Daisy Hill, Dewsbury, West Yorkshire, WF13 1LH
Add an important place to see how long it'd take to get there from our property listings.
__mins driving to your place
Get an instant, personalised result:
- Show sellers you’re serious
- Secure viewings faster with agents
- No impact on your credit score
Affordability
Notes
Staying secure when looking for property
Ensure you're up to date with our latest advice on how to avoid fraud or scams when looking for property online.
Visit our security centre to find out moreDisclaimer - Property reference 202508061041sq_yrfk. The information displayed about this property comprises a property advertisement. Rightmove.co.uk makes no warranty as to the accuracy or completeness of the advertisement or any linked or associated information, and Rightmove has no control over the content. This property advertisement does not constitute property particulars. The information is provided and maintained by BTG Eddisons Property Auctions, Nationwide. Please contact the selling agent or developer directly to obtain any information which may be available under the terms of The Energy Performance of Buildings (Certificates and Inspections) (England and Wales) Regulations 2007 or the Home Report if in relation to a residential property in Scotland.
Auction Fees: The purchase of this property may include associated fees not listed here, as it is to be sold via auction. To find out more about the fees associated with this property please call BTG Eddisons Property Auctions, Nationwide on 03456 462288.
*Guide Price: An indication of a seller's minimum expectation at auction and given as a Guide Price or a range of Guide Prices. This is not necessarily the figure a property will sell for and is subject to change prior to the auction.
Reserve Price: Each auction property will be subject to a Reserve Price below which the property cannot be sold at auction. Normally the Reserve Price will be set within the range of Guide Prices or no more than 10% above a single Guide Price.
*This is the average speed from the provider with the fastest broadband package available at this postcode. The average speed displayed is based on the download speeds of at least 50% of customers at peak time (8pm to 10pm). Fibre/cable services at the postcode are subject to availability and may differ between properties within a postcode. Speeds can be affected by a range of technical and environmental factors. The speed at the property may be lower than that listed above. You can check the estimated speed and confirm availability to a property prior to purchasing on the broadband provider's website. Providers may increase charges. The information is provided and maintained by Decision Technologies Limited. **This is indicative only and based on a 2-person household with multiple devices and simultaneous usage. Broadband performance is affected by multiple factors including number of occupants and devices, simultaneous usage, router range etc. For more information speak to your broadband provider.
Map data ©OpenStreetMap contributors.





