
Jutland Close, Macclesfield

- PROPERTY TYPE
Detached
- BEDROOMS
4
- BATHROOMS
2
- SIZE
Ask agent
- TENUREDescribes how you own a property. There are different types of tenure - freehold, leasehold, and commonhold.Read more about tenure in our glossary page.
Freehold
Key features
- A Well Proportioned Four Bedroom, Two Bathroom Detached Family Home.
- Situated In A Sought After And Convenient Location In Macclesfield.
- Garage And Driveway.
- Large Open-Plan Dining/Kitchen.
- Upgraded Accommodation As This Is The Original Show Home.
Description
DESCRIPTION
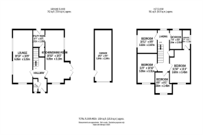
Built to a most appealing design in 2018 this four bedroom ,two bathroom detached home situated on a lovely modern development close to the town centre. This property is the show house for this development, so having upgraded fittings throughout, such as upgraded kitchen with stone work surfaces and fully tiled bathroom.
The property enjoys a private garden, parking and a single garage.
In brief on entering the house you are greeted with a great sized entrance hall, with stairs to the first floor, beautifully fitted cloakroom/WC, the spacious lounge is a lovely light room with three windows. One of this houses great features is the fabulous sized open-plan dining/kitchen which is fitted in a range of units, integrated Hotpoint appliances, including dishwasher, electric hob, extractor ,microwave oven, fridge and freezer, there is a centre island unit providing breakfast bar seating upgraded stone work surfaces, ample room for a large kitchen table and again a beautifully light room with a window to the side , front French doors and windows into the garden. Off the kitchen is the utility room fitted in the same lovely units again with stone work surfaces and having plumbing and housing for a washing machine and a tumble dryer, and a matching cupboard housing the gas fired combination boiler also a useful pantry/storage cupboard.
On the first floor there is the landing,loft access, airing cupboard providing good amounts of storage and access to all four bedrooms, the master with a window to the front, beautifully fitted en-suite with a large walk-in shower fully tiled walls and floor, three further bedrooms, lovely fitted bathroom again with the up-graded tiling to the walls and floor.
Outside there are landscaped gardens, mainly laid to lawn and enclosed via fencing, there is a composite decked area ideal for seating and inset lighting within the decking, brick built garage with door to the front, coutesy door to the side and a driveway in front of the garage.
Brochures
Brochure- COUNCIL TAXA payment made to your local authority in order to pay for local services like schools, libraries, and refuse collection. The amount you pay depends on the value of the property.Read more about council Tax in our glossary page.
- Band: F
- PARKINGDetails of how and where vehicles can be parked, and any associated costs.Read more about parking in our glossary page.
- Yes
- GARDENA property has access to an outdoor space, which could be private or shared.
- Yes
- ACCESSIBILITYHow a property has been adapted to meet the needs of vulnerable or disabled individuals.Read more about accessibility in our glossary page.
- Ask agent
Jutland Close, Macclesfield
Add an important place to see how long it'd take to get there from our property listings.
__mins driving to your place
Get an instant, personalised result:
- Show sellers you’re serious
- Secure viewings faster with agents
- No impact on your credit score
Affordability
Notes
Staying secure when looking for property
Ensure you're up to date with our latest advice on how to avoid fraud or scams when looking for property online.
Visit our security centre to find out moreDisclaimer - Property reference 1042961. The information displayed about this property comprises a property advertisement. Rightmove.co.uk makes no warranty as to the accuracy or completeness of the advertisement or any linked or associated information, and Rightmove has no control over the content. This property advertisement does not constitute property particulars. The information is provided and maintained by Gascoigne Halman, Macclesfield. Please contact the selling agent or developer directly to obtain any information which may be available under the terms of The Energy Performance of Buildings (Certificates and Inspections) (England and Wales) Regulations 2007 or the Home Report if in relation to a residential property in Scotland.
*This is the average speed from the provider with the fastest broadband package available at this postcode. The average speed displayed is based on the download speeds of at least 50% of customers at peak time (8pm to 10pm). Fibre/cable services at the postcode are subject to availability and may differ between properties within a postcode. Speeds can be affected by a range of technical and environmental factors. The speed at the property may be lower than that listed above. You can check the estimated speed and confirm availability to a property prior to purchasing on the broadband provider's website. Providers may increase charges. The information is provided and maintained by Decision Technologies Limited. **This is indicative only and based on a 2-person household with multiple devices and simultaneous usage. Broadband performance is affected by multiple factors including number of occupants and devices, simultaneous usage, router range etc. For more information speak to your broadband provider.
Map data ©OpenStreetMap contributors.





