
Hillhead Street, Hillhead, Glasgow

- PROPERTY TYPE
Apartment
- BEDROOMS
3
- BATHROOMS
2
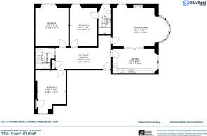
- SIZE
1,270 sq ft
118 sq m
- TENUREDescribes how you own a property. There are different types of tenure - freehold, leasehold, and commonhold.Read more about tenure in our glossary page.
Freehold
Description
In excellent internal order with some extremely stylish finishes and a fabulous internal layout this exceptional 3 bedroom top floor flat is particularly remarkable as it occupies a corner position on Hillhead Street and the very top of Gibson Street. Not only is it incredibly light as it has westerly facing frontage and southerly aspects to the side. During the summer months the flat is surrounded by richness of the mature trees in the district and in the winter there is a fabulous view to the University Tower.
Internally this property really will impress. It has been extensively modernised and cleverly re-configured to make best use of the space and has a beautiful lounge with bow window to front, extra side window (south) and "pocket" sliding door from the lounge to the superb fitted dining kitchen. There are 3 double bedrooms (master with en suite shower room) and a family bathroom off the reception hall. The hall and lounge have oak flooring, the kitchen is tiled and there are recent new carpets in each bedroom. There is also gas central heating and the windows are double glazed but remain in a traditional style. There is also gas central and the windows are double glazed but remain in a traditional style. There is also fresh decoration.
The accommodation comprises; Security entry system and communal entrance close, large welcoming hall with hardwood flooring and storage cupboard at the far end. Outstanding main lounge with 5 section bow window to front and extra window to the side, hardwood flooring, focal point fire, ornate cornicing and fabulous feature double sliding doors to dining kitchen, fitted dining kitchen with double doors, double window to front and integral appliances. Bedroom 1 with window to side, stylish en-suite shower room, bedroom 2 with double window to side and ornate cornice, main bathroom with white suite and shower over the bath, bedroom 3 with window to rear/side, gas central heating, traditional style double glazing
EPC Rating: C
- COUNCIL TAXA payment made to your local authority in order to pay for local services like schools, libraries, and refuse collection. The amount you pay depends on the value of the property.Read more about council Tax in our glossary page.
- Band: TBC
- PARKINGDetails of how and where vehicles can be parked, and any associated costs.Read more about parking in our glossary page.
- Ask agent
- GARDENA property has access to an outdoor space, which could be private or shared.
- Ask agent
- ACCESSIBILITYHow a property has been adapted to meet the needs of vulnerable or disabled individuals.Read more about accessibility in our glossary page.
- Ask agent
Hillhead Street, Hillhead, Glasgow
Add an important place to see how long it'd take to get there from our property listings.
__mins driving to your place
Get an instant, personalised result:
- Show sellers you’re serious
- Secure viewings faster with agents
- No impact on your credit score
Affordability
Notes
Staying secure when looking for property
Ensure you're up to date with our latest advice on how to avoid fraud or scams when looking for property online.
Visit our security centre to find out moreDisclaimer - Property reference GWE220742. The information displayed about this property comprises a property advertisement. Rightmove.co.uk makes no warranty as to the accuracy or completeness of the advertisement or any linked or associated information, and Rightmove has no control over the content. This property advertisement does not constitute property particulars. The information is provided and maintained by Rettie, West End. Please contact the selling agent or developer directly to obtain any information which may be available under the terms of The Energy Performance of Buildings (Certificates and Inspections) (England and Wales) Regulations 2007 or the Home Report if in relation to a residential property in Scotland.
*This is the average speed from the provider with the fastest broadband package available at this postcode. The average speed displayed is based on the download speeds of at least 50% of customers at peak time (8pm to 10pm). Fibre/cable services at the postcode are subject to availability and may differ between properties within a postcode. Speeds can be affected by a range of technical and environmental factors. The speed at the property may be lower than that listed above. You can check the estimated speed and confirm availability to a property prior to purchasing on the broadband provider's website. Providers may increase charges. The information is provided and maintained by Decision Technologies Limited. **This is indicative only and based on a 2-person household with multiple devices and simultaneous usage. Broadband performance is affected by multiple factors including number of occupants and devices, simultaneous usage, router range etc. For more information speak to your broadband provider.
Map data ©OpenStreetMap contributors.








