Buxhall Road, Brettenham

- PROPERTY TYPE
Detached
- BEDROOMS
4
- BATHROOMS
3
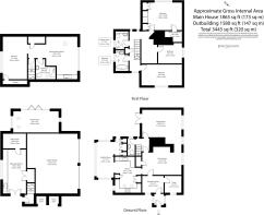
- SIZE
3,445 sq ft
320 sq m
- TENUREDescribes how you own a property. There are different types of tenure - freehold, leasehold, and commonhold.Read more about tenure in our glossary page.
Freehold
Key features
- Grade II Listed
- Four Bedrooms
- Ancillary accommodation
- Character Features
- Fabulous Breakfast Room
- Hand Crafted Bespoke Kitchen
- Delightful Enclosed Landscaped Gardens
- Countryside View Sunroom
- Double Garage & Workshop
- Lifestyle Flexibility & Income Potential
Description
Step Inside
Stepping into the porch you find a practical reception area with ample space for boots, coats, and muddy paws after country walks. To the right is the study boasting cleverly fitted cabinetry to maximise workspace. Turning left from the reception room takes you to the heart of the home, a beautifully hand-crafted bespoke kitchen, complete with a modern Everhot electric range cooker, reflecting the exceptional quality of workmanship found throughout the property. Open planned to the kitchen is the triple-aspect breakfast room offering breathtaking panoramic views across open countryside and those big Suffolk skies, with space too for comfortable armchairs to enjoy the morning papers and a cuppa. The formal traditional dining room comes into its own for family Christmas dinners and celebrations and with beautiful beam work is an atmospheric spot when the sun sets with light pouring through the window. The original fireplace currently houses a dresser but still has the flue so could be converted to a log burner or fire if desired. The dining room leads to an internal hallway and to the cloakroom and the sitting room. The characterful beamed sitting room is where everyone gravitates to in the cooler months, with cosy wood burner and crackling flames, the sofas invite snuggling down with a good book.
Style, Space & Income Potential
The property comes with outstanding secondary space lending itself perfectly to holiday letting (subject to planning), guest accommodation, or a private home office/studio, offering both lifestyle flexibility and income potential. Extending to approximately 1,580 sq. ft, the detached outbuilding has been designed with versatility firmly in mind having an independent air-source heat pump. The ground floor is a modern double garage with electric doors, workshop or mancave or hobbyists, (architect-designed for easy conversion to a kitchen, subject to permissions), and the sunroom with its vaulted ceiling, full-width bi-fold doors, creates a stunning connection to the gardens beyond. The sunroom is perfect for summer entertaining, bifolds open and staying until dusk to watch the stunning sunsets and benefits from underfloor heating so can be used all year round. The first floor provides peaceful views from the bedroom and separate living room with kitchenette, plus has a large contemporary shower room, all immaculately presented.
Exploring Upstairs
The main house has three well-appointed double bedrooms accessed by a central staircase and beautifully spacious landing. A bathroom and a separate shower room, both elegant and modern provide facilities on this floor so no queuing on the mornings! The principal west facing bedroom also offers walk in wardrobe.
Explore Outside
Accessed off a quiet country lane, a well-maintained gravel drive with extensive parking for family and friends to visit, leads to the double garage with electric doors and hard standing. The beautifully landscaped and enclosed gardens are a true highlight of this home, thoughtfully designed to complement the rural setting whilst fields surround the plot offering a view of wildlife and the changing seasons. For those who fancy a bit of "the Good Life" the Rhino greenhouse, dedicated vegetable growing area, metal fruit cages, and garden shed provide everything you need to grow your own. The grounds provide wonderful visual impact with enclosed lawns, natural pond, and beautiful oak trees so whether you are seeking a country retreat, have an active family or enjoy practical outdoor living you can have it all here.
On The Doorstep
The vibrant village community offers a welcoming atmosphere, with pretty country cottages, a 14th-century church and the Village Hall offering both regular activities and seasonal events throughout the year. There is a wealth of footpaths to enjoy dog walking and family nature walks. Just three miles away is Hitcham offering a post office and convenience store or a mile further brings you to historic Lavenham with a Co-Op supermarket, renowned butchers, a bakery, and other day-to-day amenities. For schooling, the independent day and boarding prep school, Old Buckenham Hall is based in Brettenham whilst a bus service is provided to Rattlesden primary school.
How Far Is It To….
Just 11 miles away is picturesque Bury St Edmunds with main brand retailers sitting alongside independent shops in a beautiful setting with its cathedral and ancient abbey and gardens. A little further afield days out along the Suffolk Heritage Coastline are within easy reach. A ten-minute drive to the A14 offers road links to Cambridge, the Midlands, and beyond - ideal for commuters whilst the bustling town of Stowmarket is just nine miles away providing train station with links to London and Cambridge.
- COUNCIL TAXA payment made to your local authority in order to pay for local services like schools, libraries, and refuse collection. The amount you pay depends on the value of the property.Read more about council Tax in our glossary page.
- Band: F
- LISTED PROPERTYA property designated as being of architectural or historical interest, with additional obligations imposed upon the owner.Read more about listed properties in our glossary page.
- Listed
- PARKINGDetails of how and where vehicles can be parked, and any associated costs.Read more about parking in our glossary page.
- Garage,Off street
- GARDENA property has access to an outdoor space, which could be private or shared.
- Yes
- ACCESSIBILITYHow a property has been adapted to meet the needs of vulnerable or disabled individuals.Read more about accessibility in our glossary page.
- Ask agent
Buxhall Road, Brettenham
Add an important place to see how long it'd take to get there from our property listings.
__mins driving to your place
Get an instant, personalised result:
- Show sellers you’re serious
- Secure viewings faster with agents
- No impact on your credit score
Your mortgage
Notes
Staying secure when looking for property
Ensure you're up to date with our latest advice on how to avoid fraud or scams when looking for property online.
Visit our security centre to find out moreDisclaimer - Property reference 101587028395. The information displayed about this property comprises a property advertisement. Rightmove.co.uk makes no warranty as to the accuracy or completeness of the advertisement or any linked or associated information, and Rightmove has no control over the content. This property advertisement does not constitute property particulars. The information is provided and maintained by Fine & Country, Diss. Please contact the selling agent or developer directly to obtain any information which may be available under the terms of The Energy Performance of Buildings (Certificates and Inspections) (England and Wales) Regulations 2007 or the Home Report if in relation to a residential property in Scotland.
*This is the average speed from the provider with the fastest broadband package available at this postcode. The average speed displayed is based on the download speeds of at least 50% of customers at peak time (8pm to 10pm). Fibre/cable services at the postcode are subject to availability and may differ between properties within a postcode. Speeds can be affected by a range of technical and environmental factors. The speed at the property may be lower than that listed above. You can check the estimated speed and confirm availability to a property prior to purchasing on the broadband provider's website. Providers may increase charges. The information is provided and maintained by Decision Technologies Limited. **This is indicative only and based on a 2-person household with multiple devices and simultaneous usage. Broadband performance is affected by multiple factors including number of occupants and devices, simultaneous usage, router range etc. For more information speak to your broadband provider.
Map data ©OpenStreetMap contributors.




