45 Netherblane, Blanefield, G63 9JW

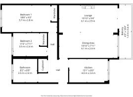
- PROPERTY TYPE
Flat
- BEDROOMS
2
- BATHROOMS
1
- SIZE
958 sq ft
89 sq m
- TENUREDescribes how you own a property. There are different types of tenure - freehold, leasehold, and commonhold.Read more about tenure in our glossary page.
Freehold
Description
A well-proportioned two-bedroom flat, set within the highly regarded Netherblane development in Blanefield and enjoying a desirable south-facing position, with wonderful views towards the loch. The property benefits from double glazing, electric heating, a private balcony and the significant advantage of a private garage. The building itself has recently been completely re-rendered, adding peace of mind for any incoming purchaser.
The accommodation is entered via a welcoming and spacious reception hallway, complete with excellent in-built storage, immediately setting a tone of practicality and convenience. The kitchen is fitted with a good range of base and wall-mounted units, offering ample workspace and storage.
The generous lounge/dining room is flooded with natural light thanks to its favourable south-facing aspect, creating a bright and comfortable main living space. There is ample space for both lounge and dining furniture and direct access is provided to the private balcony - an ideal spot for enjoying the outlook or al fresco dining in the warmer months.
To the rear, the principal bedroom is of excellent size and benefits from built-in storage, along with plenty of space for additional free-standing furniture. The second bedroom is also well proportioned and offers flexibility for use as a guest room, home office or additional sleeping accommodation.
The bathroom is modern in presentation and features a walk-in shower. The home is further enhanced by electric radiators and double glazing throughout.
Externally, the property is complemented by a private, spacious garage, ideal for secure parking, storage or potential workshop use.
Overall, this is a bright, comfortable and highly practical home, well suited to a range of buyers and set within a sought-after development.
EER Band - C
Local Area
The villages of Strathblane and Blanefield are well served by local amenities. The village itself offers an excellent range of amenities including a GP practice / health centre, restaurants, hotels and village pub. There is a general store and a number of other independent stores. For clients who enjoy the outdoors, the villages are located in the foot hills of the Campsie Fells and there are many pleasant walks to be enjoyed, especially at nearby Mugdock Country Park. There is also excellent access to The West Highland Way.
Brochures
Web Details- COUNCIL TAXA payment made to your local authority in order to pay for local services like schools, libraries, and refuse collection. The amount you pay depends on the value of the property.Read more about council Tax in our glossary page.
- Band: E
- PARKINGDetails of how and where vehicles can be parked, and any associated costs.Read more about parking in our glossary page.
- Yes
- GARDENA property has access to an outdoor space, which could be private or shared.
- Communal garden
- ACCESSIBILITYHow a property has been adapted to meet the needs of vulnerable or disabled individuals.Read more about accessibility in our glossary page.
- Ask agent
Energy performance certificate - ask agent
45 Netherblane, Blanefield, G63 9JW
Add an important place to see how long it'd take to get there from our property listings.
__mins driving to your place
Get an instant, personalised result:
- Show sellers you’re serious
- Secure viewings faster with agents
- No impact on your credit score
Your mortgage
Notes
Staying secure when looking for property
Ensure you're up to date with our latest advice on how to avoid fraud or scams when looking for property online.
Visit our security centre to find out moreDisclaimer - Property reference BD4059. The information displayed about this property comprises a property advertisement. Rightmove.co.uk makes no warranty as to the accuracy or completeness of the advertisement or any linked or associated information, and Rightmove has no control over the content. This property advertisement does not constitute property particulars. The information is provided and maintained by Corum, Bearsden. Please contact the selling agent or developer directly to obtain any information which may be available under the terms of The Energy Performance of Buildings (Certificates and Inspections) (England and Wales) Regulations 2007 or the Home Report if in relation to a residential property in Scotland.
*This is the average speed from the provider with the fastest broadband package available at this postcode. The average speed displayed is based on the download speeds of at least 50% of customers at peak time (8pm to 10pm). Fibre/cable services at the postcode are subject to availability and may differ between properties within a postcode. Speeds can be affected by a range of technical and environmental factors. The speed at the property may be lower than that listed above. You can check the estimated speed and confirm availability to a property prior to purchasing on the broadband provider's website. Providers may increase charges. The information is provided and maintained by Decision Technologies Limited. **This is indicative only and based on a 2-person household with multiple devices and simultaneous usage. Broadband performance is affected by multiple factors including number of occupants and devices, simultaneous usage, router range etc. For more information speak to your broadband provider.
Map data ©OpenStreetMap contributors.







