
Roedean Crescent, London

Letting details
- Let available date:
- Ask agent
- Deposit:
- £17,307A deposit provides security for a landlord against damage, or unpaid rent by a tenant.Read more about deposit in our glossary page.
- Min. Tenancy:
- Ask agent How long the landlord offers to let the property for.Read more about tenancy length in our glossary page.
- Let type:
- Long term
- Furnish type:
- Furnished
- Council Tax:
- Ask agent
- PROPERTY TYPE
Detached
- BEDROOMS
5
- BATHROOMS
2
- SIZE
Ask agent
Key features
- Exceptional Gated Detached Family Home
- Five bedroom
- Two bathroom, 1 w/c
- Large Garden
- Pet Friendly
- Moments from the Entrance of Richmond Park
Description
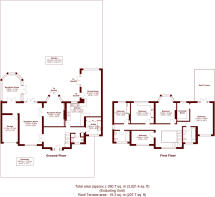
This exceptional gated detached family home comprises large primary bedroom leading onto south-facing private roof terrace with walk-in wardrobe, 4 additional double bedrooms, 2 bathrooms, 1 w/c, open plan dining room with fully equipped kitchen leading into a large garden, a reception room leading into the TV room, conservatory room, utility room and garage.
The property benefits from a gated private driveway for secure parking of several cars.
The property is located on an exclusive residential road moments from the Roehampton Gate Entrance of the Famous Richmond Park with the historically Pembroke Lodge and Holly Lodge, a spot of deer watching or a game of golf in one of the two courses. East Sheen Common where you can enjoy a stroll in the park with your furry friend, a child's day out at the Sheen Common Play Area or a competitive game of Tennis or Squash at the local lawn club.
The exceptional schools and nursery's in the area are Barnes Primary School, East Sheen Primary School, King's House School, The German School, The Swedish School and The Harrodian.
The transport links for the South Western Railway are located at Barnes, Mortlake and North Sheen Stations.
Security Deposit: £17,307
Council Tax Band: H
Information contained within this listing is for guidance only and should be checked and confirmed (prior to proceeding).
- COUNCIL TAXA payment made to your local authority in order to pay for local services like schools, libraries, and refuse collection. The amount you pay depends on the value of the property.Read more about council Tax in our glossary page.
- Ask agent
- PARKINGDetails of how and where vehicles can be parked, and any associated costs.Read more about parking in our glossary page.
- Yes
- GARDENA property has access to an outdoor space, which could be private or shared.
- Yes
- ACCESSIBILITYHow a property has been adapted to meet the needs of vulnerable or disabled individuals.Read more about accessibility in our glossary page.
- Ask agent
Roedean Crescent, London
Add an important place to see how long it'd take to get there from our property listings.
__mins driving to your place
Notes
Staying secure when looking for property
Ensure you're up to date with our latest advice on how to avoid fraud or scams when looking for property online.
Visit our security centre to find out moreDisclaimer - Property reference 34488014. The information displayed about this property comprises a property advertisement. Rightmove.co.uk makes no warranty as to the accuracy or completeness of the advertisement or any linked or associated information, and Rightmove has no control over the content. This property advertisement does not constitute property particulars. The information is provided and maintained by Marsh & Parsons, Barnes & East Sheen. Please contact the selling agent or developer directly to obtain any information which may be available under the terms of The Energy Performance of Buildings (Certificates and Inspections) (England and Wales) Regulations 2007 or the Home Report if in relation to a residential property in Scotland.
*This is the average speed from the provider with the fastest broadband package available at this postcode. The average speed displayed is based on the download speeds of at least 50% of customers at peak time (8pm to 10pm). Fibre/cable services at the postcode are subject to availability and may differ between properties within a postcode. Speeds can be affected by a range of technical and environmental factors. The speed at the property may be lower than that listed above. You can check the estimated speed and confirm availability to a property prior to purchasing on the broadband provider's website. Providers may increase charges. The information is provided and maintained by Decision Technologies Limited. **This is indicative only and based on a 2-person household with multiple devices and simultaneous usage. Broadband performance is affected by multiple factors including number of occupants and devices, simultaneous usage, router range etc. For more information speak to your broadband provider.
Map data ©OpenStreetMap contributors.








