
Circa, The Ring, Bracknell, Berkshire, RG12

Letting details
- Let available date:
- Ask agent
- Deposit:
- £1,615A deposit provides security for a landlord against damage, or unpaid rent by a tenant.Read more about deposit in our glossary page.
- Min. Tenancy:
- 6 months How long the landlord offers to let the property for.Read more about tenancy length in our glossary page.
- Let type:
- Long term
- Furnish type:
- Part furnished
- Council Tax:
- Ask agent
- PROPERTY TYPE
Apartment
- BEDROOMS
1
- BATHROOMS
1
- SIZE
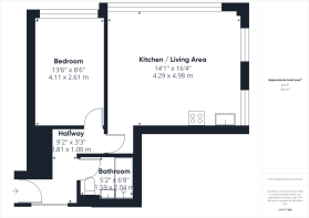
463 sq ft
43 sq m
Key features
- Available Now
- Modern Apartment in Circa Development
- Close to Bracknell Lexicon and Train Station
- Third Floor With Lift Access
- Open-plan kitchen, living, and dining area
- Double Bedroom with Built-In Wardrobes
- Stylish Bathroom with Walk-In Shower
- Access To Private Gym
Description
this beautifully presented apartment is situated within the sought-after Circa Development, just moments from the vibrant Bracknell Lexicon Centre and within easy walking distance of Bracknell train station and local amenities.
Positioned on the third floor with lift access, the property has been thoughtfully remodelled to maximise space and functionality, featuring clever storage solutions throughout.
The accommodation includes a spacious open-plan kitchen, living and dining area, a generous double bedroom with built-in wardrobes, and a stylish modern bathroom complete with a walk-in shower.
Residents benefit from an allocated parking space and exclusive access to the on-site private gym.
The apartment is offered on a part-furnished basis, providing flexibility for prospective tenants.
Brochures
Particulars- COUNCIL TAXA payment made to your local authority in order to pay for local services like schools, libraries, and refuse collection. The amount you pay depends on the value of the property.Read more about council Tax in our glossary page.
- Band: B
- PARKINGDetails of how and where vehicles can be parked, and any associated costs.Read more about parking in our glossary page.
- Allocated
- GARDENA property has access to an outdoor space, which could be private or shared.
- Ask agent
- ACCESSIBILITYHow a property has been adapted to meet the needs of vulnerable or disabled individuals.Read more about accessibility in our glossary page.
- Lift access
Circa, The Ring, Bracknell, Berkshire, RG12
Add an important place to see how long it'd take to get there from our property listings.
__mins driving to your place
Notes
Staying secure when looking for property
Ensure you're up to date with our latest advice on how to avoid fraud or scams when looking for property online.
Visit our security centre to find out moreDisclaimer - Property reference BRL250086_L. The information displayed about this property comprises a property advertisement. Rightmove.co.uk makes no warranty as to the accuracy or completeness of the advertisement or any linked or associated information, and Rightmove has no control over the content. This property advertisement does not constitute property particulars. The information is provided and maintained by Prospect Estate Agency, Bracknell. Please contact the selling agent or developer directly to obtain any information which may be available under the terms of The Energy Performance of Buildings (Certificates and Inspections) (England and Wales) Regulations 2007 or the Home Report if in relation to a residential property in Scotland.
*This is the average speed from the provider with the fastest broadband package available at this postcode. The average speed displayed is based on the download speeds of at least 50% of customers at peak time (8pm to 10pm). Fibre/cable services at the postcode are subject to availability and may differ between properties within a postcode. Speeds can be affected by a range of technical and environmental factors. The speed at the property may be lower than that listed above. You can check the estimated speed and confirm availability to a property prior to purchasing on the broadband provider's website. Providers may increase charges. The information is provided and maintained by Decision Technologies Limited. **This is indicative only and based on a 2-person household with multiple devices and simultaneous usage. Broadband performance is affected by multiple factors including number of occupants and devices, simultaneous usage, router range etc. For more information speak to your broadband provider.
Map data ©OpenStreetMap contributors.








