
Connaught Close, Shirley, B90

- PROPERTY TYPE
Retirement Property
- BEDROOMS
2
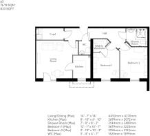
- SIZE
Ask developer
Key features
- Sought-after Solihull suburb location of Shirley with excellent local amenities
- Roof terrace and landscaped gardens for evening cocktails and lazy afternoons with friends
- On-site chef-run bistro with ever changing seasonal menus plus barista coffee and cake
- Communal lounge, bar and private dining room for parties, anniversaries, events and socialising
- Wellness suite/spa offering a regular barber, hairdresser, manicurist, beautician and massage
- Manager onsite 24/7, plus tailored domestic support and personal care on tap should you need it
- Exercise Studio with regular classes, for example, ballroom dancing, Tai Chi, yoga, ballet, circuits
- Games room for art and craft activities and clubs like photography, still life, needlework etc
- South West facing
- 24/7 call system
Description
This spectacular 2 bedroom apartment in Shirley, West Midlands is part of the Wheatley Place development from the award-winning McCarthy & Stone. A private retirement apartment, Apartment 65 is located on the third floor, is low-maintenance and contains extra safety features. See the exclusive benefits and highlights this property has to offer in the development information.
- £147,500/£339 pcm (50% example share/50% rent)
- £221,250 (75% example share/no rent)
- Other shares available
SAP Rating - up to 83
- COUNCIL TAXA payment made to your local authority in order to pay for local services like schools, libraries, and refuse collection. The amount you pay depends on the value of the property.Read more about council Tax in our glossary page.
- Band: D
- PARKINGDetails of how and where vehicles can be parked, and any associated costs.Read more about parking in our glossary page.
- Ask developer
- GARDENA property has access to an outdoor space, which could be private or shared.
- Yes
- ACCESSIBILITYHow a property has been adapted to meet the needs of vulnerable or disabled individuals.Read more about accessibility in our glossary page.
- Ask developer
Connaught Close, Shirley, B90
Add an important place to see how long it'd take to get there from our property listings.
__mins driving to your place
About McCarthy & Stone
Over 70s retirement property for sale, rent and Shared Ownership in Shirley, West Midlands
In the heart of sought-after Shirley, Solihull, this stunning new Retirement Living PLUS development comprises of 66 one and two bedroom retirement apartments for sale – exclusive to the over 70s, alongside some outstanding communal facilities, including a wonderful roof terrace, games room, exercise studio and wellness suite/spa.
Wheatley Place is located just a mile from Shirley’s thriving high street areas in a quiet residential neighbourhood. You’ll find post office, doctor's surgery, banks and building societies, as well as a host of shops, restaurants and pubs nearby, plus excellent transport links to central Birmingham and beyond.
Retirement Living with a big PLUS
Our properties for sale, rent and Shared Ownership in Shirley, West Midlands offer you the complete privacy of your own spacious apartment, but with a friendly community outside your front door – and assisted living services to support you too.
Independence combined with support
- There’s a friendly manager on-site 24/7
- An hour’s domestic support each week is included – but you can have more if you want it.
- Tailored personal care should you need it.
Apartments designed with you in mind
All these retirement homes are cleverly designed with smart yet stylish features, like easy turn taps, to make life easier now and in the future. Low maintenance, warm and elegant, with the latest security and safety features built in, most of our homeowners enjoy cheaper bills. Parking is available and well-behaved pets are welcome!
Local area
With a wealth of amenities nearby, a local neighbourhood feel and the hustle and bustle of Birmingham within easy reach, Shirley offers both calm and convenience. A short bus ride away you'll find a small shopping centre that has all of your day-to-day needs covered, and within half a mile there's a large supermarket and a retail park. The retirement development has onsite parking, plus great transport links, with both Solihull and Widney Manor train stations less than 3 miles away.
You'll find various green spaces within easy reach of the development site. At the nearby Hillfield Park, take a stroll around the lake and explore the various walking trails. And you only have to travel a little further to reach Brueton Park, which borders the River Blythe and is home to a charming cafe and nature centre.
Shirley boasts a wealth of local golf clubs. Within a five-mile radius you'll at least five different clubs, all accepting both visitors and new members. With a floodlit driving range and tuition, Widney Manor Golf Club is a great place for beginners. Copt Heath Golf Club is a joy to play with its renowned deep bunkers and subtle greens and Robin Hood Golf Club now boasts some of the most challenging holes in the Midlands. Hollywood Golf Club has a history stretching back over 100 years and Fulford Heath Golf Club was designed by James Braid, the five times Open winner. Or for something a little different, why not head to the National Motorcycle Museum? It’s the largest motorcycle museum in the world.
The properties at this development are leasehold properties with a term of 999 years from and including 31/08/2022.
Notes
Staying secure when looking for property
Ensure you're up to date with our latest advice on how to avoid fraud or scams when looking for property online.
Visit our security centre to find out moreDisclaimer - Property reference 2_Apartment 65. The information displayed about this property comprises a property advertisement. Rightmove.co.uk makes no warranty as to the accuracy or completeness of the advertisement or any linked or associated information, and Rightmove has no control over the content. This property advertisement does not constitute property particulars. The information is provided and maintained by McCarthy & Stone. Please contact the selling agent or developer directly to obtain any information which may be available under the terms of The Energy Performance of Buildings (Certificates and Inspections) (England and Wales) Regulations 2007 or the Home Report if in relation to a residential property in Scotland.
*This is the average speed from the provider with the fastest broadband package available at this postcode. The average speed displayed is based on the download speeds of at least 50% of customers at peak time (8pm to 10pm). Fibre/cable services at the postcode are subject to availability and may differ between properties within a postcode. Speeds can be affected by a range of technical and environmental factors. The speed at the property may be lower than that listed above. You can check the estimated speed and confirm availability to a property prior to purchasing on the broadband provider's website. Providers may increase charges. The information is provided and maintained by Decision Technologies Limited. **This is indicative only and based on a 2-person household with multiple devices and simultaneous usage. Broadband performance is affected by multiple factors including number of occupants and devices, simultaneous usage, router range etc. For more information speak to your broadband provider.
Map data ©OpenStreetMap contributors.





