
2 Oak Tree Place, Elmstead, Colchester, Essex, CO7

- PROPERTY TYPE
Bungalow
- BEDROOMS
3
- BATHROOMS
2
- SIZE
1,662 sq ft
154 sq m
- TENUREDescribes how you own a property. There are different types of tenure - freehold, leasehold, and commonhold.Read more about tenure in our glossary page.
Freehold
Key features
- Large light filled kitchen/dining room
- Full height glass outlook to garden
- Double garage & driveway
- Air Source Heat Pumps
- Good village amenities & schooling
- Contemporary open plan design
- Countryside and coastline nearby
- Good travel links
- 10 year structural warranty
Description
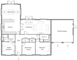
Oak Tree Place is a beautiful collection of just nine large new bungalows. Plot 2 has 1662sqft of accommodation, light open-plan rooms and double garage. A generous garden and peaceful backdrop complete this outstanding home.
Plot 2 Oak Tree Place is a premium three bedroom detached bungalow, one of nine on this select development situated in the award winning village of Elmstead Market.
This plot briefly comprises; An 'L' shaped entrance hallway with large storage and airing cupboard, leading to an impressive kitchen/dining room that measures 27ft x 16ft 2. The kitchen diner benefits from triple aspect windows, two roof lights, double glazed doors and full height windows overlooking the garden. Oak double doors lead into the light filled living room. This generous sized room 27ft 4 x 12ft 9 has dual aspect windows to the side and glazed double doors to the patio area, along with two roof lights.
The master bedroom 11ft 6 x 11ft 3 has a dressing room area and en-suite shower room, whilst bedrooms two 13ft 6 x 10ft 9 and three 11ft 6 x 10ft 9 are good size double rooms positioned close to the contemporary four piece family bathroom.
Externally the driveway and double garage provide ample parking, whilst to the rear the fully enclosed turfed garden has generous size patio and matching pathway.
This exceptional development of high quality three bedroom bungalows is ideal for family living and built by reputable South East Developments. All properties at Oak Tree Place come with a 10 year LABC build warranty and the specification as standard includes (but is not limited to); Fully integrated kitchens with solid worktops and Neff appliances, high specification Roca sanitaryware with chrome fittings, ceramic tiled flooring to bathrooms & kitchens, carpets to halls, living areas and bedrooms, eco-friendly air source heat pumps.
Location
The attractive village of Elmstead Market sits between Colchester and the pretty villages of the Tendering Peninsula, giving the perfect balance of town and country. The village has good local amenities including a Budgens store, primary school and doctors surgery. The A133, A120 and A12 carriageways mean there are excellent links to Colchester, Clacton, Harwich and beyond. The villages of Alresford and Wivenhoe are just a few miles away and have mainline stations to London Liverpool St.
Directions
Use SatNav postcode CO7 7DD
Important Information
Council Tax Band - TBC
Services - We understand that mains water and electricity are connected to the property. Heating is via air source heat pump. There are private drainage treatment plants for each property which have a pump system requiring minimal electricity usage.
Tenure - Freehold
EPC rating - TBC
Service charge - There is a management charge for occupants of this site of approx. £150 per year for the upkeep of communal areas. The maintenance remains the responsibility of the builder until such time the development is complete. At which point South East Developments will resign, a management company will be appointed and residents offered to become members.
Agents note - Any CGI images are indicative only of the finished product and some have been virtually dressed. Brick colours may vary. Choices are subject to build stage and availability.
Brochures
Particulars- COUNCIL TAXA payment made to your local authority in order to pay for local services like schools, libraries, and refuse collection. The amount you pay depends on the value of the property.Read more about council Tax in our glossary page.
- Ask agent
- PARKINGDetails of how and where vehicles can be parked, and any associated costs.Read more about parking in our glossary page.
- Yes
- GARDENA property has access to an outdoor space, which could be private or shared.
- Yes
- ACCESSIBILITYHow a property has been adapted to meet the needs of vulnerable or disabled individuals.Read more about accessibility in our glossary page.
- Ask agent
Energy performance certificate - ask agent
2 Oak Tree Place, Elmstead, Colchester, Essex, CO7
Add an important place to see how long it'd take to get there from our property listings.
__mins driving to your place
Get an instant, personalised result:
- Show sellers you’re serious
- Secure viewings faster with agents
- No impact on your credit score
Your mortgage
Notes
Staying secure when looking for property
Ensure you're up to date with our latest advice on how to avoid fraud or scams when looking for property online.
Visit our security centre to find out moreDisclaimer - Property reference NHO260028. The information displayed about this property comprises a property advertisement. Rightmove.co.uk makes no warranty as to the accuracy or completeness of the advertisement or any linked or associated information, and Rightmove has no control over the content. This property advertisement does not constitute property particulars. The information is provided and maintained by Fenn Wright, Colchester. Please contact the selling agent or developer directly to obtain any information which may be available under the terms of The Energy Performance of Buildings (Certificates and Inspections) (England and Wales) Regulations 2007 or the Home Report if in relation to a residential property in Scotland.
*This is the average speed from the provider with the fastest broadband package available at this postcode. The average speed displayed is based on the download speeds of at least 50% of customers at peak time (8pm to 10pm). Fibre/cable services at the postcode are subject to availability and may differ between properties within a postcode. Speeds can be affected by a range of technical and environmental factors. The speed at the property may be lower than that listed above. You can check the estimated speed and confirm availability to a property prior to purchasing on the broadband provider's website. Providers may increase charges. The information is provided and maintained by Decision Technologies Limited. **This is indicative only and based on a 2-person household with multiple devices and simultaneous usage. Broadband performance is affected by multiple factors including number of occupants and devices, simultaneous usage, router range etc. For more information speak to your broadband provider.
Map data ©OpenStreetMap contributors.






