
Dines Way, Hermitage, RG18, RG18

- PROPERTY TYPE
Semi-Detached
- BEDROOMS
3
- BATHROOMS
1
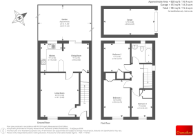
- SIZE
981 sq ft
91 sq m
- TENUREDescribes how you own a property. There are different types of tenure - freehold, leasehold, and commonhold.Read more about tenure in our glossary page.
Freehold
Key features
- No Onward Chain
- Charming three-bedroom semi-detached home
- Located in the village of Hermitage
- Ideal for investors or first-time buyers
- Cozy living room
- Open-plan kitchen and dining area
- Sliding doors to private garden
- Two double bedrooms and a single
- Family bathroom
- Off street parking
Description
Charming 3-bed semi in Hermitage with no onward chain. Open-plan kitchen/diner, cozy living room, modern bathroom, private garden, and off-road parking. Perfect for families, downsizers or first-time buyers in a friendly village location. In Downs school catchment area.
Property Details
Situated in the charming village of Hermitage, this delightful three-bedroom semi-detached home is offered with no onward chain, presenting an excellent opportunity for families, first-time buyers, Downsizers or anyone seeking a move-in-ready property in a welcoming community.
Step through into the entrance hall, where the staircase rises straight ahead to the first floor. To your left, the cozy living room offers a bright and comfortable space to relax, unwind, or enjoy time with family. From here, the home flows seamlessly into a spacious open-plan kitchen and dining area, perfect for modern living. Sliding doors open directly onto the garden, filling the room with natural light and providing an ideal space for indoor-outdoor living during warmer months.
Upstairs, you’ll find two generously sized double bedrooms and a single bedroom, offering versatile accommodation for families, guests, or a home office. A well-appointed family bathroom completes the first floor, combining practicality with a clean, modern feel.
Externally, the rear garden provides a private and secure space, perfect for children to play, pets to roam, or for summer entertaining. Off-road parking to the side of the property adds convenience and peace of mind with garage.
Set in the heart of Hermitage, with its friendly community and easy access to local amenities, this warm and welcoming home offers both comfort and potential. Early viewing is highly recommended to fully appreciate all it has to offer.
Video Viewings:
If proceeding without a physical viewing please note that you must make all necessary additional investigations to satisfy yourself that all requirements you have of the property will be met. Video content and other marketing materials shown are believed to fairly represent the property at the time they were created.
Why the owner loves the property:
If you love nature, quiet & kind neighbours, walks from your door in bluebell woods and safe cycle rides to local villages you will appreciate our well loved home in Hermitage - a thriving village only 10 minutes north of Newbury and 5 minutes from junction 13 on the M4. On our first moving in day unpacking in spring 2018 we walked to our friendly local pub - The Fox & had an excellent pizza to celebrate. Even now we pop in regularly to chat to the owners who have become friends. My husband ran his own consultancy from the smaller bedroomoffice overlooking the green & woods opposite the house & I worked at a local laboratory and as a wildlife gardener. Our daughter studied at the kitchen table overlooking the garden & got excellent A Levels at The Downs School in Compton a short bus trip away & made lots of friends in the quiet cul-de-sac. As Kirsty Allsop on the tv show Location, Location, Location always says - you can’t get a feel for a house without visiting in person. 9 years ago I did !! - we decided to move from a village with noisy neighbours, an overlooked garden and on a busy road. Our house was beautifully decorated but I felt stressed & tense all the time. I visited 7 Dines Way & I could hear birds singing & felt peaceful again and I saw the potential of this warm & welcoming home. It has been a delight to live here - we have so many good memories of relaxing & adventurous walks, summer BBQs, cosy Christmas meals & enjoying life in a thriving community.
Why the owner loves the property:
If you love nature, quiet & kind neighbours, walks from your door in bluebell woods and safe cycle rides to local villages you will appreciate our well loved home in Hermitage - a thriving village only 10 minutes north of Newbury and 5 minutes from junction 13 on the M4. On our first moving in day unpacking in spring 2018 we walked to our friendly local pub - The Fox & had an excellent pizza to celebrate. Even now we pop in regularly to chat to the owners who have become friends. My husband ran his own consultancy from the smaller bedroomoffice overlooking the green & woods opposite the house & I worked at a local laboratory and as a wildlife gardener. Our daughter studied at the kitchen table overlooking the garden & got excellent A Levels at The Downs School in Compton a short bus trip away & made lots of friends in the quiet cul-de-sac. As Kirsty Allsop on the tv show Location, Location, Location always says - you can’t get a feel for a house without visiting in person. 9 years ago I did !! - we decided to move from a village with noisy neighbours, an overlooked garden and on a busy road. Our house was beautifully decorated but I felt stressed & tense all the time. I visited 7 Dines Way & I could hear birds singing & felt peaceful again and I saw the potential of this warm & welcoming home. It has been a delight to live here - we have so many good memories of relaxing & adventurous walks, summer BBQs, cosy Christmas meals & enjoying life in a thriving community.
Brochures
More details from Chancellors- COUNCIL TAXA payment made to your local authority in order to pay for local services like schools, libraries, and refuse collection. The amount you pay depends on the value of the property.Read more about council Tax in our glossary page.
- Band: D
- PARKINGDetails of how and where vehicles can be parked, and any associated costs.Read more about parking in our glossary page.
- Garage,Off street
- GARDENA property has access to an outdoor space, which could be private or shared.
- Private garden
- ACCESSIBILITYHow a property has been adapted to meet the needs of vulnerable or disabled individuals.Read more about accessibility in our glossary page.
- Ask agent
Dines Way, Hermitage, RG18, RG18
Add an important place to see how long it'd take to get there from our property listings.
__mins driving to your place
Get an instant, personalised result:
- Show sellers you’re serious
- Secure viewings faster with agents
- No impact on your credit score
Affordability
Notes
Staying secure when looking for property
Ensure you're up to date with our latest advice on how to avoid fraud or scams when looking for property online.
Visit our security centre to find out moreDisclaimer - Property reference 6110030. The information displayed about this property comprises a property advertisement. Rightmove.co.uk makes no warranty as to the accuracy or completeness of the advertisement or any linked or associated information, and Rightmove has no control over the content. This property advertisement does not constitute property particulars. The information is provided and maintained by Chancellors, Thatcham. Please contact the selling agent or developer directly to obtain any information which may be available under the terms of The Energy Performance of Buildings (Certificates and Inspections) (England and Wales) Regulations 2007 or the Home Report if in relation to a residential property in Scotland.
*This is the average speed from the provider with the fastest broadband package available at this postcode. The average speed displayed is based on the download speeds of at least 50% of customers at peak time (8pm to 10pm). Fibre/cable services at the postcode are subject to availability and may differ between properties within a postcode. Speeds can be affected by a range of technical and environmental factors. The speed at the property may be lower than that listed above. You can check the estimated speed and confirm availability to a property prior to purchasing on the broadband provider's website. Providers may increase charges. The information is provided and maintained by Decision Technologies Limited. **This is indicative only and based on a 2-person household with multiple devices and simultaneous usage. Broadband performance is affected by multiple factors including number of occupants and devices, simultaneous usage, router range etc. For more information speak to your broadband provider.
Map data ©OpenStreetMap contributors.








