62 Chase Side, London, N14
- SIZE AVAILABLE
908 sq ft
84 sq m
- SECTOR
Commercial property for sale
Description
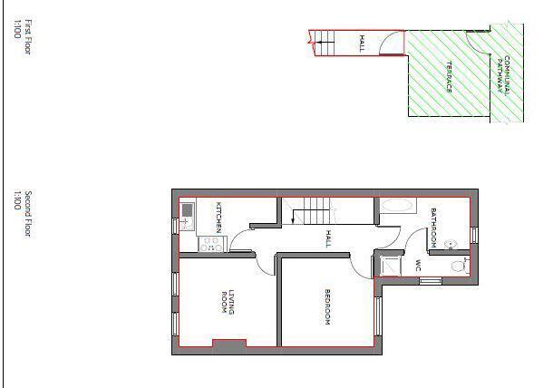
First floor 433 sq.ft approx, second floor 475 sq.ft. approx.
Access is via an external staircase at the rear.
Estimated rental value of £33,500 pa
Energy Performance Certificates
Photo 3Brochures
62 Chase Side, London, N14
NEAREST STATIONS
Distances are straight line measurements from the centre of the postcode- Southgate Station0.1 miles
- Oakwood Station1.0 miles
- Arnos Grove Station1.2 miles
Notes
Disclaimer - Property reference 113FH. The information displayed about this property comprises a property advertisement. Rightmove.co.uk makes no warranty as to the accuracy or completeness of the advertisement or any linked or associated information, and Rightmove has no control over the content. This property advertisement does not constitute property particulars. The information is provided and maintained by Paul Simon Seaton Commercial Estate Agents Ltd, London. Please contact the selling agent or developer directly to obtain any information which may be available under the terms of The Energy Performance of Buildings (Certificates and Inspections) (England and Wales) Regulations 2007 or the Home Report if in relation to a residential property in Scotland.
Map data ©OpenStreetMap contributors.




