
Arundel Road, Great Yarmouth

- PROPERTY TYPE
Terraced
- BEDROOMS
3
- BATHROOMS
2
- SIZE
Ask agent
- TENUREDescribes how you own a property. There are different types of tenure - freehold, leasehold, and commonhold.Read more about tenure in our glossary page.
Freehold
Key features
- Period Features
- Upstairs Bathroom
- Ground Floor Wet Room
- North End Of Yarmouth
- Coastal Location
- Bay Fronted
- Great Size
Description
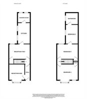
Situated in the ever popular North End of Great Yarmouth, this handsome bay fronted mid-terraced property effortlessly blends original period character with modern updates, offering a spacious and flexible layout ideal for family living or investment.
The ground floor features two generous reception rooms, perfect for both relaxed living and formal entertaining. A long, well appointed kitchen, updated in recent years, provides ample workspace and storage, while the adjoining modern ground floor wet room offers style and convenience, having been refurbished to a high standard.
Upstairs, the impressive principal bedroom enjoys natural light through the striking bay window, creating a welcoming and elegant space. A second bedroom leads through to a third bedroom or potential study, with a further family bathroom located to the rear.
Throughout the home, you'll find charming original features, including period fireplaces and architectural details that speak to the property's heritage and timeless appeal.
Outside Front
A small courtyard garden, path leading up to front entrance.
Entrance Hall
Upvc double glazed entrance door giving access, brushed entrance mat, wood style flooring, radiator, stairs to first floor, original ceiling centre rose, doors off to
Reception One
12'3" x 8'10" (3.74m x 2.70m)
Fitted carpet, radiator, double glazed bay window, original marble fireplace with cast iron hearth, two alcoves with wall lighting.
Reception Two
12'1" x 12'7" (3.70m x 3.85m)
Fitted carpet, built-in cupboard under the stairs, radiator, double glazed window, door through to
Kitchen
17'9" x 7'4" (5.42m x 2.25m)
Wood style vinyl flooring, radiator, double glazed door to the garden, two double glazed windows, range of wall and base kitchen units with a breakfast bar to the end, plumbing for washing machine, stainless steel sink and drainer with mixer tap, wall mounted boiler, space for fridge/freezer, built-in oven and ceramic hob, door through to
Wet Room
4'9" x 6'11" (1.46m x 2.13m)
Nonslip flooring with a drain, wall mounted shower, tiled splashback, radiator, low level w.c., hand wash basin with splashback, two frosted double glazed windows.
First Floor Landing
Fitted carpet, doors off to
Master Bedroom
12'2" x 13'0" (3.72m x 3.97m)
Fitted carpet, radiator, double glazed bay window, further double glazed window, original fireplace.
Bedroom Two
11'5" x 12'2" (3.50m x 3.72m)
Fitted carpet, radiator, double glazed window, built-in cupboard, door through to
Bedroom Three
9'5" x 7'3" (2.89m x 2.21m)
Fitted carpet, radiator, double glazed window, door through to
Bathroom
7'9" x 7'2" (2.37m x 2.20m)
Vinyl flooring, low level w.c., hand wash basin with mixer tap and splashback set into vanity unit, 'P' shaped bath with shower screen and mixer tap, wall mounted shower, radiator, frosted double glazed window.
Outside Rear
A courtyard garden.
Disclaimer
Howards Estate Agents also offer a professional, ARLA accredited Lettings and Management Service. If you are considering renting your property in order to purchase, are looking at buy to let or would like a free review of your current portfolio then please call the Lettings Branch Manager on the number shown above.
Howards Estate Agents is the seller's agent for this property. Your conveyancer is legally responsible for ensuring any purchase agreement fully protects your position. We make detailed enquiries of the seller to ensure the information provided is as accurate as possible. Please inform us if you become aware of any information being inaccurate.
Brochures
Material InformationBrochure- COUNCIL TAXA payment made to your local authority in order to pay for local services like schools, libraries, and refuse collection. The amount you pay depends on the value of the property.Read more about council Tax in our glossary page.
- Band: B
- PARKINGDetails of how and where vehicles can be parked, and any associated costs.Read more about parking in our glossary page.
- Ask agent
- GARDENA property has access to an outdoor space, which could be private or shared.
- Yes
- ACCESSIBILITYHow a property has been adapted to meet the needs of vulnerable or disabled individuals.Read more about accessibility in our glossary page.
- Ask agent
Arundel Road, Great Yarmouth
Add an important place to see how long it'd take to get there from our property listings.
__mins driving to your place
Get an instant, personalised result:
- Show sellers you’re serious
- Secure viewings faster with agents
- No impact on your credit score
Your mortgage
Notes
Staying secure when looking for property
Ensure you're up to date with our latest advice on how to avoid fraud or scams when looking for property online.
Visit our security centre to find out moreDisclaimer - Property reference 0383_HOW038306416. The information displayed about this property comprises a property advertisement. Rightmove.co.uk makes no warranty as to the accuracy or completeness of the advertisement or any linked or associated information, and Rightmove has no control over the content. This property advertisement does not constitute property particulars. The information is provided and maintained by Howards, Great Yarmouth. Please contact the selling agent or developer directly to obtain any information which may be available under the terms of The Energy Performance of Buildings (Certificates and Inspections) (England and Wales) Regulations 2007 or the Home Report if in relation to a residential property in Scotland.
*This is the average speed from the provider with the fastest broadband package available at this postcode. The average speed displayed is based on the download speeds of at least 50% of customers at peak time (8pm to 10pm). Fibre/cable services at the postcode are subject to availability and may differ between properties within a postcode. Speeds can be affected by a range of technical and environmental factors. The speed at the property may be lower than that listed above. You can check the estimated speed and confirm availability to a property prior to purchasing on the broadband provider's website. Providers may increase charges. The information is provided and maintained by Decision Technologies Limited. **This is indicative only and based on a 2-person household with multiple devices and simultaneous usage. Broadband performance is affected by multiple factors including number of occupants and devices, simultaneous usage, router range etc. For more information speak to your broadband provider.
Map data ©OpenStreetMap contributors.





