Sutton Lane, Middlewich

- PROPERTY TYPE
Semi-Detached
- BEDROOMS
3
- BATHROOMS
1
- SIZE
Ask agent
- TENUREDescribes how you own a property. There are different types of tenure - freehold, leasehold, and commonhold.Read more about tenure in our glossary page.
Freehold
Key features
- A beautifully presented semi detached home situated in a popular location
- Lounge with log burner, dining room and kitchen
- Three bedrooms and family bathroom
- Off road parking and garage
- Enclosed low maintenance garden
- Tenure: Freehold
- Council tax band B
- Viewing essential to fully appreciate
Description
Externally, the property benefits from off-road parking which leads to the garage. To the rear, there is an enclosed garden, ideal for relaxing, entertaining, or family enjoyment. Early viewing is highly recommended to fully appreciate all this wonderful home has to offer.
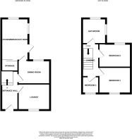
ENTRANCE HALL A lovely light, airy and welcoming entrance hall, accessed via the entrance door, laminate flooring, wall mounted radiator, doors to the lounge and dining room and stairs rising to the first floor.
LOUNGE 11' 5" x 12' 0" (3.48m x 3.66m) A cosy lounge, with a double glazed window to the front elevation, feature wood burning stove, laminate flooring and wall mounted radiator.
DINING ROOM 11' 5" x 12' (3.48m x 3.66m) A fabulous room for entertaining, with a double glazed window to the rear elevation, wall mounted radiator and a door leads to the kitchen.
KITCHEN 13' 6" x 7' 9" (4.11m x 2.36m) With double glazed windows to the side and rear elevations and a door to the side which leads to the rear garden. Fitted with a range of base and wall units with roll top worksurface over incorporating a sink unit and mixer tap. Integrated oven and hob with extraction over, space and plumbing for washing machine and dish washer. Space for fridge freezer, useful understairs storage cupboard.
LANDING Loft access and doors lead to all rooms.
BEDROOM ONE 9' 04" x 12' 0" (2.84m x 3.66m) With a double glazed window to the front elevation and wall mounted radiator.
BEDROOOM TWO 11' 08" x 9' 5" (3.56m x 2.87m) With a double glazed window to the rear elevation and wall mounted radiator.
BEDROOM THREE 8' 9" x 5' 6" (2.67m x 1.68m) With a double glazed window to the front elevation and wall mounted radiator.
FAMILY BATHROOM With a double glazed frosted window to the rear elevation. Fitted with a suite comprising low level WC, panelled bath with a shower over and hand wash basin, wall mounted radiator, part tiled walls and cupboard housing combi boiler and provides storage.
EXTERNALLY A path leads to the entrance door. A driveway to the side provides off road parking for two cards and leads to the garage. Side access to the rear garden which is enclosed with a feature decked area ideal for al-fresco dining and artificial grass.
Brochures
A4 windowBrochure- COUNCIL TAXA payment made to your local authority in order to pay for local services like schools, libraries, and refuse collection. The amount you pay depends on the value of the property.Read more about council Tax in our glossary page.
- Ask agent
- PARKINGDetails of how and where vehicles can be parked, and any associated costs.Read more about parking in our glossary page.
- Garage,Off street
- GARDENA property has access to an outdoor space, which could be private or shared.
- Yes
- ACCESSIBILITYHow a property has been adapted to meet the needs of vulnerable or disabled individuals.Read more about accessibility in our glossary page.
- Ask agent
Sutton Lane, Middlewich
Add an important place to see how long it'd take to get there from our property listings.
__mins driving to your place
Get an instant, personalised result:
- Show sellers you’re serious
- Secure viewings faster with agents
- No impact on your credit score
Your mortgage
Notes
Staying secure when looking for property
Ensure you're up to date with our latest advice on how to avoid fraud or scams when looking for property online.
Visit our security centre to find out moreDisclaimer - Property reference 101414035471. The information displayed about this property comprises a property advertisement. Rightmove.co.uk makes no warranty as to the accuracy or completeness of the advertisement or any linked or associated information, and Rightmove has no control over the content. This property advertisement does not constitute property particulars. The information is provided and maintained by Coulby Conduct, Middlewich. Please contact the selling agent or developer directly to obtain any information which may be available under the terms of The Energy Performance of Buildings (Certificates and Inspections) (England and Wales) Regulations 2007 or the Home Report if in relation to a residential property in Scotland.
*This is the average speed from the provider with the fastest broadband package available at this postcode. The average speed displayed is based on the download speeds of at least 50% of customers at peak time (8pm to 10pm). Fibre/cable services at the postcode are subject to availability and may differ between properties within a postcode. Speeds can be affected by a range of technical and environmental factors. The speed at the property may be lower than that listed above. You can check the estimated speed and confirm availability to a property prior to purchasing on the broadband provider's website. Providers may increase charges. The information is provided and maintained by Decision Technologies Limited. **This is indicative only and based on a 2-person household with multiple devices and simultaneous usage. Broadband performance is affected by multiple factors including number of occupants and devices, simultaneous usage, router range etc. For more information speak to your broadband provider.
Map data ©OpenStreetMap contributors.






