Highfields Road, Hinckley

- PROPERTY TYPE
Terraced
- BEDROOMS
2
- BATHROOMS
1
- SIZE
Ask agent
- TENUREDescribes how you own a property. There are different types of tenure - freehold, leasehold, and commonhold.Read more about tenure in our glossary page.
Freehold
Key features
- No Chain
- Freehold
- Terraced Property
- Two Bedrooms
- Council Tax Band A
- EPC Rating D
- Nicely Presented
Description
Tenure - Freehold
Council Tax Band A
EPC Rating D
Accommodation - Open canopy porch. Attractive original panelled front door to
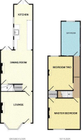
Lounge To Front - with feature fully working Victorian open fireplace having ornamental white wooden surrounds, raised granite black hearth, ornamental black cast iron fireplace with floral tiles. Fitted electric meter cupboard to side alcove. Original strip pine flooring. Coving to ceiling. Radiator. Inset ceiling spotlights. TV aerial point. Built in window seat with storage cupboards beneath housing the gas meters. Power points and light switches in the house are in brushed metal. Original stripped pine panelled interior doors to
Inner Lobby - with original quarry tiled flooring with log store. Door to deep under stairs storage cupboard with fitted shelving and lighting.
Extended Open Plan Dining Kitchen To Rear - L-shaped with feature Victorian fireplace having ornamental pine surrounds, ceramic tiled hearth, black ornamental cast iron fireplace. Original quarry tiled flooring. Radiator. Inset ceiling spotlights. UPVC SUDG French doors to rear garden from the dining area. Door and stairway to first floor. Feature archway to fitted kitchen to rear with a range of gloss grey fitted kitchen units consisting inset Belfast sink unit, chrome mixer tap above and drawer beneath. Further matching range of floor mounted cupboard units and three drawer unit. Solid oak working surfaces above. Tiled splashbacks. One tall larder unit. Stainless steel chimney extractor hood. Breakfast bar. Appliance recess points. Plumbing for automatic washing machine and dishwasher. Kenwood Range cooker included with a six ring stainless steel gas hob unit, two ovens and grills with a warming drawer beneath. Stainless steel chimney extractor hood. Double panelled radiator. Original quarry tiled and oak strip flooring. Inset ceiling spotlights. Gas cooker point. Wall mounted display shelving and clothes dryer. Inset speakers in the ceiling. UPVC SUDG French doors leading from the breakfast area to the rear garden.
First Floor Landing - with inset ceiling spotlights.
Front Bedroom One - 3.57 x 3.49 (11'8" x 11'5") - with feature Victorian fireplace having ornamental pine surrounds, black ornamental cast iron fireplace with quarry tiled hearth. Laminate wood strip flooring. Dressing table to side alcove, drawers beneath. Single panelled radiator. Door to built in wardrobe over the stairs. Loft access, partially boarded.
Bedroom Two To Rear - 3.76 x 2.74 (12'4" x 8'11") - with feature Victorian white cast iron fireplace. Radiator. Built in wardrobe over the stairs.
Refitted Bathroom To Rear - 3.83 x 2.13 (12'6" x 6'11") - with white suite consisting freestanding roll top cast iron bath with claw feet. Tiled walk in shower with glazed shower screen, rain shower above. Pedestal wash hand basin. Low level WC. Contrasting travertine tiled surrounds. Further storage cupboards and display shelving, one concealing the gas condensing combination boiler for central heating and domestic hot water. Oak strip flooring. Chrome heated towel rail. Inset ceiling spotlights.
Outside - The property is set back from the road screened behind a low retaining wall with a paved front forecourt. There is a shared covered side entry leading to the fully fenced and enclosed west facing rear garden which has a sunny aspect with the sun rising at the front of the house and setting in the garden. There is a deep full width timber decking patio with surrounding railway sleepers. There is a surrounding pergola with solar lighting. The garden is principally laid to lawn with surrounding beds and borders. To the top of the garden there is a jasmine archway leading to a further stoned area with two timber sheds., the largest has light and power. Adjacent to the rear of the house is a timber dustbin store. Outside security light and tap.
Brochures
Highfields Road, HinckleyepcBrochure- COUNCIL TAXA payment made to your local authority in order to pay for local services like schools, libraries, and refuse collection. The amount you pay depends on the value of the property.Read more about council Tax in our glossary page.
- Band: A
- PARKINGDetails of how and where vehicles can be parked, and any associated costs.Read more about parking in our glossary page.
- Ask agent
- GARDENA property has access to an outdoor space, which could be private or shared.
- Yes
- ACCESSIBILITYHow a property has been adapted to meet the needs of vulnerable or disabled individuals.Read more about accessibility in our glossary page.
- Ask agent
Highfields Road, Hinckley
Add an important place to see how long it'd take to get there from our property listings.
__mins driving to your place
Get an instant, personalised result:
- Show sellers you’re serious
- Secure viewings faster with agents
- No impact on your credit score



Your mortgage
Notes
Staying secure when looking for property
Ensure you're up to date with our latest advice on how to avoid fraud or scams when looking for property online.
Visit our security centre to find out moreDisclaimer - Property reference 34490802. The information displayed about this property comprises a property advertisement. Rightmove.co.uk makes no warranty as to the accuracy or completeness of the advertisement or any linked or associated information, and Rightmove has no control over the content. This property advertisement does not constitute property particulars. The information is provided and maintained by Scrivins & Co Estate Agents & Letting Agents, Hinckley. Please contact the selling agent or developer directly to obtain any information which may be available under the terms of The Energy Performance of Buildings (Certificates and Inspections) (England and Wales) Regulations 2007 or the Home Report if in relation to a residential property in Scotland.
*This is the average speed from the provider with the fastest broadband package available at this postcode. The average speed displayed is based on the download speeds of at least 50% of customers at peak time (8pm to 10pm). Fibre/cable services at the postcode are subject to availability and may differ between properties within a postcode. Speeds can be affected by a range of technical and environmental factors. The speed at the property may be lower than that listed above. You can check the estimated speed and confirm availability to a property prior to purchasing on the broadband provider's website. Providers may increase charges. The information is provided and maintained by Decision Technologies Limited. **This is indicative only and based on a 2-person household with multiple devices and simultaneous usage. Broadband performance is affected by multiple factors including number of occupants and devices, simultaneous usage, router range etc. For more information speak to your broadband provider.
Map data ©OpenStreetMap contributors.




