Skip to content
NEW HOME

Minho, Darque, Portugal

£133,781
€155,000
IAD, Porto
PROPERTY TYPE

Apartment

BEDROOMS

1

BATHROOMS

1

SIZE

517 sq ft

48 sq m

Description

1-BEDROOM APARTMENT SEVEN MINUTES FROM VIANA DO CASTELO CITY CENTER

If you value a home with functional lines and everyday comfort, this one-bedroom apartment in Darque deserves your attention. Just seven minutes from the center of Viana do Castelo, it will be delivered ready to move in. A key feature that makes the difference is the possibility to personalize the finishes, depending on the construction stage and available options.

**Main Features:**

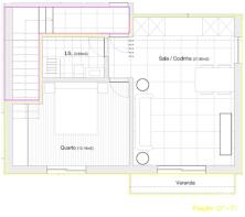
* 1st Floor (Unit D)
* Independent entrance
* Open-plan living room and kitchen (21.80 sqm) equipped with hob, oven, extractor fan, and refrigerator
* Bedroom (13.19 sqm)
* Fully fitted bathroom (3.65 sqm)
* Thermal and acoustic comfort
* Pre-installation for air conditioning

A one-bedroom apartment designed for comfortable living, with functional spaces and a welcoming atmosphere — an ideal solution balancing daily routine and well-being, whether as a primary residence or as an investment.

Construction is scheduled to begin in July/August, with estimated completion in December.

Location:
Located in Darque, with quick access and the convenience of being close to Viana do Castelo city center, while maintaining the tranquility of the area.

Schedule your visit and move in without the hassle of renovations or disruptions.
#ref: 158287

Minho, Darque, Portugal

Approximate location

NEAREST AIRPORTS

Distances are straight line measurements
  • Porto(International)
    31.2 miles

Advice on buying Portuguese property

Learn everything you need to know to successfully find and buy a property in Portugal.

About IAD, Porto

Av. da Boavista 934, Porto Portugal 4100-112

Founded in 2008, iad was born as the 1st digital real estate network made up exclusively of independent consultants. iad's DNA is based on 4 inseparable pillars: entrepreneurship, property, community and international.

In addition to head office support, the 4 pillars are backed up by digital technology and training, which make a major contribution to the success and appeal of the iad model.

With its headquarters in Paris, iad is the largest network of independent real estate consultants in Europe with more than 20,000 consultants and a turnover of 536 million euros.

iad has become the game changer of the real estate market by breaking with the sector's traditional codes, becoming the 1st French Proptech Unicorn.

In addition to France and Portugal, the iad group is also present in Spain, Italy, Germany and Mexico, the UK and the USA (more precisely, the state of Florida).

Notes

These notes are private, only you can see them.

This is a property advertisement provided and maintained by IAD, Porto (reference 158287) and does not constitute property particulars. Whilst we require advertisers to act with best practice and provide accurate information, we can only publish advertisements in good faith and have not verified any claims or statements or inspected any of the properties, locations or opportunities promoted. Rightmove does not own or control and is not responsible for the properties, opportunities, website content, products or services provided or promoted by third parties and makes no warranties or representations as to the accuracy, completeness, legality, performance or suitability of any of the foregoing. We therefore accept no liability arising from any reliance made by any reader or person to whom this information is made available to. You must perform your own research and seek independent professional advice before making any decision to purchase or invest in overseas property.

Email agent

Email agent