
Park Drive, Uplands, Swansea.
- PROPERTY TYPE
Land
- SIZE
Ask agent
Key features
- Prime infill plot in a desirable location
- Situated next to Cwmdonkin Park
- Detailed planning for two contemporary high spec detached homes
- Two house types - both 3 bedroom
- Parking and gardens included
- Viewing strictly by appointment
- Further plans and details available via planning portal
- SEA VIEWS
Description
Building Plot with Planning Permission for Two Contemporary Detached Dwellings
Site off Park Drive (rear of Glanmor Court), Uplands, Swansea SA2
Prime Infill Plot in One of Swansea’s Most Desirable Postcodes with Sea Views
This rare residential building plot occupies a tucked-away position off Park Drive in the heart of Uplands — one of Swansea’s most sought-after suburbs. Surrounded by established family homes, the site offers immediate access to Cwmdonkin Park (situated directly behind), close to the Swansea Coastline, Swansea University, excellent local schools, and the vibrant cafés, bars and independent shops of the Uplands quarter.
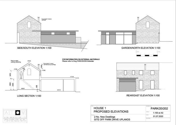
Planning Number: 2023/1885/S73
Planning.
Approved for Two High-Specification Detached Homes, Full detailed planning permission is in place for two individual contemporary detached dwellings.
Planning number: 2023/1885/S73
Proposed Scheme Highlights
House 1 – Detached family home with spacious ground-floor open- bedroom 3, open plan kitchen/dining/living, utility, WC, to first-floor are 2 bedrooms (master with ensuite and bathroom.
House 2 – Efficient design with ground-floor living accommodation including lounge, kitchen, utility room, WC, Bedroom 3, to 1st floor are two bedrooms and bathroom.
Private off-road parking and landscaped rear gardens for both properties.
High-quality external materials palette:
– Gwryd Blue Pennant Sandstone walls
– Natural blue/black slate pitched roofs
– Cedar boarding cladding with shadow gaps
– Smooth light grey render (Dulux 10GG 72/022)
– Anthracite grey aluminium windows & doors (RAL 7016)
– Colour-coated metal gutters and fasci
Information
Please speak to Chris Thomas MRICS for more information on the site.
Park Drive, Uplands, Swansea.
NEAREST STATIONS
Distances are straight line measurements from the centre of the postcode- Swansea Station1.3 miles
- Gowerton Station3.4 miles
- Llansamlet Station4.6 miles
Notes
Disclaimer - Property reference PRM12385. The information displayed about this property comprises a property advertisement. Rightmove.co.uk makes no warranty as to the accuracy or completeness of the advertisement or any linked or associated information, and Rightmove has no control over the content. This property advertisement does not constitute property particulars. The information is provided and maintained by Clee Tompkinson & Francis, Swansea. Please contact the selling agent or developer directly to obtain any information which may be available under the terms of The Energy Performance of Buildings (Certificates and Inspections) (England and Wales) Regulations 2007 or the Home Report if in relation to a residential property in Scotland.
Map data ©OpenStreetMap contributors.





