Skip to content

Provence-Alps-Cote d`Azur, Vaucluse, Taillades, France

£1,299,305
€1,495,000
Maison Victoire, Luberon and Ventoux
PROPERTY TYPE

House

BEDROOMS

6

BATHROOMS

4

SIZE

3,897 sq ft

362 sq m

Description

This elegant Provençal farmhouse, with origins dating back to the early 19th century, has been carefully restored, preserving its authentic character while offering generous volumes and modern comfort. Set in the countryside of Les Taillades, this Luberon property enjoys a peaceful rural setting within easy reach of village life, amenities, and the Luberon mountains.



Offering approximately 360m² of living space and nearly 470m² of total usable area, the house is arranged to allow both a natural sense of flow and a high degree of independence between living areas, making it ideally suited to family life, hosting guests, or a hospitality project.



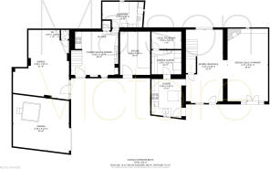
The main entrance opens into a large and welcoming hall with original stone staircase and guest WC, leading to a charming sitting room with fireplace where period features have been carefully preserved. The primary kitchen is complemented by a substantial pantry and utility area housing the boiler room, providing excellent practicality for everyday living or entertaining.



Upstairs, a spacious landing currently used as a games or TV room leads to a comfortable and flexible sleeping arrangement. This floor comprises: principal suite with dressing area and large en suite bathroom with walk-in shower; two additional suites with adjoining shower rooms; two double bedrooms sharing a shower room; bedroom currently used as dressing room; large attic space.



A second kitchen and dining room, accessible both independently from the exterior and internally via a secondary staircase, creates a fully autonomous living space, ideal for hosting family or guests in complete privacy or for rental use. Additional ground-floor spaces include a laundry room and cellar.



The property sits within an enclosed and beautifully maintained garden of approximately 0.37 acres. A large shaded terrace extends from the house, ideal for outdoor dining, overlooking the heated 11m x 3m swimming pool set within lawned gardens planted with olive trees. The outdoor areas also include an outdoor shower, chicken coop, discreetly positioned pool technical room, WC and enclosed vegetable garden.



Several outbuildings add further value and versatility to the property, including: large garage of approximately 40m², air-conditioned bureau of 40m² with independent access and WC, which could easily be converted into a guest studio or small gîte; multiple workshops and storage spaces. Parking is available for several vehicles, with a carport completing the exterior amenities.



Amenities include: double glazing; heated swimming pool; oil-fired central heating; reversible air conditioning in all bedrooms; fiber-optic internet; mains water; private well; automatic irrigation; jacuzzi; electric gate; videophone; electric vehicle charging point; CO² water softener.



Ideally located in a calm and natural environment while remaining close to shops, cafés, and restaurants, this character-filled farmhouse offers a rare opportunity to enjoy an authentic yet highly adaptable home in the Luberon.

Provence-Alps-Cote d`Azur, Vaucluse, Taillades, France

Approximate location

NEAREST AIRPORTS

Distances are straight line measurements
  • Provence(International)
    27.3 miles
  • Nîmes (Garons)(International)
    35.0 miles
  • Méditerranée(International)
    59.4 miles
  • Toulon (Le Palyvestre)(International)
    73.9 miles
  • Beziers(Local)
    94.4 miles

Advice on buying French property

Learn everything you need to know to successfully find and buy a property in France.

About Maison Victoire, Luberon and Ventoux

Place de l'Ancienne Mairie 84220 Cabrières d'Avignon

Who we are

Founded in 2007 by Directrice, Victoria Templeman, Maison Victoire is a friendly, helpful and attentive bilingual estate agency based in Cabrières-d’Avignon, a pretty Provençal village in the heart of the Luberon National Park.

With extensive knowledge of the region, the Maison Victoire team’s professionalism and expertise is invaluable in ensuring an excellent level of service is provided to our clients. We are passionate about this beautiful part of the world and we make it our priority to find you the best property at the right price.

What we do

Maison Victoire was originally located in L’Isle-Sur-La-Sorgue - a town famed for its wonderful antiques markets and pretty network of river canals.

The agency manages property sales across the department of the Vaucluse, including in the picturesque hillside villages of Gordes, Goult, Ménerbes, Roussillon, Lacoste and Bonnieux as well as Mont Ventoux and, of course, L’Isle-sur-La-Sorgue itself. We can also search further afield to Les Alpilles, Avignon, Aix-en-Provence, and areas of the Mediterranean coast. And we can even help you find commercial premises, or an already thriving going concern for sale, if you would like to set up business in the area.

We offer a comprehensive property search service, tailored to your requirements, which allows us to match your criteria within our own portfolio and includes inter-agency search as well. (In inter agency search, the normal agency fee is divided between Maison Victoire and the agency holding the property, so the buyer will not pay any extra fees.)

Maison Victoire is always looking for innovative ways to provide our clients with the best possible service. So in 2020, we have launched our state-of-the-art Virtual Visits with all new mandates. This new digital service allows sellers to showcase their homes to best advantage and gives buyers an opportunity to “walk through” a property at leisure.

We help non-French speakers through the complex French property system and we can arrange translations and organise interpreters for a wide range of other languages.

Additionally, our comprehensive after sales service helps our buyers negotiate with contacts for removals, renovation or facilitate introductions to English-speaking locals.

Our Credentials

• Qualified and experienced in French property sales

• Fully matriculated and regulated under the French legal system

• We hold a “carte professionnelle”, meaning we can legally conduct the entire sales process without charging you any finder’s fee - instead, we take a commission on the sale

Notes

These notes are private, only you can see them.

This is a property advertisement provided and maintained by Maison Victoire, Luberon and Ventoux (reference V03124.01586L) and does not constitute property particulars. Whilst we require advertisers to act with best practice and provide accurate information, we can only publish advertisements in good faith and have not verified any claims or statements or inspected any of the properties, locations or opportunities promoted. Rightmove does not own or control and is not responsible for the properties, opportunities, website content, products or services provided or promoted by third parties and makes no warranties or representations as to the accuracy, completeness, legality, performance or suitability of any of the foregoing. We therefore accept no liability arising from any reliance made by any reader or person to whom this information is made available to. You must perform your own research and seek independent professional advice before making any decision to purchase or invest in overseas property.

Email agent

Email agent