
Woodside Road, South Norwood

- PROPERTY TYPE
Terraced
- BEDROOMS
3
- BATHROOMS
2
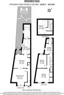
- SIZE
1,168 sq ft
109 sq m
- TENUREDescribes how you own a property. There are different types of tenure - freehold, leasehold, and commonhold.Read more about tenure in our glossary page.
Freehold
Key features
- Three well-proportioned bedrooms
- Impressive 1,168 sq. ft of living space
- Two bathrooms
- Additional usable loft room
- Excellent transport links into The City
- EPC rating: D
Description
Lovely cared for by the current owners, this property benefits from an impressive 1,168 sq. ft. of living space and briefly comprises; three well-proportioned bedrooms, two bathrooms, spacious living room and dining room, kitchen with integrated oven and hob and an easy to maintain garden.
This property further benefits from an additional usable space in the loft room.
Perfectly suited for commuters, the trains departing from Norwood Junction will seamlessly transport you into The City and beyond, including both London Victoria and a direct connection into London Bridge. The property is a 2-minute walk away from Woodside tram stop.
You can travel as far afield as Highbury & Islington via trendy Shoreditch High Street without needing to change services on the London Overground. East Croydon station is only one stop away, meaning you can access pretty much anywhere else in the world in the opposite direction, via the Gatwick Express into Gatwick Airport.
In addition to the excellent transport links, Woodside Road is also positioned close to a diverse selection of well-regarded and popular local amenities on both Portland Road and South Norwood High Street.
Local residents can enjoy tasty and refreshing food and drinks served by both independently owned boutiques and popular large franchises including the effervescent Craft Beer Cabin and Mamma Dough. The Country Park, Norwood Lakes and Woodside Green are a short stroll away, providing an expansive, scenic, and peaceful place to exercise, wander and relax.
- COUNCIL TAXA payment made to your local authority in order to pay for local services like schools, libraries, and refuse collection. The amount you pay depends on the value of the property.Read more about council Tax in our glossary page.
- Band: TBC
- PARKINGDetails of how and where vehicles can be parked, and any associated costs.Read more about parking in our glossary page.
- Ask agent
- GARDENA property has access to an outdoor space, which could be private or shared.
- Yes
- ACCESSIBILITYHow a property has been adapted to meet the needs of vulnerable or disabled individuals.Read more about accessibility in our glossary page.
- Ask agent
Energy performance certificate - ask agent
Woodside Road, South Norwood
Add an important place to see how long it'd take to get there from our property listings.
__mins driving to your place
Get an instant, personalised result:
- Show sellers you’re serious
- Secure viewings faster with agents
- No impact on your credit score

Your mortgage
Notes
Staying secure when looking for property
Ensure you're up to date with our latest advice on how to avoid fraud or scams when looking for property online.
Visit our security centre to find out moreDisclaimer - Property reference SNW250609. The information displayed about this property comprises a property advertisement. Rightmove.co.uk makes no warranty as to the accuracy or completeness of the advertisement or any linked or associated information, and Rightmove has no control over the content. This property advertisement does not constitute property particulars. The information is provided and maintained by Oaks Estate Agents, South Norwood. Please contact the selling agent or developer directly to obtain any information which may be available under the terms of The Energy Performance of Buildings (Certificates and Inspections) (England and Wales) Regulations 2007 or the Home Report if in relation to a residential property in Scotland.
*This is the average speed from the provider with the fastest broadband package available at this postcode. The average speed displayed is based on the download speeds of at least 50% of customers at peak time (8pm to 10pm). Fibre/cable services at the postcode are subject to availability and may differ between properties within a postcode. Speeds can be affected by a range of technical and environmental factors. The speed at the property may be lower than that listed above. You can check the estimated speed and confirm availability to a property prior to purchasing on the broadband provider's website. Providers may increase charges. The information is provided and maintained by Decision Technologies Limited. **This is indicative only and based on a 2-person household with multiple devices and simultaneous usage. Broadband performance is affected by multiple factors including number of occupants and devices, simultaneous usage, router range etc. For more information speak to your broadband provider.
Map data ©OpenStreetMap contributors.





