
Alderbury, Salisbury, SP5

- PROPERTY TYPE
House
- BEDROOMS
4
- BATHROOMS
4
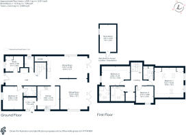
- SIZE
2,390 sq ft
222 sq m
- TENUREDescribes how you own a property. There are different types of tenure - freehold, leasehold, and commonhold.Read more about tenure in our glossary page.
Freehold
Key features
- Detached
- 2390 sq. ft. of Spacious Accommodation
- Four Bedrooms
- Four Bath/Shower Rooms (Three En-suites)
- Large Open Plan Living Space
- Private Enclosed Gardens
- Viewing Highly Advised
Description
Stepping through the welcoming reception hall, the quality of the design and craftsmanship is immediately apparent. To one side lies a quiet and well proportioned study, ideal for remote working, and a cloakroom. A thoughtfully positioned guest bedroom with an en suite provides exceptional flexibility — perfectly suited to visiting family, an independent teenager or multi generational living. With its generous proportions and private bathroom, it creates an inviting and self contained suite. The deeply impressive kitchen, dining and living space forms the centrepiece of the house — a seamless, open plan environment designed for both relaxed daily living and expansive entertaining. High ceilings and abundant natural light enhance the sense of space, while the elegant modern kitchen is superbly appointed with quality fittings, a large central island, and a separate utility room ensuring excellent practicality. Bi fold doors open wide to the landscaped garden, drawing the outside in and creating a natural extension of the living space. On the first floor are three generous bedrooms, two of which benefit from en-suite shower rooms, and a well-appointed family bathroom.
Outside
The gardens have been professionally landscaped to create a peaceful and private retreat. A large terrace provides a wonderful outdoor entertaining area, shaded by a graceful willow tree that forms a striking focal point throughout the seasons. The dedicated BBQ terrace offers yet another space for alfresco gatherings, while a large outside store provides excellent storage. To the front of the property, the spacious driveway offers ample off street parking and contributes to the impressive curb appeal.
Situation
Alderbury is a popular and thriving village situated approximately three miles south east of the Cathedral city of Salisbury. Local village facilities include a village hall, 16th century pub, a primary school, convenience store, post office, tennis and football clubs and Alderbury Social Club. Alderbury is within easy access of Salisbury’s excellent shopping, leisure and cultural facilities as well as the numerous shops at the Bourne Retail Park, including a Tesco’s Extra and a PureGym. Good schools are numerous and include Salisbury Cathedral School, Chafyn Grove, The Godolphin School as well as the hugely in-demand Bishops Wordsworth and South Wilts Grammar Schools. Located 3.9 miles is Salisbury mainline station with direct trains to London’s Waterloo. The nearby A36 links into the M27 and the M3 and provides easy access out to the ports, Southampton Airport and London.
Property Ref Number:
HAM-63548Brochures
Brochure- COUNCIL TAXA payment made to your local authority in order to pay for local services like schools, libraries, and refuse collection. The amount you pay depends on the value of the property.Read more about council Tax in our glossary page.
- Band: D
- PARKINGDetails of how and where vehicles can be parked, and any associated costs.Read more about parking in our glossary page.
- Off street
- GARDENA property has access to an outdoor space, which could be private or shared.
- Private garden
- ACCESSIBILITYHow a property has been adapted to meet the needs of vulnerable or disabled individuals.Read more about accessibility in our glossary page.
- Ask agent
Alderbury, Salisbury, SP5
Add an important place to see how long it'd take to get there from our property listings.
__mins driving to your place
Get an instant, personalised result:
- Show sellers you’re serious
- Secure viewings faster with agents
- No impact on your credit score
Your mortgage
Notes
Staying secure when looking for property
Ensure you're up to date with our latest advice on how to avoid fraud or scams when looking for property online.
Visit our security centre to find out moreDisclaimer - Property reference a1nQ500000ZlpmFIAR. The information displayed about this property comprises a property advertisement. Rightmove.co.uk makes no warranty as to the accuracy or completeness of the advertisement or any linked or associated information, and Rightmove has no control over the content. This property advertisement does not constitute property particulars. The information is provided and maintained by Hamptons, Salisbury. Please contact the selling agent or developer directly to obtain any information which may be available under the terms of The Energy Performance of Buildings (Certificates and Inspections) (England and Wales) Regulations 2007 or the Home Report if in relation to a residential property in Scotland.
*This is the average speed from the provider with the fastest broadband package available at this postcode. The average speed displayed is based on the download speeds of at least 50% of customers at peak time (8pm to 10pm). Fibre/cable services at the postcode are subject to availability and may differ between properties within a postcode. Speeds can be affected by a range of technical and environmental factors. The speed at the property may be lower than that listed above. You can check the estimated speed and confirm availability to a property prior to purchasing on the broadband provider's website. Providers may increase charges. The information is provided and maintained by Decision Technologies Limited. **This is indicative only and based on a 2-person household with multiple devices and simultaneous usage. Broadband performance is affected by multiple factors including number of occupants and devices, simultaneous usage, router range etc. For more information speak to your broadband provider.
Map data ©OpenStreetMap contributors.







