Davidson Street, Bannockburn, FK7

- PROPERTY TYPE
Terraced
- BEDROOMS
3
- BATHROOMS
1
- SIZE
936 sq ft
87 sq m
- TENUREDescribes how you own a property. There are different types of tenure - freehold, leasehold, and commonhold.Read more about tenure in our glossary page.
Freehold
Key features
- Mid-terraced two-storey home in quiet cul-de-sac
- Three bedrooms with flexible layout
- Bright living room and fitted kitchen
- Private front and rear low-maintenance gardens
- Convenient access to Stirling city centre amenities
Description
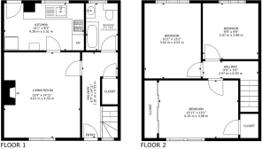
This immaculate mid-terraced house is positioned within a quiet residential cul-de-sac in the Whins of Milton area of Stirling, well suited to a range of purchasers including families and first-time buyers.
The internal accommodation is arranged over two levels. On the ground floor there is an entrance hallway providing access to a comfortable living room, a fitted kitchen and a bathroom. The layout is both practical and functional.
The upper floor comprises an internal hallway leading to three bedrooms. These rooms offer flexible use and can accommodate a variety of needs such as sleeping accommodation, home working space or additional storage depending on individual requirements. Natural light is provided via window openings to both front and rear elevations, contributing to a bright internal atmosphere.
Externally, the property benefits from private garden ground located to both the front and rear. These areas include a combination of chipped, paved and turfed sections, providing low-maintenance outdoor space suitable for seating, recreation or general domestic use.
A wide selection of amenities, retail outlets, schooling and transport links can be accessed within nearby Stirling city centre, placing everyday conveniences and leisure facilities within easy reach while still enjoying the advantages of a residential setting.
EPC Rating: C
- COUNCIL TAXA payment made to your local authority in order to pay for local services like schools, libraries, and refuse collection. The amount you pay depends on the value of the property.Read more about council Tax in our glossary page.
- Band: B
- PARKINGDetails of how and where vehicles can be parked, and any associated costs.Read more about parking in our glossary page.
- Ask agent
- GARDENA property has access to an outdoor space, which could be private or shared.
- Yes
- ACCESSIBILITYHow a property has been adapted to meet the needs of vulnerable or disabled individuals.Read more about accessibility in our glossary page.
- Ask agent
Energy performance certificate - ask agent
Davidson Street, Bannockburn, FK7
Add an important place to see how long it'd take to get there from our property listings.
__mins driving to your place
Get an instant, personalised result:
- Show sellers you’re serious
- Secure viewings faster with agents
- No impact on your credit score
Your mortgage
Notes
Staying secure when looking for property
Ensure you're up to date with our latest advice on how to avoid fraud or scams when looking for property online.
Visit our security centre to find out moreDisclaimer - Property reference f8b614b3-540f-4295-a710-8cb7eba83aff. The information displayed about this property comprises a property advertisement. Rightmove.co.uk makes no warranty as to the accuracy or completeness of the advertisement or any linked or associated information, and Rightmove has no control over the content. This property advertisement does not constitute property particulars. The information is provided and maintained by Clyde Property, Stirling. Please contact the selling agent or developer directly to obtain any information which may be available under the terms of The Energy Performance of Buildings (Certificates and Inspections) (England and Wales) Regulations 2007 or the Home Report if in relation to a residential property in Scotland.
*This is the average speed from the provider with the fastest broadband package available at this postcode. The average speed displayed is based on the download speeds of at least 50% of customers at peak time (8pm to 10pm). Fibre/cable services at the postcode are subject to availability and may differ between properties within a postcode. Speeds can be affected by a range of technical and environmental factors. The speed at the property may be lower than that listed above. You can check the estimated speed and confirm availability to a property prior to purchasing on the broadband provider's website. Providers may increase charges. The information is provided and maintained by Decision Technologies Limited. **This is indicative only and based on a 2-person household with multiple devices and simultaneous usage. Broadband performance is affected by multiple factors including number of occupants and devices, simultaneous usage, router range etc. For more information speak to your broadband provider.
Map data ©OpenStreetMap contributors.







