Land at the Rear of 125 Friern Barnet Road, Friern Barnet, London, Barnet, N11 3DY
- PROPERTY TYPE
Land
- SIZE
Ask agent
Description
Guide Price £195,000+
The property will be sold by public auction on 26th March at 12:00am
Legal Documents
For a complete view of the legal documents, please download the legal pack from our website.
Don't miss out on this opportunity! Contact us today to arrange a viewing or for more information..
Description
Freehold
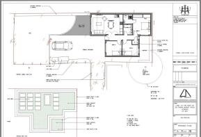
A Freehold Vacant Site Measuring Approximately 4,130 sq ft. Offered With Planning Permission for the Erection of a 3-Bedroom, Two Bathroom Single-Storey Dwelling with Private Garden and Off-Street Parking.
A freehold vacant site measuring 4,130 sq ft offered with Planning Permission for the Erection of a 3-Bedroom Two Bathroom Single-Storey Dwelling and Off-Street Parking. Planning permission has been granted by the London Borough of Barnet under reference 24/0256/FUL for the erection of a single-storey 3-bedroom dwelling The approved accommodation comprises open-plan kitchen/living/dining area, three bedrooms, two bathrooms, private garden off-street parking.
Accommodation
Proposed
Open Plan Kitchen / Living / Dining Room
Bedroom One
Bedroom Two
Bedroom Three
Bathroom
Shower Room
Location
The property is situated to the rear of Friern Barnet Road (A1003) in an established residential area of North London.
Local shopping facilities and amenities are available along Friern Barnet Road and in nearby Whetstone and North Finchley. Larger retail and leisure facilities can be found at Brent Cross Shopping Centre and Wood Green.
Transport connections are convenient, with New Southgate (National Rail) and Arnos Grove Underground Station (Piccadilly Line) located within reach, providing access into Central London. The A406 North Circular Road is also nearby, offering access to the wider road network.
Viewing Times
Brochures
Legal DocumentsOnline BiddingLand at the Rear of 125 Friern Barnet Road, Friern Barnet, London, Barnet, N11 3DY
NEAREST STATIONS
Distances are straight line measurements from the centre of the postcode- New Southgate Station0.3 miles
- Arnos Grove Station0.7 miles
- Bounds Green Station1.2 miles
Notes
Disclaimer - Property reference 332394. The information displayed about this property comprises a property advertisement. Rightmove.co.uk makes no warranty as to the accuracy or completeness of the advertisement or any linked or associated information, and Rightmove has no control over the content. This property advertisement does not constitute property particulars. The information is provided and maintained by Swift Property Auctions, London. Please contact the selling agent or developer directly to obtain any information which may be available under the terms of The Energy Performance of Buildings (Certificates and Inspections) (England and Wales) Regulations 2007 or the Home Report if in relation to a residential property in Scotland.
Auction Fees: The purchase of this property may include associated fees not listed here, as it is to be sold via auction. To find out more about the fees associated with this property please call Swift Property Auctions, London on 020 7123 9417.
*Guide Price: An indication of a seller's minimum expectation at auction and given as a Guide Price or a range of Guide Prices. This is not necessarily the figure a property will sell for and is subject to change prior to the auction.
Reserve Price: Each auction property will be subject to a Reserve Price below which the property cannot be sold at auction. Normally the Reserve Price will be set within the range of Guide Prices or no more than 10% above a single Guide Price.
Map data ©OpenStreetMap contributors.





