
Land lying to the south of Poplar House, Mill Green, Edwardstone, Sudbury, Suffolk CO10 5PX
- PROPERTY TYPE
Land
- SIZE
Ask agent
Key features
- 0.38 acre building plot
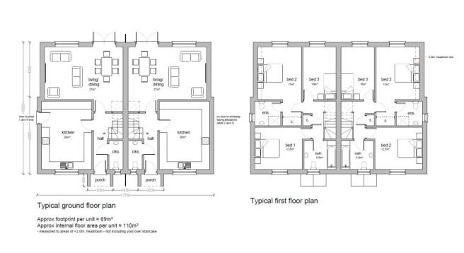
- Full planning for four three bedroom semis
- 10 parking spaces
- Each unit c.110 sq. m.
- Outstanding village location
- Rare development opportunity
- Guide price - £260,000 to £280,000
- For sale by livestream auction
- Unless previously sold or withdrawn prior
- 10:00 am, Wednesday 25th March2026
Description
FOR SALE BY LIVESTREAM AUCTION ON WEDNESDAY 25TH MARCH 2026 AT 10:00AM. TO REGISTER FOR LEGAL PACKS AND BIDDING INSTRUCTIONS PLEASE VISIT OUR WEBSITE
A 0.38 acre building plot with Planning Permission for four dwellings
Situated in the highly desirable village of Edwardstone some seven miles from both the market towns of Sudbury and Hadleigh is this 0.38 acre building plot with full Planning Permission for four semi detached houses with ten parking spaces.
Planning Permission was granted by Babergh District Council under Application Reference DC/23/02128 and each unit will offer 110 sq. m. of accommodation including a spacious living/dining room and three bedrooms (one en-suite). Full details are available on the Council's planning portal.
The location alone would provide high residual values and this is truly a rare development opportunity.
Viewing Any reasonable time during daylight hours. Prospective purchasers should note that no liability can be held against either the vendor or the Agents, Auction House East Anglia as Auctioneers, in respect of any viewing of the land. All persons viewing should be aware that they enter the site entirely at their own risk.
Tenure: Freehold
Administration Fee: £1200 inc VAT payable on exchange of contracts.
Buyer's Premium Fee: £1500 inc VAT payable on exchange of contracts.
Disbursements: Please see the legal pack for any disbursements listed that may become payable by the purchaser on completion.
Land lying to the south of Poplar House, Mill Green, Edwardstone, Sudbury, Suffolk CO10 5PX
NEAREST STATIONS
Distances are straight line measurements from the centre of the postcode- Sudbury Station4.7 miles


Notes
Disclaimer - Property reference 202512130907sq_dtbw_copy_2026-02-27_124946. The information displayed about this property comprises a property advertisement. Rightmove.co.uk makes no warranty as to the accuracy or completeness of the advertisement or any linked or associated information, and Rightmove has no control over the content. This property advertisement does not constitute property particulars. The information is provided and maintained by Auction House, East Anglia. Please contact the selling agent or developer directly to obtain any information which may be available under the terms of The Energy Performance of Buildings (Certificates and Inspections) (England and Wales) Regulations 2007 or the Home Report if in relation to a residential property in Scotland.
Auction Fees: The purchase of this property may include associated fees not listed here, as it is to be sold via auction. To find out more about the fees associated with this property please call Auction House, East Anglia on 01603 361653.
*Guide Price: An indication of a seller's minimum expectation at auction and given as a Guide Price or a range of Guide Prices. This is not necessarily the figure a property will sell for and is subject to change prior to the auction.
Reserve Price: Each auction property will be subject to a Reserve Price below which the property cannot be sold at auction. Normally the Reserve Price will be set within the range of Guide Prices or no more than 10% above a single Guide Price.
Map data ©OpenStreetMap contributors.





