
Onslow Mews, Chertsey, Surrey, KT16

- PROPERTY TYPE
Retirement Property
- BEDROOMS
2
- BATHROOMS
2
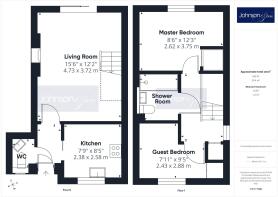
- SIZE
543 sq ft
50 sq m
- TENUREDescribes how you own a property. There are different types of tenure - freehold, leasehold, and commonhold.Read more about tenure in our glossary page.
Freehold
Key features
- Recently Renovated
- Stunning Kitchen
- Walk-In Shower
- Fitted Wardrobes
- Communal Parking
- Patio Doors To Garden
- Neutral Decor Throughout
- Feature Fireplace
- Ground Floor W/C
- No Onward Chain
Description
The accommodation begins with a welcoming entrance hall leading to a practical ground-floor W/C and a bright, front-aspect kitchen featuring an abundance of fitted units. At the heart of the home lies a spacious rear-aspect lounge and diner, where sliding doors open directly onto a private patio and the lush gardens beyond, creating a seamless indoor-outdoor flow. Upstairs, you will find two comfortable double bedrooms, both with fitted wardrobes, and a modern, fully tiled family bathroom complete with a huge walk-in shower.
Designed for complete comfort and security, the property benefits from recently upgraded radiators and custom venetian blinds, all within a warden-assisted site that provides a reassuring safety net. Offering the rare advantage of private front and back doors, this residence allows for truly independent living while being part of a wonderfully friendly and supportive community.
With neutral decor throughout and on-site communal parking, this exceptional home is available to men over 65 and women over 60, making an early internal inspection highly recommended to fully appreciate the lifestyle on offer.
- COUNCIL TAXA payment made to your local authority in order to pay for local services like schools, libraries, and refuse collection. The amount you pay depends on the value of the property.Read more about council Tax in our glossary page.
- Ask agent
- PARKINGDetails of how and where vehicles can be parked, and any associated costs.Read more about parking in our glossary page.
- Communal
- GARDENA property has access to an outdoor space, which could be private or shared.
- Patio,Back garden
- ACCESSIBILITYHow a property has been adapted to meet the needs of vulnerable or disabled individuals.Read more about accessibility in our glossary page.
- Wet room,Wide doorways,Level access shower,Level access
Onslow Mews, Chertsey, Surrey, KT16
Add an important place to see how long it'd take to get there from our property listings.
__mins driving to your place
Notes
Staying secure when looking for property
Ensure you're up to date with our latest advice on how to avoid fraud or scams when looking for property online.
Visit our security centre to find out moreDisclaimer - Property reference onslow270226. The information displayed about this property comprises a property advertisement. Rightmove.co.uk makes no warranty as to the accuracy or completeness of the advertisement or any linked or associated information, and Rightmove has no control over the content. This property advertisement does not constitute property particulars. The information is provided and maintained by Johnson & jones Ltd, Chertsey. Please contact the selling agent or developer directly to obtain any information which may be available under the terms of The Energy Performance of Buildings (Certificates and Inspections) (England and Wales) Regulations 2007 or the Home Report if in relation to a residential property in Scotland.
*This is the average speed from the provider with the fastest broadband package available at this postcode. The average speed displayed is based on the download speeds of at least 50% of customers at peak time (8pm to 10pm). Fibre/cable services at the postcode are subject to availability and may differ between properties within a postcode. Speeds can be affected by a range of technical and environmental factors. The speed at the property may be lower than that listed above. You can check the estimated speed and confirm availability to a property prior to purchasing on the broadband provider's website. Providers may increase charges. The information is provided and maintained by Decision Technologies Limited. **This is indicative only and based on a 2-person household with multiple devices and simultaneous usage. Broadband performance is affected by multiple factors including number of occupants and devices, simultaneous usage, router range etc. For more information speak to your broadband provider.
Map data ©OpenStreetMap contributors.








