
18 Cleet Court Berwick-Upon-Tweed TD15 1HH

- PROPERTY TYPE
Apartment
- BEDROOMS
2
- BATHROOMS
1
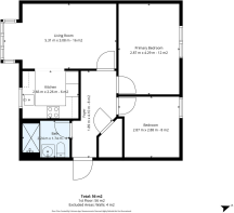
- SIZE
581 sq ft
54 sq m
Key features
- Sea Views
- Popular Central Location
- Beautiful Presented Throughout
- Turn Key Condition
- Off-Street Parking
Description
18 Cleet Court is a beautifully presented two-bedroom, first-floor apartment, ideally situated just off the historic Berwick town walls. Recently renovated, the property enjoys excellent views across the town walls, the sea and Spittal beyond.
The accommodation comprises an entrance hall with a large storage cupboard, leading through to a light and airy sitting room. This inviting space features a bay window, perfectly positioned to take in the outstanding views. Adjoining the sitting room is a well-appointed kitchen, finished with modern cabinetry and integrated appliances.
The property also benefits from a generous principal bedroom, a comfortable single bedroom and a spacious shower room fitted with a luxurious rainfall shower.
Externally, the apartment enjoys the advantage of its own allocated parking space within the courtyard to the front of the property.
ACCOMMODATION COMPRISES
Internal - Entrance Vestibule, Sitting Room, Kitchen, Principal Bedroom, Single Bedroom, Shower Room, Large Cupboard.
External – 1 Allocated Parking Space
DISTANCES
Berwick Train Station 0.5 miles, Norham 8.5 miles, Kelso 24 miles, Bamburgh 19 miles, Alnwick 30 miles, Edinburgh City Centre 57 miles, Newcastle 64 miles. (all mileage is approximate)
GENERAL REMARKS
Services - Mains electricity, water, drainage and gas central heating. Fibre broadband services available.
Fixtures and Fittings - All blinds, light fittings and integrated appliances form part of the sale.
Listing and Conservation - 18 Cleet Court is not listed but does lie within the conservation area of Berwick-upon-Tweed.
Agent’s Note - Please note this property cannot be used as a holiday let.
Service Charge - from January 2026 the service charge for this year will be £1700 which is £425 per quarter.
EPC Rating: C
Disclaimer
Important Notice
These particulars are for information only and do not constitute an offer or contract. No statement by Paton & Co or any joint agent (written or verbal) constitutes a representation or warranty. Neither the seller nor agents accept liability for any error, omission or misstatement, and such shall not entitle any party to rescind, claim compensation or bring action.
The property is sold as seen with all faults and subject to all rights, burdens, servitudes and wayleaves. Measurements, plans and photographs are approximate and for guidance only. Planning, building regulations and other consents, and all services, have not been verified or tested. Purchasers must satisfy themselves by inspection and professional advice. No liability is accepted for costs incurred if a property is sold or withdrawn.
Successful purchasers must complete AML and proof of funds checks (£25 + VAT per person). See
Brochures
Digital Brochure- COUNCIL TAXA payment made to your local authority in order to pay for local services like schools, libraries, and refuse collection. The amount you pay depends on the value of the property.Read more about council Tax in our glossary page.
- Band: B
- PARKINGDetails of how and where vehicles can be parked, and any associated costs.Read more about parking in our glossary page.
- Yes
- GARDENA property has access to an outdoor space, which could be private or shared.
- Ask agent
- ACCESSIBILITYHow a property has been adapted to meet the needs of vulnerable or disabled individuals.Read more about accessibility in our glossary page.
- Ask agent
Energy performance certificate - ask agent
18 Cleet Court Berwick-Upon-Tweed TD15 1HH
Add an important place to see how long it'd take to get there from our property listings.
__mins driving to your place
Get an instant, personalised result:
- Show sellers you’re serious
- Secure viewings faster with agents
- No impact on your credit score
About Paton & Co, Berwick-upon-Tweed
Paton & Co Estate Agents, 17F Windmill Way West, Ramparts Business Park, Berwick-upon-Tweed, TD15 1TB

Your mortgage
Notes
Staying secure when looking for property
Ensure you're up to date with our latest advice on how to avoid fraud or scams when looking for property online.
Visit our security centre to find out moreDisclaimer - Property reference f02021a2-856b-46ca-be9c-abc4d455467f. The information displayed about this property comprises a property advertisement. Rightmove.co.uk makes no warranty as to the accuracy or completeness of the advertisement or any linked or associated information, and Rightmove has no control over the content. This property advertisement does not constitute property particulars. The information is provided and maintained by Paton & Co, Berwick-upon-Tweed. Please contact the selling agent or developer directly to obtain any information which may be available under the terms of The Energy Performance of Buildings (Certificates and Inspections) (England and Wales) Regulations 2007 or the Home Report if in relation to a residential property in Scotland.
*This is the average speed from the provider with the fastest broadband package available at this postcode. The average speed displayed is based on the download speeds of at least 50% of customers at peak time (8pm to 10pm). Fibre/cable services at the postcode are subject to availability and may differ between properties within a postcode. Speeds can be affected by a range of technical and environmental factors. The speed at the property may be lower than that listed above. You can check the estimated speed and confirm availability to a property prior to purchasing on the broadband provider's website. Providers may increase charges. The information is provided and maintained by Decision Technologies Limited. **This is indicative only and based on a 2-person household with multiple devices and simultaneous usage. Broadband performance is affected by multiple factors including number of occupants and devices, simultaneous usage, router range etc. For more information speak to your broadband provider.
Map data ©OpenStreetMap contributors.





