
Oakley Wood, Benson, OX10
- PROPERTY TYPE
Land
- SIZE
Ask agent
Key features
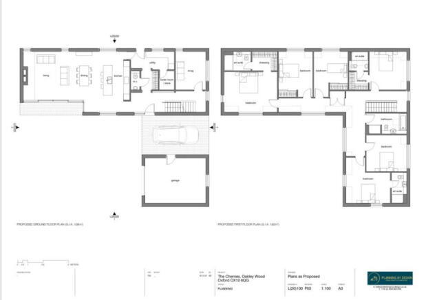
- Building plot with an exciting self-build planning permission for a six-bedroom detached country home.
- Proposed build would be approximately 3120sq ft.
- A very private circa 0.3acres plot.
- Beautiful woodland setting.
- Located towards the bottom of a private track.
- Planning reference number for the South Oxfordshire district council website - P25/S1158/FUL
- Existing property on the site is a three bedroom bungalow with two bedroom annex.
Description
Easily accessible for Wallingford and Henley on Thames surrounded by a stunning rural landscape, The Cherries is in close reach of extensive local facilities and schooling, and additionally benefit from being but a short 4 mile drive from a mainline railway station providing direct access to London Paddington within the hour.
Some material information to note: We believe the current property on the plot is of non-standard construction. The current property is sceptic tank waste, electric storage heating, mains water and mains electric. Offcom checker indicates standard to superfast broadband is available at this address. Offcom checker indicates mobile availability with all of the major providers. The property has driveway parking. The government portal generally highlights this as a very low risk address for flooding. Properties built pre-2000 may contain asbestos in certain materials used in their construction or in subsequent building work. Examples of these materials are; Artex, vinyl tiles, sheet boards, corrugated roofing, pipework and lagging/insulation. These are generally considered safe unless disturbed but prospective buyers must take their own advice. Buyers are advised to conduct their own investigations and obtain their own independent advice to confirm the presence of any asbestos. There is a small parcel of the land being sold which is in a separate title. We are not aware of any planning permissions in close proximity which would negatively affect the property. Details of the planning conditions for the consented build, any covenants or easements are available on request from the estate agent.
Oakley Wood, Benson, OX10
NEAREST STATIONS
Distances are straight line measurements from the centre of the postcode- Cholsey Station4.0 miles
Notes
Disclaimer - Property reference RX749114. The information displayed about this property comprises a property advertisement. Rightmove.co.uk makes no warranty as to the accuracy or completeness of the advertisement or any linked or associated information, and Rightmove has no control over the content. This property advertisement does not constitute property particulars. The information is provided and maintained by Thomas Merrifield, Wallingford. Please contact the selling agent or developer directly to obtain any information which may be available under the terms of The Energy Performance of Buildings (Certificates and Inspections) (England and Wales) Regulations 2007 or the Home Report if in relation to a residential property in Scotland.
Map data ©OpenStreetMap contributors.









