
Kiln Barn Road, Ditton, ME20 6QS

- PROPERTY TYPE
Detached
- BEDROOMS
5
- SIZE
Ask developer
- TENUREDescribes how you own a property. There are different types of tenure - freehold, leasehold, and commonhold.Read more about tenure in our glossary page.
Ask developer
Key features
- WE COULD BE YOUR CASH BUYER - AVAILABLE WITH PART EXCHANGE^
- Open plan kitchen/dining/family room
- French doors out onto rear garden
- Utility room off the kitchen
- Private study
- Main bedroom with en-suite and dressing room
- En-suite to bedroom 2 and bedroom 3
- 10 year New Home warranty
- ^T&Cs apply, please visit our website for more information
- Double Garage
Description
**WE COULD BE YOUR CASH BUYER - AVAILABLE WITH PART EXCHANGE^** The Waltness is guaranteed to capture your heart. This five bedroom home features bright open-plan spaces and large windows making your home feel light and spacious even on the dullest days. All rooms upstairs have been designed perfectly for a large family and making each room suitable for everyone’s haven after a long day. ^T&Cs apply, please visit our website for more information
Plot 96
Tenure: Freehold
Length of lease: N/A
Annual ground rent amount (£): N/A
Ground rent review period (year/month): N/A
Annual service charge amount (£): 909.84
Service charge review period (year/month): Yearly
Council tax band (England, Wales and Scotland): H
Reservation fee (£): 1000
For more information about the optional extras available in our new homes, please visit the St Modwen Homes website.
Parking - Double Garage
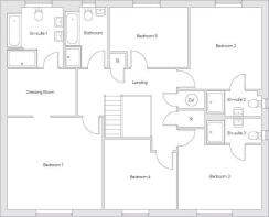
Room Dimensions
- Bedroom 1 - 3.57 x 3.49 metre
- En-Suite 1 - 2.07 x 1.69 metre
- Bedroom 2 - 3.94 x 3.27 metre
- En-Suite 2 - 2.18 x 2.59 metre
- Bedroom 3 - 3.57 x 3.71 metre
- Bedroom 4 - 3.82 x 2.8 metre
- Bedroom 5 - 2.28 x 2.34 metre
- Bathroom - 2.8 x 2.04 metre
- Living Room - 3.87 x 4.98 metre
- Kitchen - 3.1 x 3.6 metre
- Dining - 2.77 x 3.6 metre
- Family - 3.99 x 3.18 metre
- Study - 3.37 x 3.16 metre
- Utility - 2.22 x 2.07 metre
- WC - 1.06 x 2.07 metre
- COUNCIL TAXA payment made to your local authority in order to pay for local services like schools, libraries, and refuse collection. The amount you pay depends on the value of the property.Read more about council Tax in our glossary page.
- Ask developer
- PARKINGDetails of how and where vehicles can be parked, and any associated costs.Read more about parking in our glossary page.
- Yes
- GARDENA property has access to an outdoor space, which could be private or shared.
- Yes
- ACCESSIBILITYHow a property has been adapted to meet the needs of vulnerable or disabled individuals.Read more about accessibility in our glossary page.
- Ask developer
Energy performance certificate - ask developer
- A selection of new build homes
- Situated in the desirable village of Ditton, Orchard Mill
- Maidstone is under five miles away which offers a great selection of shops, restaurants and galleries
- Well located for access to local amenities
Kiln Barn Road, Ditton, ME20 6QS
Add an important place to see how long it'd take to get there from our property listings.
__mins driving to your place
Get an instant, personalised result:
- Show sellers you’re serious
- Secure viewings faster with agents
- No impact on your credit score
About St Modwen Homes - Southern
Location
Orchard Mill is a brand-new development situated in the desirable village of Ditton, Kent. Well located to a range of nearby facilities, these new homes will also benefit from public open space and various play areas, designed to keep all ages healthy and active. With excellent schools, coupled with the sprawling green spaces and enticing nearby countryside make Orchard Mill an idyllic setting for family life.
Close to amenities
You have the best of both worlds at Orchard Mill, village life yet close by to the vibrant town, with places like the popular town of Maidstone just under five miles away offering a further selection of shops, restaurants, galleries and delightful scenery, days out with your family and friends are waiting to be enjoyed!
Affordability
Notes
Staying secure when looking for property
Ensure you're up to date with our latest advice on how to avoid fraud or scams when looking for property online.
Visit our security centre to find out moreDisclaimer - Property reference 8176030000031_5_43_100604. The information displayed about this property comprises a property advertisement. Rightmove.co.uk makes no warranty as to the accuracy or completeness of the advertisement or any linked or associated information, and Rightmove has no control over the content. This property advertisement does not constitute property particulars. The information is provided and maintained by St Modwen Homes - Southern. Please contact the selling agent or developer directly to obtain any information which may be available under the terms of The Energy Performance of Buildings (Certificates and Inspections) (England and Wales) Regulations 2007 or the Home Report if in relation to a residential property in Scotland.
*This is the average speed from the provider with the fastest broadband package available at this postcode. The average speed displayed is based on the download speeds of at least 50% of customers at peak time (8pm to 10pm). Fibre/cable services at the postcode are subject to availability and may differ between properties within a postcode. Speeds can be affected by a range of technical and environmental factors. The speed at the property may be lower than that listed above. You can check the estimated speed and confirm availability to a property prior to purchasing on the broadband provider's website. Providers may increase charges. The information is provided and maintained by Decision Technologies Limited. **This is indicative only and based on a 2-person household with multiple devices and simultaneous usage. Broadband performance is affected by multiple factors including number of occupants and devices, simultaneous usage, router range etc. For more information speak to your broadband provider.
Map data ©OpenStreetMap contributors.






