
Queen Street, Silsden, Keighley, BD20

- PROPERTY TYPE
Terraced
- BEDROOMS
3
- BATHROOMS
1
- SIZE
Ask agent
- TENUREDescribes how you own a property. There are different types of tenure - freehold, leasehold, and commonhold.Read more about tenure in our glossary page.
Ask agent
Key features
- EXTENDED TERRACE HOUSE
- THREE BEDROOMS
- UTILITY ROOM, GROUND FLOOR W.c, STORE ROOM
- SMALL ENCLOSED REAR YARD
- NO ONWARD CHAIN
- EPC RATING D
Description
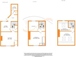
Offered for sale with no onward chain is this deceptive, extended three bedroom through terrace property offering accommodation which could suit a variety of buyers. The accommodation which is arranged over three floors briefly comprises - Ground Floor - Spacious Living room with entrance vestibule and multi fuel stove. Inner hallway has access to the first floor and a useful cellar head. Good sized kitchen which has a range of fitted wall and base units, separate utility and wc. and an additional store room beyond. To the first floor - Spacious main bedroom to the front, Large bathroom with four piece suite comprising of a corner bath, shower cubicle, w.c., wash hand basin. Second floor- Bedrooms two and three. Gas central heating and double glazing. Outside - there is a small enclosed yard to the rear.
Silsden:
Has a range of independent shops on its high street, a large Co-op, popular primary school, a park and Town Hall and the Leeds/Liverpool Canal running through it.
EPC Rating D
Any floor plans are for guidance and illustrative purposes only. While we strive for accuracy, we cannot guarantee the precise layout, dimensions, or details shown. Any measurements or boundaries should be verified through the title deeds. We accept no liability for any loss or damage arising from reliance on this information
Brochures
Brochure 1Brochure 2- COUNCIL TAXA payment made to your local authority in order to pay for local services like schools, libraries, and refuse collection. The amount you pay depends on the value of the property.Read more about council Tax in our glossary page.
- Band: A
- PARKINGDetails of how and where vehicles can be parked, and any associated costs.Read more about parking in our glossary page.
- Ask agent
- GARDENA property has access to an outdoor space, which could be private or shared.
- Yes
- ACCESSIBILITYHow a property has been adapted to meet the needs of vulnerable or disabled individuals.Read more about accessibility in our glossary page.
- Ask agent
Queen Street, Silsden, Keighley, BD20
Add an important place to see how long it'd take to get there from our property listings.
__mins driving to your place
Get an instant, personalised result:
- Show sellers you’re serious
- Secure viewings faster with agents
- No impact on your credit score
Your mortgage
Notes
Staying secure when looking for property
Ensure you're up to date with our latest advice on how to avoid fraud or scams when looking for property online.
Visit our security centre to find out moreDisclaimer - Property reference 30030685. The information displayed about this property comprises a property advertisement. Rightmove.co.uk makes no warranty as to the accuracy or completeness of the advertisement or any linked or associated information, and Rightmove has no control over the content. This property advertisement does not constitute property particulars. The information is provided and maintained by Day & Co Estate Agents Limited, Keighley. Please contact the selling agent or developer directly to obtain any information which may be available under the terms of The Energy Performance of Buildings (Certificates and Inspections) (England and Wales) Regulations 2007 or the Home Report if in relation to a residential property in Scotland.
*This is the average speed from the provider with the fastest broadband package available at this postcode. The average speed displayed is based on the download speeds of at least 50% of customers at peak time (8pm to 10pm). Fibre/cable services at the postcode are subject to availability and may differ between properties within a postcode. Speeds can be affected by a range of technical and environmental factors. The speed at the property may be lower than that listed above. You can check the estimated speed and confirm availability to a property prior to purchasing on the broadband provider's website. Providers may increase charges. The information is provided and maintained by Decision Technologies Limited. **This is indicative only and based on a 2-person household with multiple devices and simultaneous usage. Broadband performance is affected by multiple factors including number of occupants and devices, simultaneous usage, router range etc. For more information speak to your broadband provider.
Map data ©OpenStreetMap contributors.





