
Mozart Way, Churwell, Morley, Leeds, LS27

- PROPERTY TYPE
Town House
- BEDROOMS
3
- BATHROOMS
3
- SIZE
1,267 sq ft
118 sq m
- TENUREDescribes how you own a property. There are different types of tenure - freehold, leasehold, and commonhold.Read more about tenure in our glossary page.
Freehold
Key features
- Three bedroom townhouse
- Extended to the ground floor
- Two En-suite bedrooms
- Fully enclosed rear garden
- Integral garage
- Tucked away position on a highly sought after development
- EPC Rating C
Description
A fabulous opportunity for first-time buyers or growing families to purchase a modern townhouse with accommodation arranged over three floors and an extension to the ground floor. The property is beautifully presented throughout, and an early viewing is highly recommended.
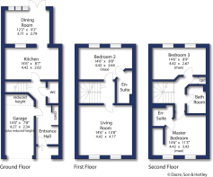
The ground floor accommodation comprises; - front entrance hall with access to the garage, guest WC, storage space for coats and shoes, spacious kitchen and a dining room in the extension.
The well-appointed kitchen has fitted wall and base units, ample worktop space and integrated appliances include - gas hob and double oven, the dishwasher and fridge are included with the sale. The extension accommodates the dining room which is conveniently open plan to the kitchen and has French doors opening to the rear garden
To the first floor, there is one double bedroom with en-suite facilities and a spacious, full width living room which enjoys plenty of natural light.
On the second floor there are two double bedrooms, the master bedroom is front facing and benefits from having an en-suite shower, WC and wash basin. Completing this floor is the family bathroom which has a modern, three-piece suite comprising bath with shower over, shower screen, WC and wash basin. The landing provides access to the boarded loft which offers a useful additional storage space.
Externally, the fully enclosed rear garden enjoys a high degree of privacy and is mainly laid to lawn. To the front of the property there is a small, off-street parking space in front of the integral garage which has fitted light, power and plumbing for a washing machine.
The property does have an annual RMG charge for the upkeep of the communal areas, we understand that this is £180 per annum but we would recommend that any potential buyers confirm this independently.
Local Authority, Council Tax Band & Covenants
Leeds City Council
Council Tax Band D
Tenure, Services & Parking
Freehold
All mains services; central heating
Garage and off-street parking
Brochures
Particulars- COUNCIL TAXA payment made to your local authority in order to pay for local services like schools, libraries, and refuse collection. The amount you pay depends on the value of the property.Read more about council Tax in our glossary page.
- Band: D
- PARKINGDetails of how and where vehicles can be parked, and any associated costs.Read more about parking in our glossary page.
- Garage,Off street
- GARDENA property has access to an outdoor space, which could be private or shared.
- Yes
- ACCESSIBILITYHow a property has been adapted to meet the needs of vulnerable or disabled individuals.Read more about accessibility in our glossary page.
- No wheelchair access
Mozart Way, Churwell, Morley, Leeds, LS27
Add an important place to see how long it'd take to get there from our property listings.
__mins driving to your place
Get an instant, personalised result:
- Show sellers you’re serious
- Secure viewings faster with agents
- No impact on your credit score
Your mortgage
Notes
Staying secure when looking for property
Ensure you're up to date with our latest advice on how to avoid fraud or scams when looking for property online.
Visit our security centre to find out moreDisclaimer - Property reference MOR260035. The information displayed about this property comprises a property advertisement. Rightmove.co.uk makes no warranty as to the accuracy or completeness of the advertisement or any linked or associated information, and Rightmove has no control over the content. This property advertisement does not constitute property particulars. The information is provided and maintained by Dacre Son & Hartley, Morley. Please contact the selling agent or developer directly to obtain any information which may be available under the terms of The Energy Performance of Buildings (Certificates and Inspections) (England and Wales) Regulations 2007 or the Home Report if in relation to a residential property in Scotland.
*This is the average speed from the provider with the fastest broadband package available at this postcode. The average speed displayed is based on the download speeds of at least 50% of customers at peak time (8pm to 10pm). Fibre/cable services at the postcode are subject to availability and may differ between properties within a postcode. Speeds can be affected by a range of technical and environmental factors. The speed at the property may be lower than that listed above. You can check the estimated speed and confirm availability to a property prior to purchasing on the broadband provider's website. Providers may increase charges. The information is provided and maintained by Decision Technologies Limited. **This is indicative only and based on a 2-person household with multiple devices and simultaneous usage. Broadband performance is affected by multiple factors including number of occupants and devices, simultaneous usage, router range etc. For more information speak to your broadband provider.
Map data ©OpenStreetMap contributors.





