Sanday, Orkney, Scotland, KW17

- PROPERTY TYPE
Detached Bungalow
- BEDROOMS
4
- BATHROOMS
2
- SIZE
Ask agent
- TENUREDescribes how you own a property. There are different types of tenure - freehold, leasehold, and commonhold.Read more about tenure in our glossary page.
Freehold
Key features
- Rare Coastal Smallholding with 12 Acres
- Unique 4 Bedroom Detached Home - 1,863 sq ft
- Large Open Plan Kitchen-Living-Dining Space - 389 sq ft
- Private Stretch of Beach
- Overlooking North Loch, Great for Kayaking
- Wind Turbine Generating £6,000-£8,000 Per Year
- Stable Block with Water and Power
- Large Outbuilding with Renovation Potential
Description
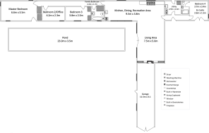
Galilee is a beautifully renovated stone home offering 173 SqM of flexible accommodation, set within approximately 12 acres of private land stretching to the dunes and shoreline of the Bay of Sowerdie.
At the heart of the property is an exceptional open plan living, kitchen and dining space extending to almost 390 sq ft. With exposed beams, high ceilings and a full wall of floor-to-ceiling glazing overlooking a 23 metre reflecting pond and the loch beyond, this light filled room forms the true focal point of the home. A feature fireplace creates warmth and atmosphere, while the layout comfortably accommodates large gatherings or everyday family life.
The generous principal bedroom occupies a peaceful position at one end of the house, complete with skylight above the bed and direct access outdoors. Three further bedrooms provide flexible accommodation, including a double with en-suite shower room and a versatile room ideal as a home office or craft space. A contemporary family bathroom and well-proportioned utility room add practicality to the layout.
The property benefits from underfloor heating, double glazing and an EPC rating of C, reflecting the extensive renovation completed around 2012.
Beyond the house, the land is arranged across four fields, two suitable as enclosed paddocks. A stable with water and power, substantial building with potential to be made into studio or workshop, large garage and sheltered walled garden. The wind turbine generates approximately £6,000 to £8,000 per annum through a feed in tariff, reducing electricity costs while adding a rare income producing asset.
Galilee offers the increasingly rare combination of character, space, privacy and direct coastal connection, all within a well-served island community with air and ferry links to Orkney Mainland.
Property Type: Detached Bungalow
Full selling price: £340000.00
Pricing Options: Offers in excess of
Tenure: Freehold
Council tax band: E
EPC rating: C
Measurement:1862.16 sq.ft.
Outside Space: Front Garden, Rear Garden
Parking: Garage, Private, Off street
Heating Type: Double Glazing,Underfloor Heating
Chain Sale
Possession of the property: Self-occupied
-------------------------------------------------------------------------------------------------------
For viewing arrangement, please get in touch with 99home.
If calling, please quote reference: 16361
GDPR: Applying for the above property means you are giving us permission to pass your details to the vendor or landlord for further communication related to viewing arrangement or more property-related information.
*Virtual viewings: Some or all information pertaining to this property may have been provided solely by the vendor/landlord, and although we always make every effort to verify the information provided to us, we strongly advise you to make further enquiries before continuing. If you choose to make an offer based solely on a virtual viewing, then 99Home Ltd does not accept any liability for errors in the information provided, including but not limited to, measurements, photography and video content.
AML: To comply with government Money Laundering Regulations 2019, we are required to confirm the identity of all prospective buyers. We use the services of a third party, AMLTeam.co.uk , who will contact you directly at an agreed time to do this. They will need the full name, date of birth and current address of all buyers. There is a nominal charge of £20 per buyer, payable direct to AMLTeam . Please note, we are unable to issue a memorandum of sale until the checks are complete.
REFERRAL FEES We may suggest reputable providers of supplementary services, such as Conveyancing, Financial Services, Insurance, and Surveying. If you choose to utilize their services based on our recommendation, we may receive a commission payment or another form of benefit, referred to as a referral fee. It's important to note that you are not obligated to engage with the services of the recommended provider.
*Measurements: These approximate room sizes are only intended as general guidance. You must verify the dimensions carefully before ordering any household goods, carpets or any built-in furniture.
*General: While we endeavor to make our sales particulars fair, accurate and reliable, they are only a general guide to the property and, accordingly, if there is any point which is of particular importance to you, please contact 99home and we will be pleased to check the detailing for you, especially if you are contemplating traveling some distance to view the property.
*99home is the seller's agent for this property. Your conveyancer is legally responsible for ensuring any purchase agreement fully protects your position. We make detailed enquiries of the seller to ensure the information provided is as accurate as possible. Please inform us if you become aware of any information being inaccurate.
Fraud warning: We have had reports of fraudulent activities in our industry. DO NOT make any payment directly to the landlord or the seller. Be cautious of emails or messages asking you to transfer funds to any account, please contact us by telephone immediately to verify the authenticity of the communication and under NO circumstances action the request. If you paid any deposit or rent to 99home, we will release the fund to the landlord once you have moved in. Your safety is our top priority.
Brochures
Brochure- COUNCIL TAXA payment made to your local authority in order to pay for local services like schools, libraries, and refuse collection. The amount you pay depends on the value of the property.Read more about council Tax in our glossary page.
- Band: E
- PARKINGDetails of how and where vehicles can be parked, and any associated costs.Read more about parking in our glossary page.
- Yes
- GARDENA property has access to an outdoor space, which could be private or shared.
- Yes
- ACCESSIBILITYHow a property has been adapted to meet the needs of vulnerable or disabled individuals.Read more about accessibility in our glossary page.
- Ask agent
Sanday, Orkney, Scotland, KW17
Add an important place to see how long it'd take to get there from our property listings.
__mins driving to your place
Get an instant, personalised result:
- Show sellers you’re serious
- Secure viewings faster with agents
- No impact on your credit score
About gLocalAgents.co.uk, Covering Nationwide
99Home Ltd, Sutton Business Park, Restmor Way, Wallington, Surrey, SM6 7AH

Affordability
Notes
Staying secure when looking for property
Ensure you're up to date with our latest advice on how to avoid fraud or scams when looking for property online.
Visit our security centre to find out moreDisclaimer - Property reference 16361_EAF_286822. The information displayed about this property comprises a property advertisement. Rightmove.co.uk makes no warranty as to the accuracy or completeness of the advertisement or any linked or associated information, and Rightmove has no control over the content. This property advertisement does not constitute property particulars. The information is provided and maintained by gLocalAgents.co.uk, Covering Nationwide. Please contact the selling agent or developer directly to obtain any information which may be available under the terms of The Energy Performance of Buildings (Certificates and Inspections) (England and Wales) Regulations 2007 or the Home Report if in relation to a residential property in Scotland.
*This is the average speed from the provider with the fastest broadband package available at this postcode. The average speed displayed is based on the download speeds of at least 50% of customers at peak time (8pm to 10pm). Fibre/cable services at the postcode are subject to availability and may differ between properties within a postcode. Speeds can be affected by a range of technical and environmental factors. The speed at the property may be lower than that listed above. You can check the estimated speed and confirm availability to a property prior to purchasing on the broadband provider's website. Providers may increase charges. The information is provided and maintained by Decision Technologies Limited. **This is indicative only and based on a 2-person household with multiple devices and simultaneous usage. Broadband performance is affected by multiple factors including number of occupants and devices, simultaneous usage, router range etc. For more information speak to your broadband provider.
Map data ©OpenStreetMap contributors.




