
Heathlea, Hindley Green, WN2

- PROPERTY TYPE
End of Terrace
- BEDROOMS
4
- BATHROOMS
3
- SIZE
Ask agent
Key features
- Kitchen-Diner
- Garden
- En-suite
- Full Double Glazing
- Oven/Hob
- Gas Central Heating Combi Boiler
Description
Situated in the popular area of Hindley Green, Wigan, this well-proportioned four-bedroom, three-bathroom end-terrace home offers spacious and practical living ideal for families.
The property features a bright and welcoming reception room, providing a comfortable space for relaxing or entertaining. To the rear, the modern kitchen-diner is fitted with contemporary units, an oven and hob, and offers ample room for dining, creating a sociable hub of the home.
Upstairs, the accommodation includes four well-sized bedrooms, with the main bedroom benefiting from a private en-suite shower room. Two additional bathrooms provide convenience for busy households.
The home benefits from full double glazing and gas central heating via a combi boiler, ensuring comfort and efficiency throughout the year.
Externally, the property enjoys a private garden offering outdoor space for relaxing or entertaining, along with off-road parking for added convenience.
Well located for local shops, schools, and transport links, this property presents an excellent opportunity for buyers seeking spacious, modern family living in a convenient setting.
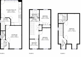
Entrance Vestibule – Accessed via a UPVC double-glazed front door, providing a welcoming entry into the home.
Downstairs W/C – Fitted with a W/C and wash hand basin, complemented by a UPVC double-glazed window, partially tiled walls, and a radiator.
Lounge (11'5" x 16'6") – A spacious and comfortable reception room featuring a UPVC double-glazed window and radiator, offering an ideal space for relaxing and entertaining.
Inner Hallway – With staircase leading to the first floor.
Open-Plan Kitchen / Family Room (14'11" x 16'11") – A bright and sociable living space with UPVC double-glazed rear door and window unit. The kitchen is fitted with a range of built-in units and worktops, electric hob, electric oven, extractor hood, one-and-a-half sink unit, integrated fridge and freezer, plumbing for a washing machine, and a radiator.
FIRST FLOORBedroom Two (8'2" x 14'10") – A well-proportioned double bedroom with UPVC double-glazed window and radiator.
Bedroom Three (7'10" x 10'8") – Featuring built-in wardrobes, UPVC double-glazed window, and radiator.
Bedroom Four (6'6" x 6'8") – A versatile room ideal as a bedroom, nursery, or home office, with UPVC double-glazed window and radiator.
Bathroom (6'8" x 5'7") – Fitted with a bath and overhead shower with screen, W/C, and wash hand basin, finished with partially tiled walls, radiator, and UPVC double-glazed window.
Landing – With storage cupboard and staircase leading to the second floor.
SECOND FLOORMaster Bedroom (11'6" x 25'1") – An impressive and spacious principal suite featuring UPVC double-glazed Velux window and additional window, along with a radiator.
En-Suite Shower Room (6'2" x 6'11") – Comprising a walk-in shower, W/C, and wash hand basin, with partially tiled walls, UPVC double-glazed Velux window, and radiator.
Landing – With UPVC double-glazed window.
EXTERIORFront – Low-maintenance frontage.
Rear Garden – A pleasant outdoor space featuring a flagged patio area, mature shrubbery, and fence boundaries, with gated access leading to parking.
- COUNCIL TAXA payment made to your local authority in order to pay for local services like schools, libraries, and refuse collection. The amount you pay depends on the value of the property.Read more about council Tax in our glossary page.
- Band: D
- PARKINGDetails of how and where vehicles can be parked, and any associated costs.Read more about parking in our glossary page.
- Off street
- GARDENA property has access to an outdoor space, which could be private or shared.
- Yes
- ACCESSIBILITYHow a property has been adapted to meet the needs of vulnerable or disabled individuals.Read more about accessibility in our glossary page.
- Ask agent
Heathlea, Hindley Green, WN2
Add an important place to see how long it'd take to get there from our property listings.
__mins driving to your place
Get an instant, personalised result:
- Show sellers you’re serious
- Secure viewings faster with agents
- No impact on your credit score
Your mortgage
Notes
Staying secure when looking for property
Ensure you're up to date with our latest advice on how to avoid fraud or scams when looking for property online.
Visit our security centre to find out moreDisclaimer - Property reference borron_1838840229. The information displayed about this property comprises a property advertisement. Rightmove.co.uk makes no warranty as to the accuracy or completeness of the advertisement or any linked or associated information, and Rightmove has no control over the content. This property advertisement does not constitute property particulars. The information is provided and maintained by Borron Shaw, Wigan. Please contact the selling agent or developer directly to obtain any information which may be available under the terms of The Energy Performance of Buildings (Certificates and Inspections) (England and Wales) Regulations 2007 or the Home Report if in relation to a residential property in Scotland.
*This is the average speed from the provider with the fastest broadband package available at this postcode. The average speed displayed is based on the download speeds of at least 50% of customers at peak time (8pm to 10pm). Fibre/cable services at the postcode are subject to availability and may differ between properties within a postcode. Speeds can be affected by a range of technical and environmental factors. The speed at the property may be lower than that listed above. You can check the estimated speed and confirm availability to a property prior to purchasing on the broadband provider's website. Providers may increase charges. The information is provided and maintained by Decision Technologies Limited. **This is indicative only and based on a 2-person household with multiple devices and simultaneous usage. Broadband performance is affected by multiple factors including number of occupants and devices, simultaneous usage, router range etc. For more information speak to your broadband provider.
Map data ©OpenStreetMap contributors.





