
Old London Road, Copdock
- PROPERTY TYPE
Land
- SIZE
Ask agent
Key features
- Reserve Matters: DC/24/03546
- Four detached properties
- All services nearby
- Countryside views
- Great connections to the A12 & A14
- Biodiversity Gain Condition exempt
- Detailed planning in place
Description
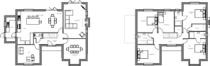
Plot 1 - 238m2 / 5 bedroom detached
Plot 2 - 224m2 / 5 bedroom detached
Plot 3 - 224m2 / 5 bedroom detached
Plot 4 - 238m2 / 5 bedroom detached
All plots have planning in place for double garages.
Further details can be found on Babergh & Mid Suffolk planning portal Ref: DC/24/03546
CIL = £153,335
LAND Coming directly off Colchester Road and down a private driveway which will be shared with one other property the land opens up where the development land is considered flat and dig ready. The land is gated off at the front which provides a level of security to the development
It is believed that services are located nearby with mains drainage being located on the driveway heading into the development where power, water and internet is also located. But we recommend buyer doing their own investigations into this.
LOCATION Notable locations within distance of the development.
Ipswich - 4 Miles (direct trains to London Liverpool Street)
Colchester - 18 Miles (direct trains to London Liverpool Street)
Hadleigh - 8 Miles
Orwell Bridge - 7 Miles
London is around 75mins drive from this location.
VIEWING & DISCLAIMER Please note that the land is secured so access can only be granted via David Burr. All information provided has been supplied to the best of intentions however we recommend viewers do their own due diligence. All boundary images are being used as guides and cannot be fully relied upon.
Brochures
Sales BrochureOld London Road, Copdock
NEAREST STATIONS
Distances are straight line measurements from the centre of the postcode- Ipswich Station3.2 miles
- Derby Road Station4.7 miles
- Westerfield Station5.2 miles



Notes
Disclaimer - Property reference 100424025994. The information displayed about this property comprises a property advertisement. Rightmove.co.uk makes no warranty as to the accuracy or completeness of the advertisement or any linked or associated information, and Rightmove has no control over the content. This property advertisement does not constitute property particulars. The information is provided and maintained by David Burr Estate Agents, Leavenheath. Please contact the selling agent or developer directly to obtain any information which may be available under the terms of The Energy Performance of Buildings (Certificates and Inspections) (England and Wales) Regulations 2007 or the Home Report if in relation to a residential property in Scotland.
Map data ©OpenStreetMap contributors.







