
9. Cronton Road, Liverpool, Merseyside L15 5BB

- PROPERTY TYPE
Terraced
- BEDROOMS
3
- BATHROOMS
1
- SIZE
Ask agent
- TENUREDescribes how you own a property. There are different types of tenure - freehold, leasehold, and commonhold.Read more about tenure in our glossary page.
Freehold
Description
Auction Commencing on Monday 23rd March at 1pm and ending 24 hours later on Tuesday 24th March from 1pm with Auction House
Please register to bid via our website - auctionhouse.co.uk
Vacant 3 Bedroom Mid-Terrace – Full Refurbishment Opportunity.
Open House Viewings (no need to book)
Monday, 9 March 2026 at 12:00 until 12:30.
Saturday, 14 March 2026 at 12:00 until 12:30.
Monday, 23 March 2026 at 12:00 until 12:30.
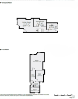
An excellent value-add opportunity to acquire a substantial mid-terrace property in a consistently strong rental and resale location within L15, ideally suited to HMO conversion or family resale (subject to the necessary consents).
The property extends to approximately 86 m² (937 sq ft) as per the recent EPC (comparable neighbouring properties reflect a similar footprint). The accommodation is arranged over two floors and offers well-proportioned rooms with a layout that naturally lends itself to reconfiguration.
________________________________________
HMO & Reconfiguration Potential
The current layout comprises:
Ground Floor
Large front living room (21.99 m²) – potential additional bedroom
Separate dining room
Kitchen
First Floor
Three bedrooms
Bathroom
Subject to reconfiguration and compliance works, the property could potentially be adapted to provide:
• 4-bedroom HMO (utilising the front reception as a bedroom)
or
• 5 letting rooms (subject to redesign and compliance)
There is clear scope to reposition the kitchen/diner to enhance communal space while maximising bedroom numbers.
All proposals remain subject to planning, licensing and building regulation approval.
________________________________________
Alternative Exit – Family Resale / Flip
The property also presents a strong flip opportunity. The adjoining property has reportedly sold for approximately £240,000 following modernisation and is presented as a well-finished family home. This demonstrates clear resale demand within the immediate terrace.
With refurbishment and internal reconfiguration, the property could be repositioned as a high-quality three or four-bedroom family dwelling.
________________________________________
Loft Conversion Potential
There is further scope to explore a loft conversion, similar to neighbouring No. 3 (subject to the necessary consents), which could significantly increase both rental income and resale value.
________________________________________
Investment Rationale
L15 remains a well-established location popular with:
• Young professionals
• Students
• Working tenants
• Owner-occupiers
The area benefits from strong transport links and convenient access to key Liverpool employment hubs.
Following refurbishment, the property offers:
• Strong gross yield potential (HMO strategy)
• Attractive resale comparables (flip strategy)
• Long-term capital growth prospects
________________________________________
Condition
The property requires a full refurbishment programme including:
• Damp remediation
• New kitchen and bathroom
• Flooring and redecoration
• Compliance upgrades (if configured for HMO use)
This provides investors with the opportunity to add significant value through works.
________________________________________
Tenure
Assumed Freehold
Vacant Possession
________________________________________
Auctioneer’s Note
This property presents a versatile investment opportunity offering both HMO conversion potential and strong resale comparables. Buyers must satisfy themselves regarding planning, Article 4 position, licensing requirements and any comparable sales prior to bidding.
________________________________________
Tenure: Freehold
EPC Rating: D
Administration Fee: £3600 inc VAT payable on exchange of contracts.
Disbursements: Please see the legal pack for any disbursements listed that may become payable by the purchaser on completion.
- COUNCIL TAXA payment made to your local authority in order to pay for local services like schools, libraries, and refuse collection. The amount you pay depends on the value of the property.Read more about council Tax in our glossary page.
- Ask agent
- PARKINGDetails of how and where vehicles can be parked, and any associated costs.Read more about parking in our glossary page.
- Ask agent
- GARDENA property has access to an outdoor space, which could be private or shared.
- Ask agent
- ACCESSIBILITYHow a property has been adapted to meet the needs of vulnerable or disabled individuals.Read more about accessibility in our glossary page.
- Ask agent
Energy performance certificate - ask agent
9. Cronton Road, Liverpool, Merseyside L15 5BB
Add an important place to see how long it'd take to get there from our property listings.
__mins driving to your place
Get an instant, personalised result:
- Show sellers you’re serious
- Secure viewings faster with agents
- No impact on your credit score
Your mortgage
Notes
Staying secure when looking for property
Ensure you're up to date with our latest advice on how to avoid fraud or scams when looking for property online.
Visit our security centre to find out moreDisclaimer - Property reference 202603021846sq_6vy6_copy_2026-03-03_124023. The information displayed about this property comprises a property advertisement. Rightmove.co.uk makes no warranty as to the accuracy or completeness of the advertisement or any linked or associated information, and Rightmove has no control over the content. This property advertisement does not constitute property particulars. The information is provided and maintained by Auction House, South Yorkshire. Please contact the selling agent or developer directly to obtain any information which may be available under the terms of The Energy Performance of Buildings (Certificates and Inspections) (England and Wales) Regulations 2007 or the Home Report if in relation to a residential property in Scotland.
Auction Fees: The purchase of this property may include associated fees not listed here, as it is to be sold via auction. To find out more about the fees associated with this property please call Auction House, South Yorkshire on 0114 697 5583.
*Guide Price: An indication of a seller's minimum expectation at auction and given as a Guide Price or a range of Guide Prices. This is not necessarily the figure a property will sell for and is subject to change prior to the auction.
Reserve Price: Each auction property will be subject to a Reserve Price below which the property cannot be sold at auction. Normally the Reserve Price will be set within the range of Guide Prices or no more than 10% above a single Guide Price.
*This is the average speed from the provider with the fastest broadband package available at this postcode. The average speed displayed is based on the download speeds of at least 50% of customers at peak time (8pm to 10pm). Fibre/cable services at the postcode are subject to availability and may differ between properties within a postcode. Speeds can be affected by a range of technical and environmental factors. The speed at the property may be lower than that listed above. You can check the estimated speed and confirm availability to a property prior to purchasing on the broadband provider's website. Providers may increase charges. The information is provided and maintained by Decision Technologies Limited. **This is indicative only and based on a 2-person household with multiple devices and simultaneous usage. Broadband performance is affected by multiple factors including number of occupants and devices, simultaneous usage, router range etc. For more information speak to your broadband provider.
Map data ©OpenStreetMap contributors.





