
Shrub Lane, Hellesdon, Norwich

Letting details
- Let available date:
- 03/04/2026
- Deposit:
- £1,500A deposit provides security for a landlord against damage, or unpaid rent by a tenant.Read more about deposit in our glossary page.
- Min. Tenancy:
- 6 months How long the landlord offers to let the property for.Read more about tenancy length in our glossary page.
- Let type:
- Short term
- Furnish type:
- Unfurnished
- Council Tax:
- Ask agent
- PROPERTY TYPE
Town House
- BEDROOMS
3
- BATHROOMS
1
- SIZE
686 sq ft
64 sq m
Key features
- 2024 Built Townhouse
- Porch Entrance & Sitting Room
- Open Plan Kitchen/Living
- French Doors to Rear Garden
- Three Bedrooms
- Family Bathroom with Shower
- Landscaped & Lawned Garden
- Tandem Driveway
Description
IN SUMMARY
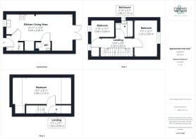
This 2024 built semi-detached TOWNHOUSE offers over 680 Sq. ft (stms) of accommodation over THREE FLOORS, with a LANDSCAPED and LAWNED GARDEN, and TANDEM DRIVEWAY. Finished to a HIGH STANDARD with uPVC double glazing and gas fired CENTRAL HEATING, the entrance porch leads into the OPEN PLAN KITCHEN/SITTING ROOM with BUILT-IN STORAGE, FRENCH DOORS to the garden and ground floor W.C. The first set of stairs leads to TWO BEDROOMS and the family bathroom complete with a shower, with the top floor offering FURTHER STORAGE, and the main bedroom. The GARDENS offer a newly laid LAWN and PATIO, with gated access to the driveway.
SETTING THE SCENE
With a low maintenance frontage, the property fronts Shrub Lane with an adjacent tandem brick-weave driveway and gated access to the rear garden.
THE GRAND TOUR
The carpeted hall entrance includes stairs to the first floor landing and electric fuse box. Heading into the open plan kitchen/living space, the kitchen sits at the front of the property with wood effect flooring underfoot, and u-shape arrangement of kitchen units including an inset gas hob, built-in electric oven with stainless steel splash-back and extractor fan above. Space for general white goods includes a fridge freezer and washing machine. A window faces the front whilst a cupboard conceals the wall mounted gas fired central heating boiler. A useful recess can be found under the stairs for storage with the main living space opening up with fitted carpet underfoot, built-in breakfast bar and uPVC double glazed French doors to the rear garden. A door leads off to a ground floor W.C with a white two piece suite, wood effect flooring and tiled splash-backs.
Heading upstairs, the first floor landing is carpeted with doors leading to the second bedroom which faces to the rear of the property, complete with fitted carpet underfoot, and the third bedroom which faces the front with two windows to front and also fitted carpet. The family bathroom sits between the two bedrooms with a modern white three piece suite, tiled splash backs and a thermostatically controlled shower over the bath.
The top floor offers a large double bedroom with velux windows to front and rear, with storage leading off the landing.
FIND US
Postcode : NR6 5FR
What3Words : ///dragon.loser.patrol
VIRTUAL TOUR
View our virtual tour for a full 360 degree of the interior of the property.
EPC Rating: B
Garden
THE GREAT OUTDOORS
The rear garden is finished with a main lawned expanse and patio seating area from the rear French doors whilst being fully enclosed with timber panelled fencing and with gated access to the driveway.
Disclaimer
General Disclaimer:
Whilst every care has been taken to prepare these sales particulars, they are for guidance purposes only. All measurements are approximate are for general guidance purposes only
Brochures
Property Brochure- COUNCIL TAXA payment made to your local authority in order to pay for local services like schools, libraries, and refuse collection. The amount you pay depends on the value of the property.Read more about council Tax in our glossary page.
- Band: C
- PARKINGDetails of how and where vehicles can be parked, and any associated costs.Read more about parking in our glossary page.
- Yes
- GARDENA property has access to an outdoor space, which could be private or shared.
- Private garden
- ACCESSIBILITYHow a property has been adapted to meet the needs of vulnerable or disabled individuals.Read more about accessibility in our glossary page.
- Ask agent
Energy performance certificate - ask agent
Shrub Lane, Hellesdon, Norwich
Add an important place to see how long it'd take to get there from our property listings.
__mins driving to your place
Notes
Staying secure when looking for property
Ensure you're up to date with our latest advice on how to avoid fraud or scams when looking for property online.
Visit our security centre to find out moreDisclaimer - Property reference e103a840-85a1-4b22-a7c3-2aec6b5f0052. The information displayed about this property comprises a property advertisement. Rightmove.co.uk makes no warranty as to the accuracy or completeness of the advertisement or any linked or associated information, and Rightmove has no control over the content. This property advertisement does not constitute property particulars. The information is provided and maintained by Starkings & Watson, Norfolk & Suffolk. Please contact the selling agent or developer directly to obtain any information which may be available under the terms of The Energy Performance of Buildings (Certificates and Inspections) (England and Wales) Regulations 2007 or the Home Report if in relation to a residential property in Scotland.
*This is the average speed from the provider with the fastest broadband package available at this postcode. The average speed displayed is based on the download speeds of at least 50% of customers at peak time (8pm to 10pm). Fibre/cable services at the postcode are subject to availability and may differ between properties within a postcode. Speeds can be affected by a range of technical and environmental factors. The speed at the property may be lower than that listed above. You can check the estimated speed and confirm availability to a property prior to purchasing on the broadband provider's website. Providers may increase charges. The information is provided and maintained by Decision Technologies Limited. **This is indicative only and based on a 2-person household with multiple devices and simultaneous usage. Broadband performance is affected by multiple factors including number of occupants and devices, simultaneous usage, router range etc. For more information speak to your broadband provider.
Map data ©OpenStreetMap contributors.





